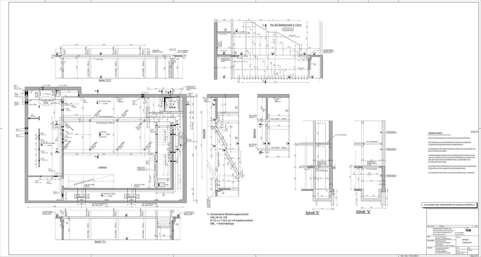
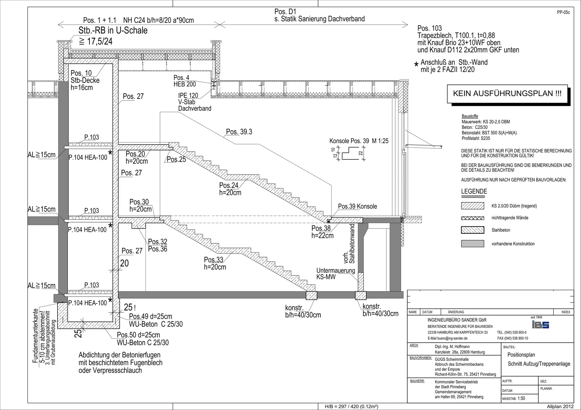
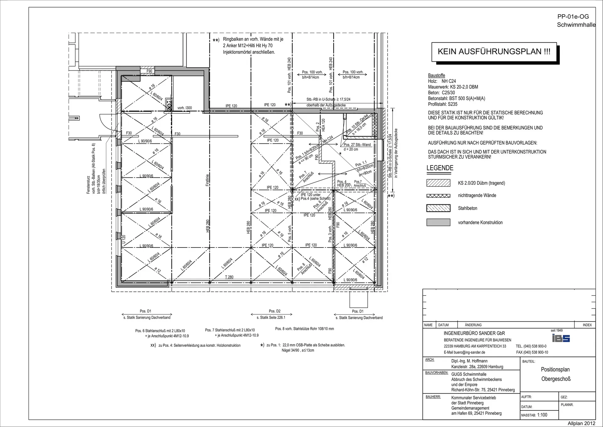
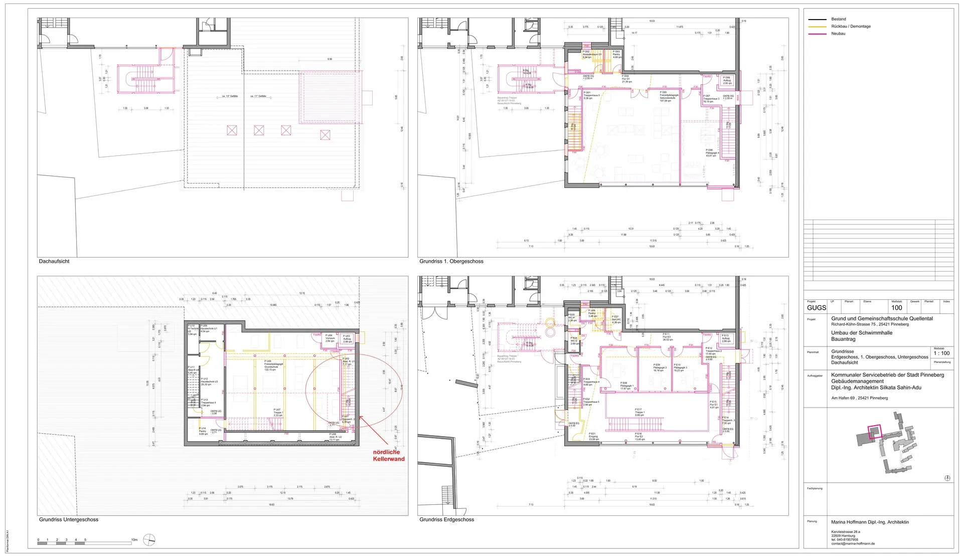
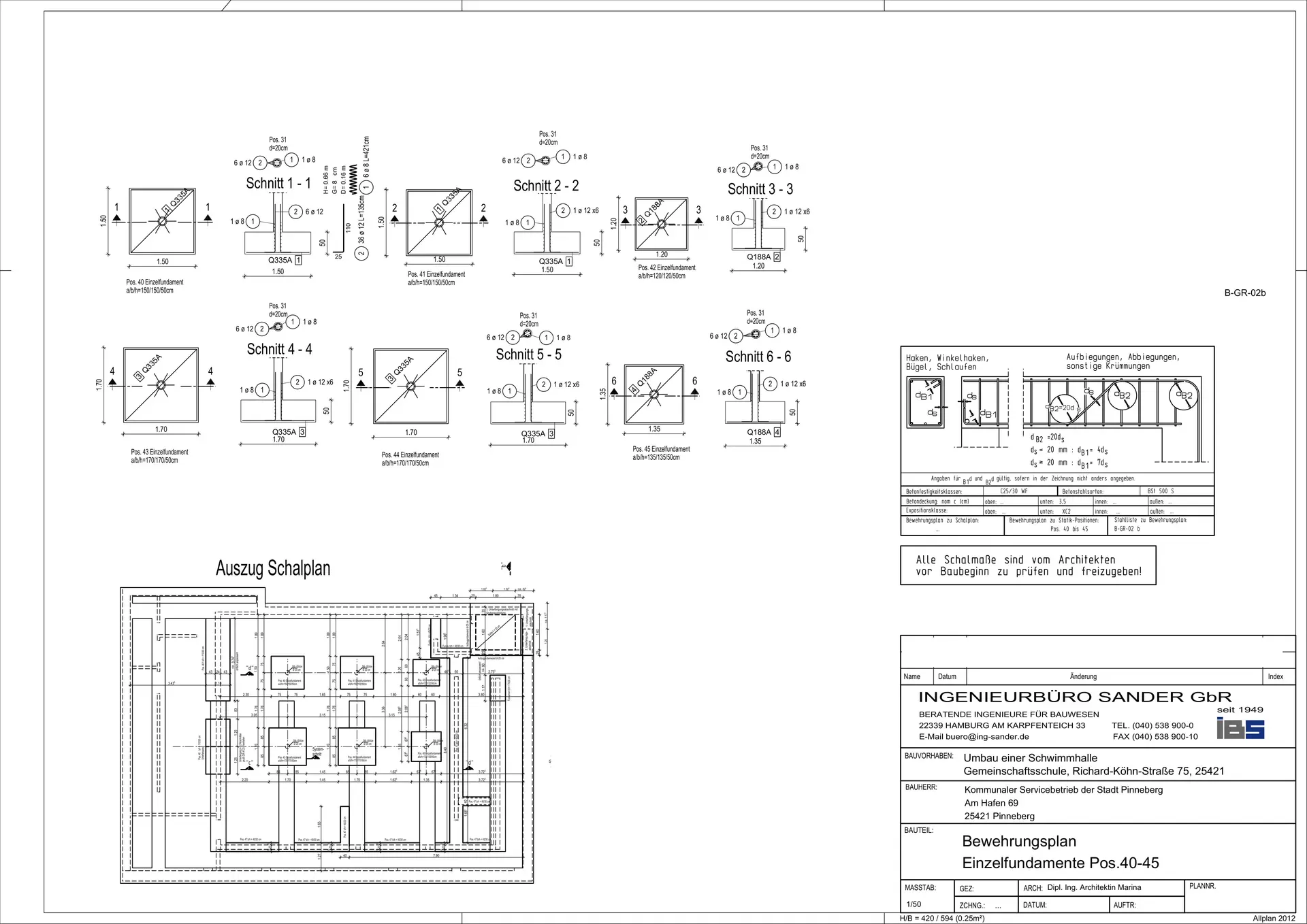
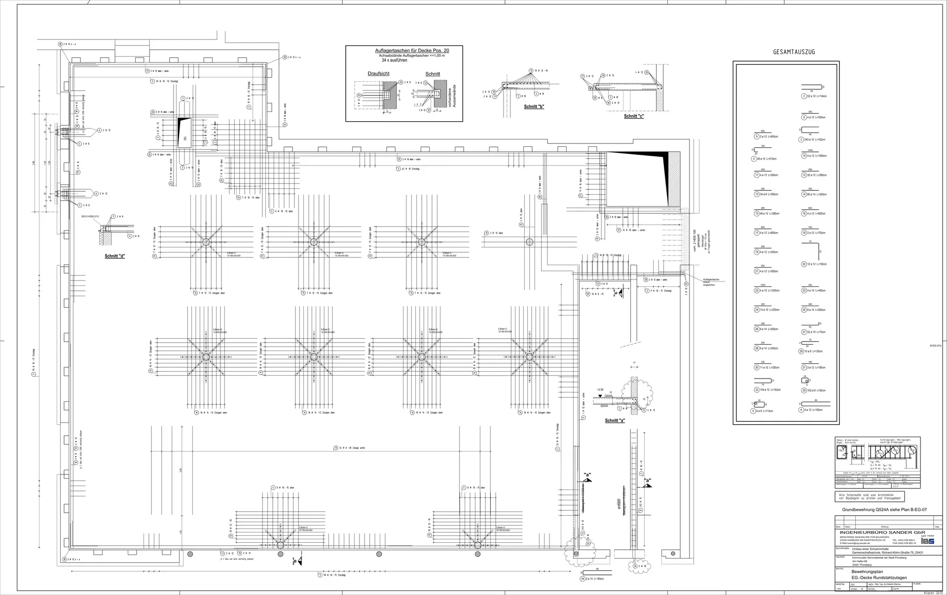
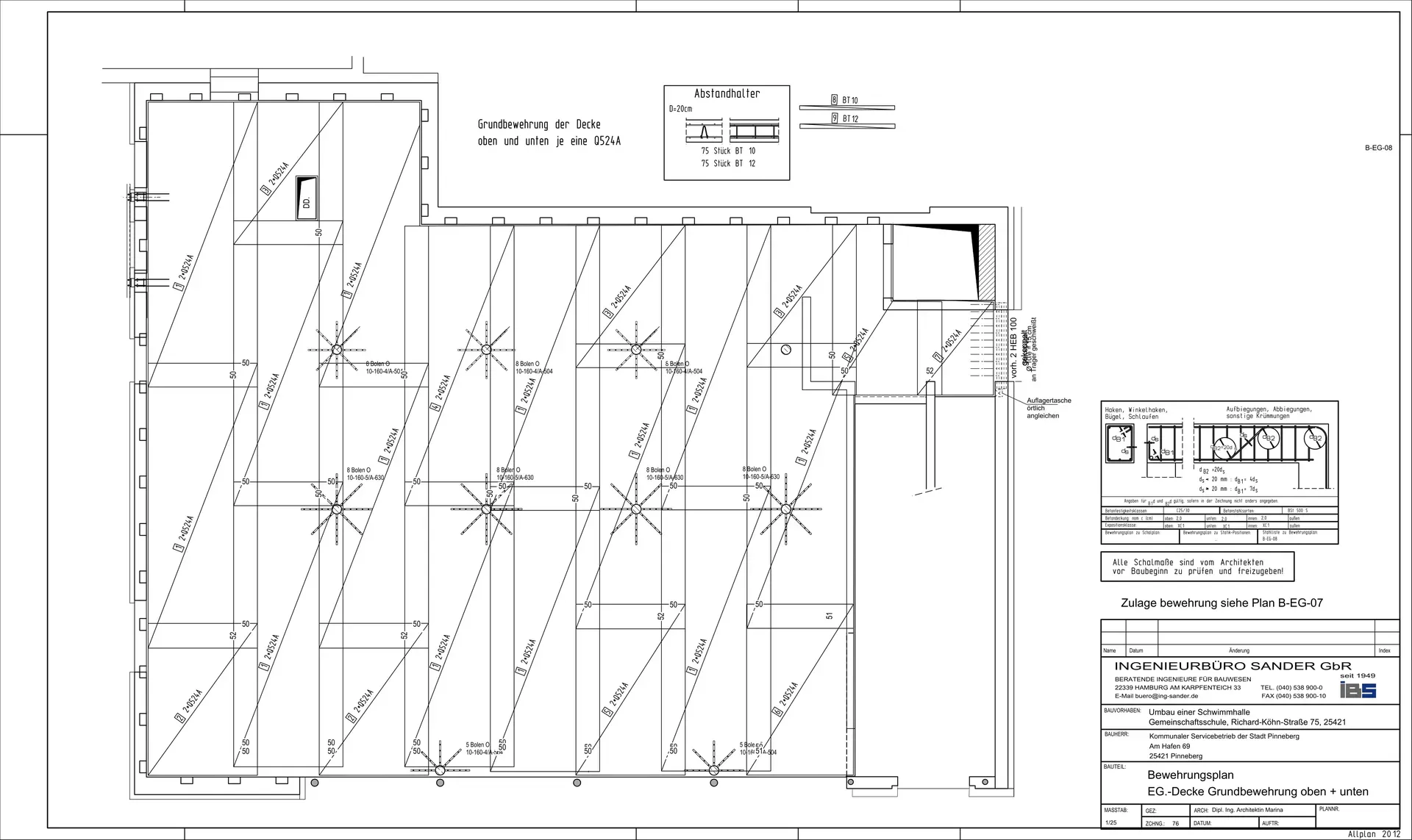
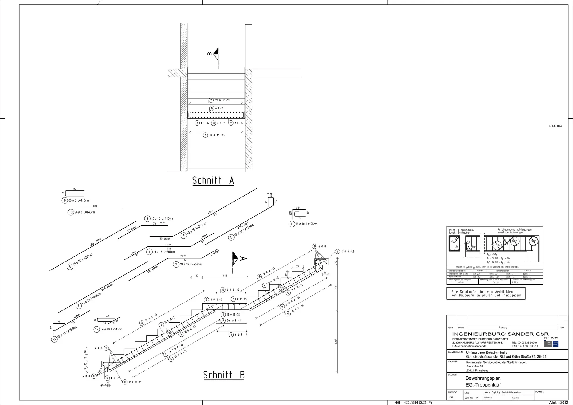
Bauvorhaben: Umbau und Erweiterung der Schwimmhalle für pädagogische Nutzungen,
Grund und Gemeinschaftsschule Quellental
Bauort:
Richard-Köhn-Strasse 75, Pinneberg
Bauherr:
Kommunaler Servicebetrieb der Stadt Pinneberg
Architekt:
Marina Hoffmann Dipl.Ing. Architektin
Baujahr:
2016
Unsere Leistungen:
Statische Berechnung, Positionspläne, Schal- und Bewehrungspläne












