Bauvorhaben:
Neubau einer Wohnanlage
mit 56 Wohneinheiten und Tiefgarage + Doppelhaus
Bauort:
Alsterkrugchaussee 286, Hamburg
Bauherr:
Wohnpark Alsterkrugchaussee GmbH & Co. KG
Architekt:
GAEBLER architekten
Baujahr:
2014
Unsere Leistungen:
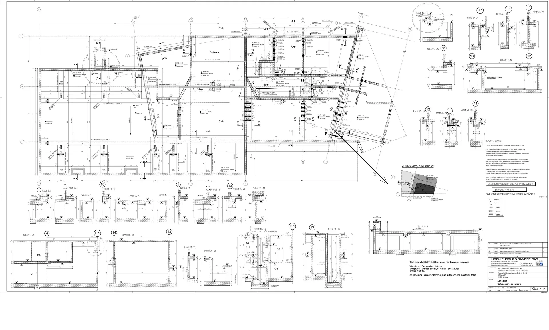
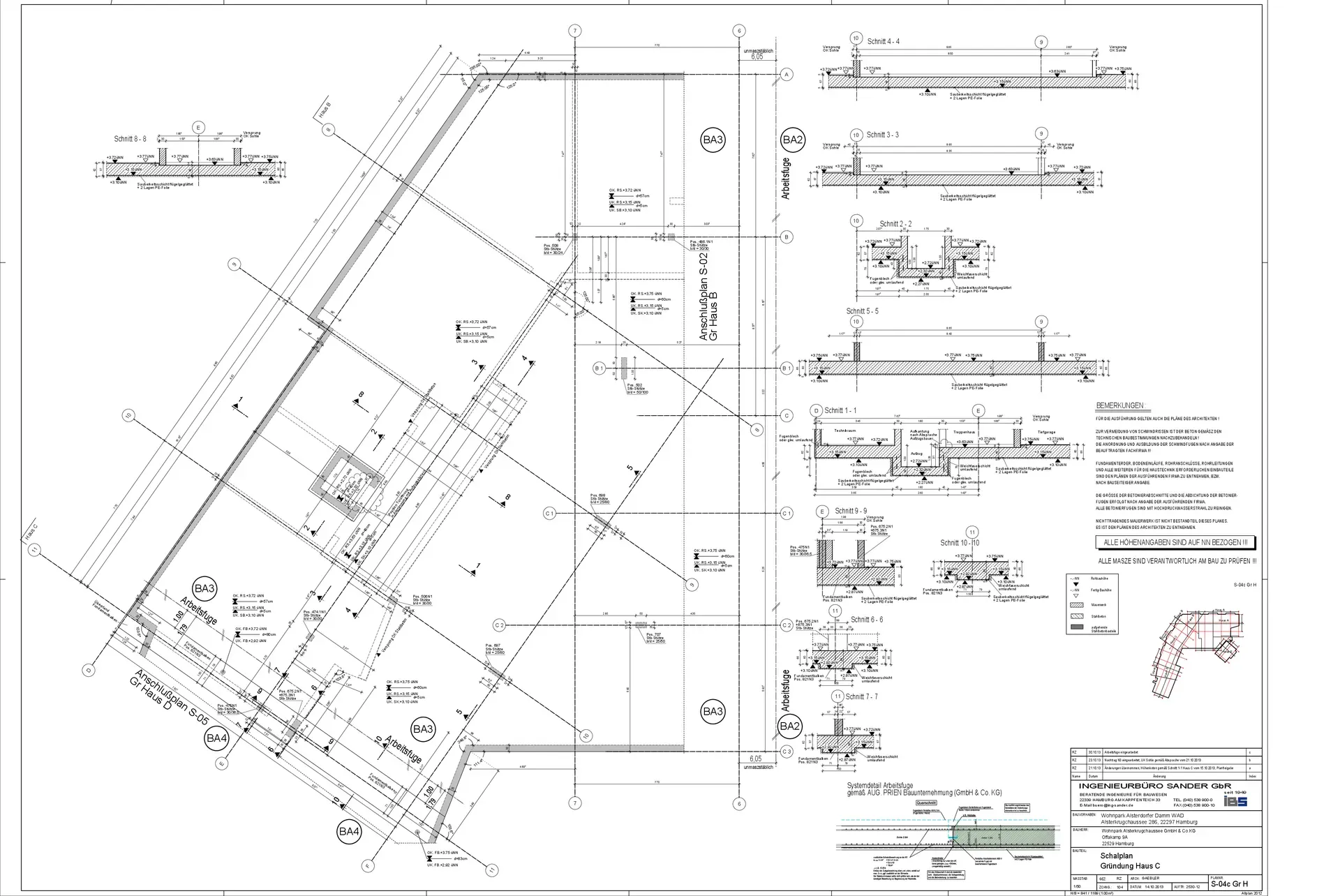
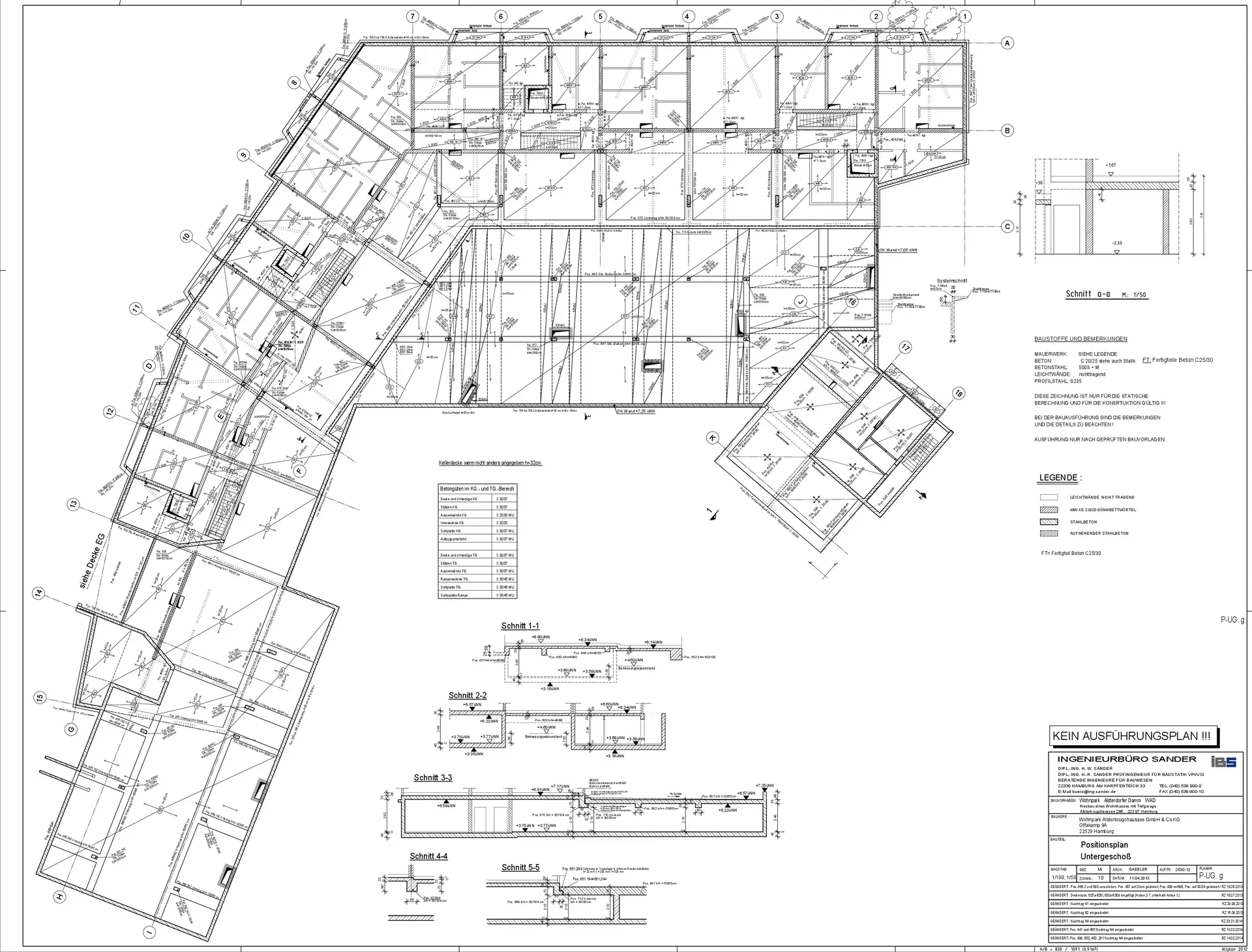
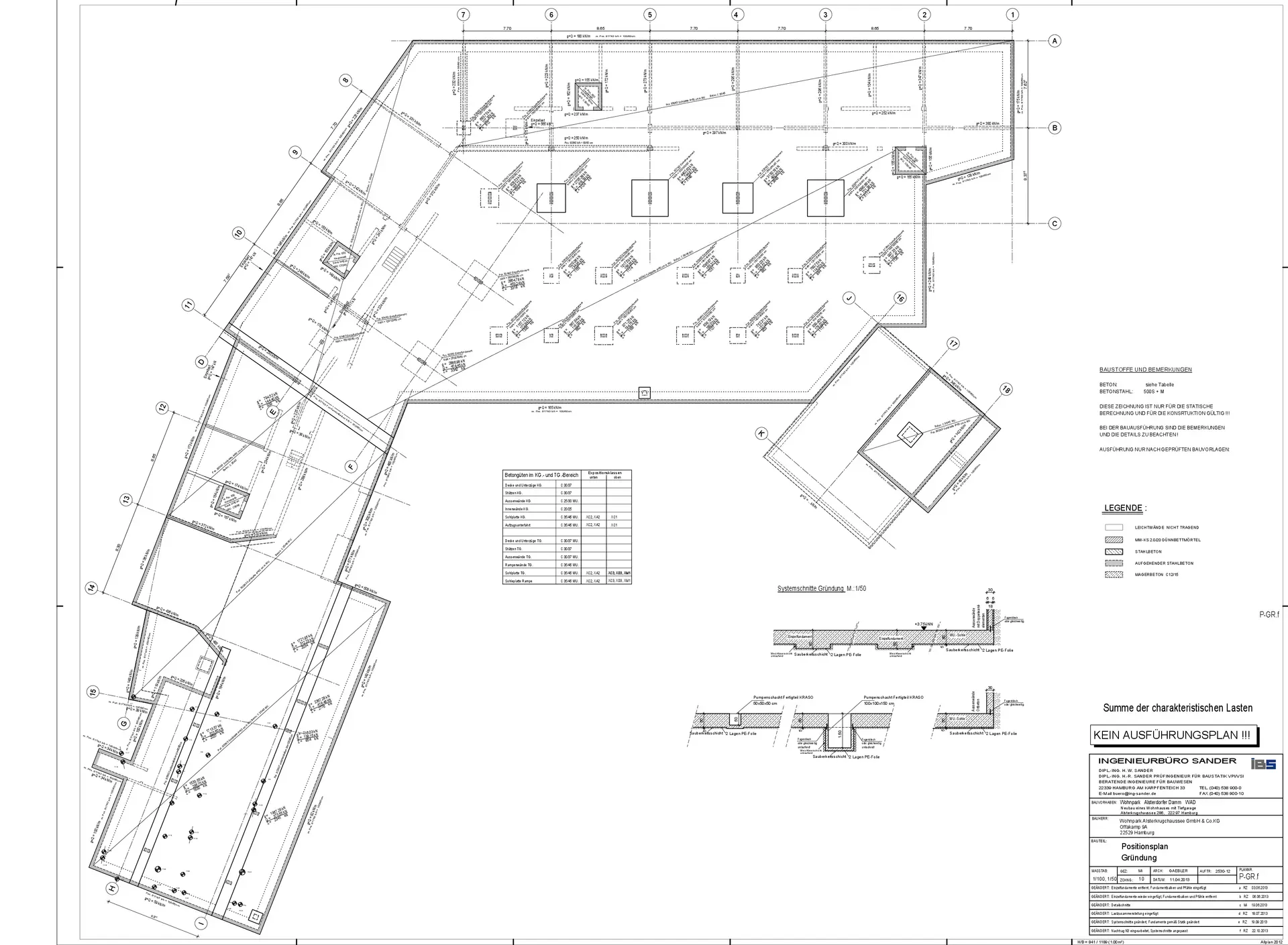
Statische Berechnung, baulicher Brandschutz, Schallschutznachweis,
Positions-, Schal- und Bewehrungspläne
Positions-, Schal- und Bewehrungspläne



















