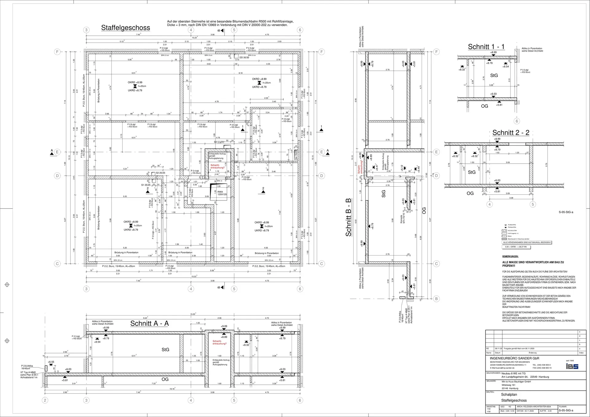
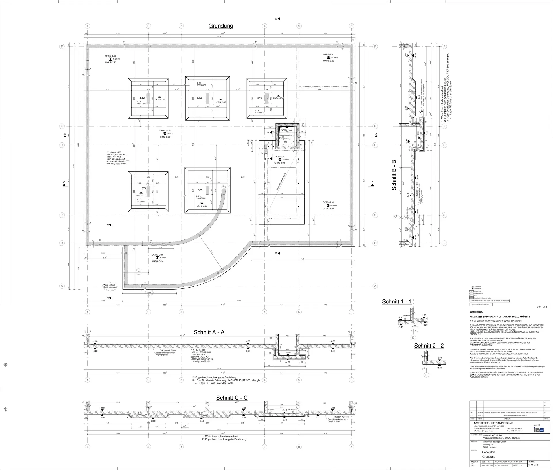
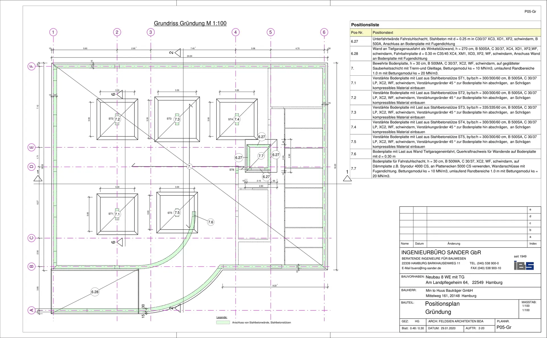
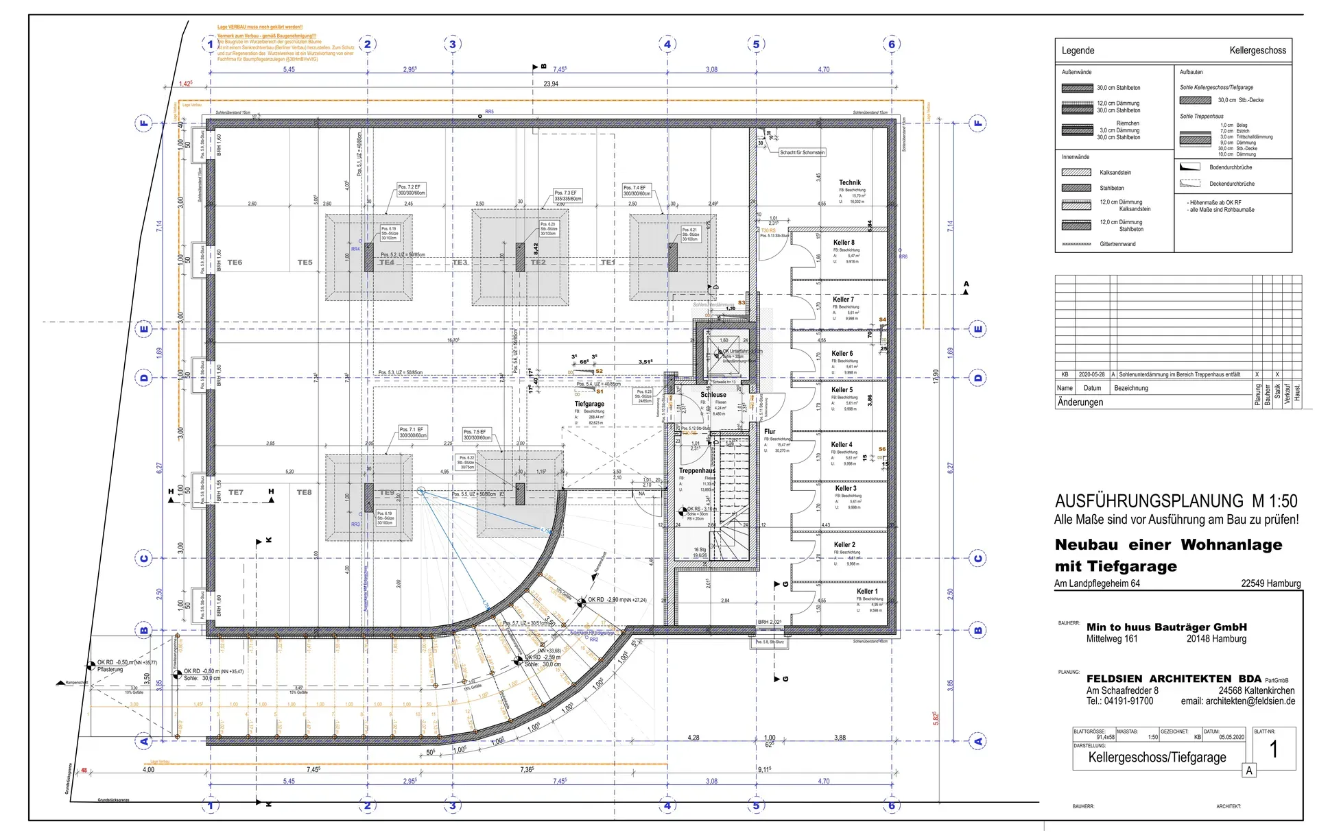
Bauvorhaben:
Neubau einer Wohnanlage mit Tiefgarage
Bauort:
Am Landpflegeheim 64, Hamburg
Bauherr:
Min to huus Bauträger GmbH
Architekt:
FELDSIEN ARCHITEKTEN BDA
Baujahr:
2020 / 21
Unsere Leistungen:
Statische Berechnung, Wärmeschutz- & Schallschutznachweis,
Positions-, Schal- und Bewehrungspläne
Positions-, Schal- und Bewehrungspläne












