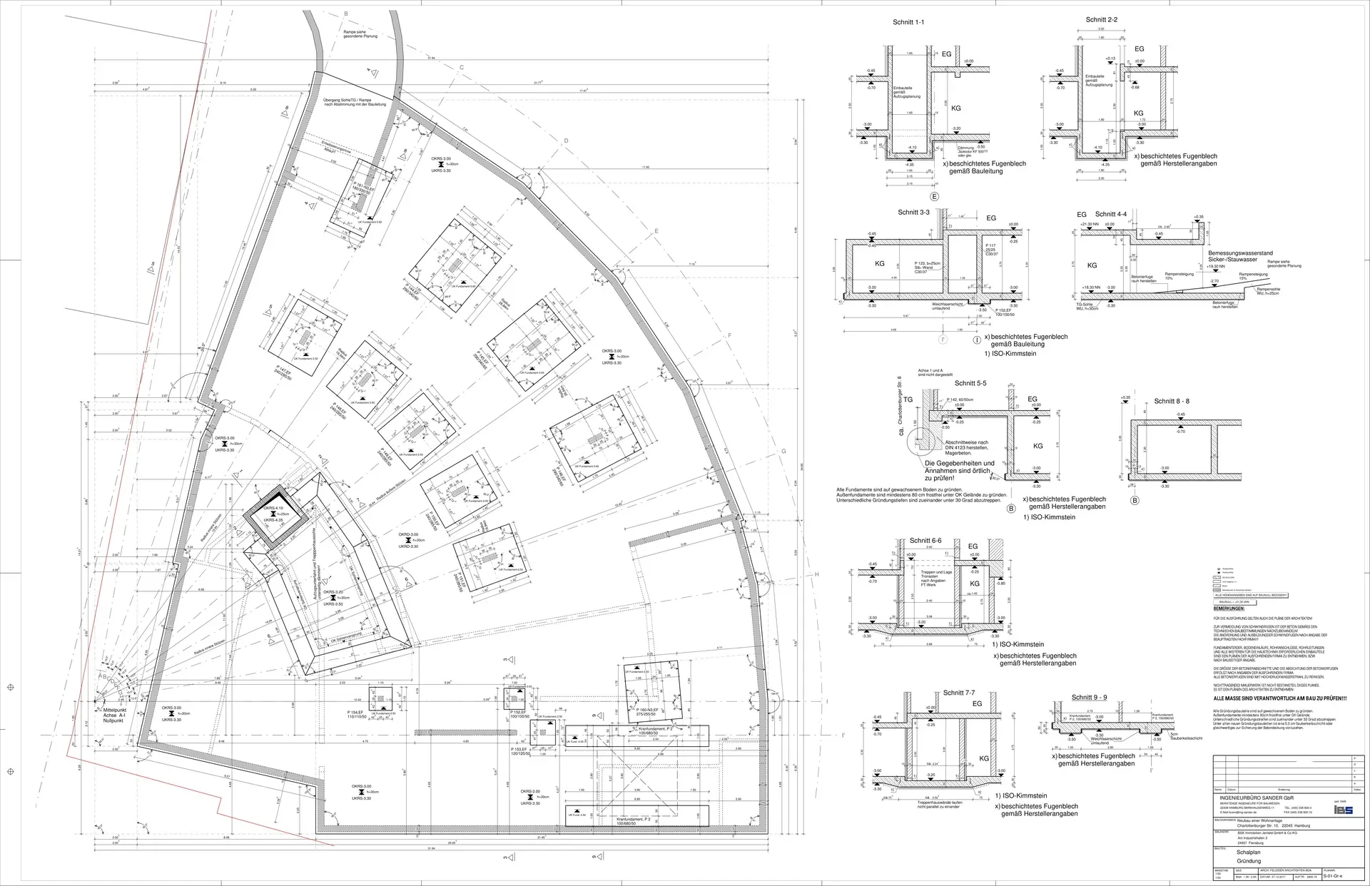
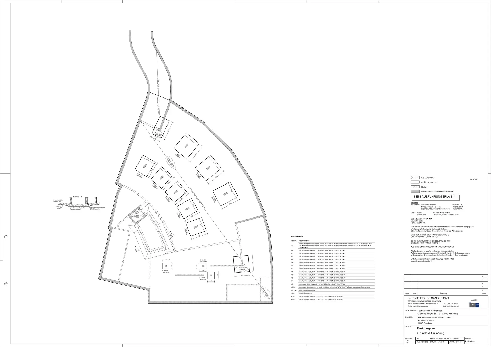
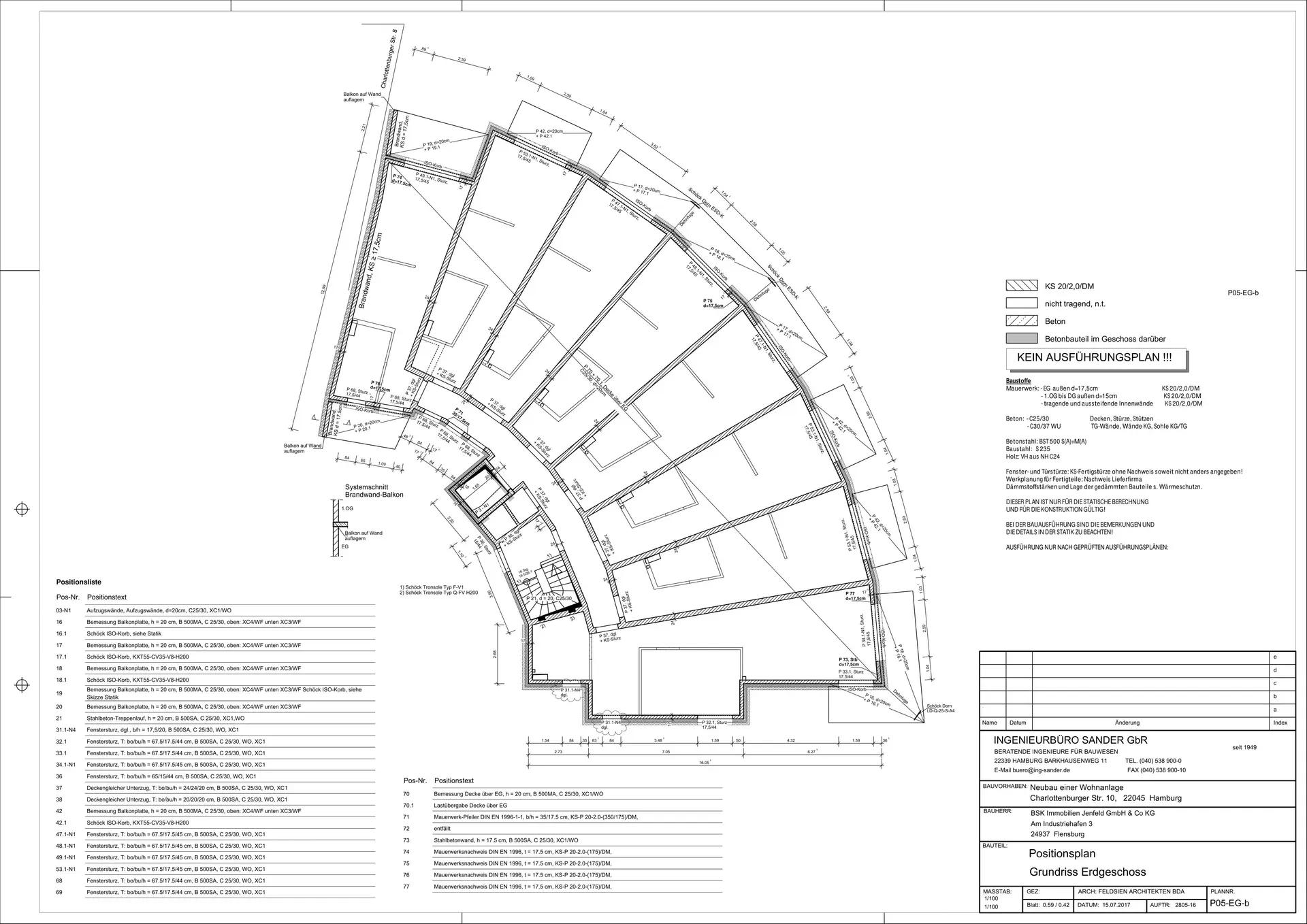
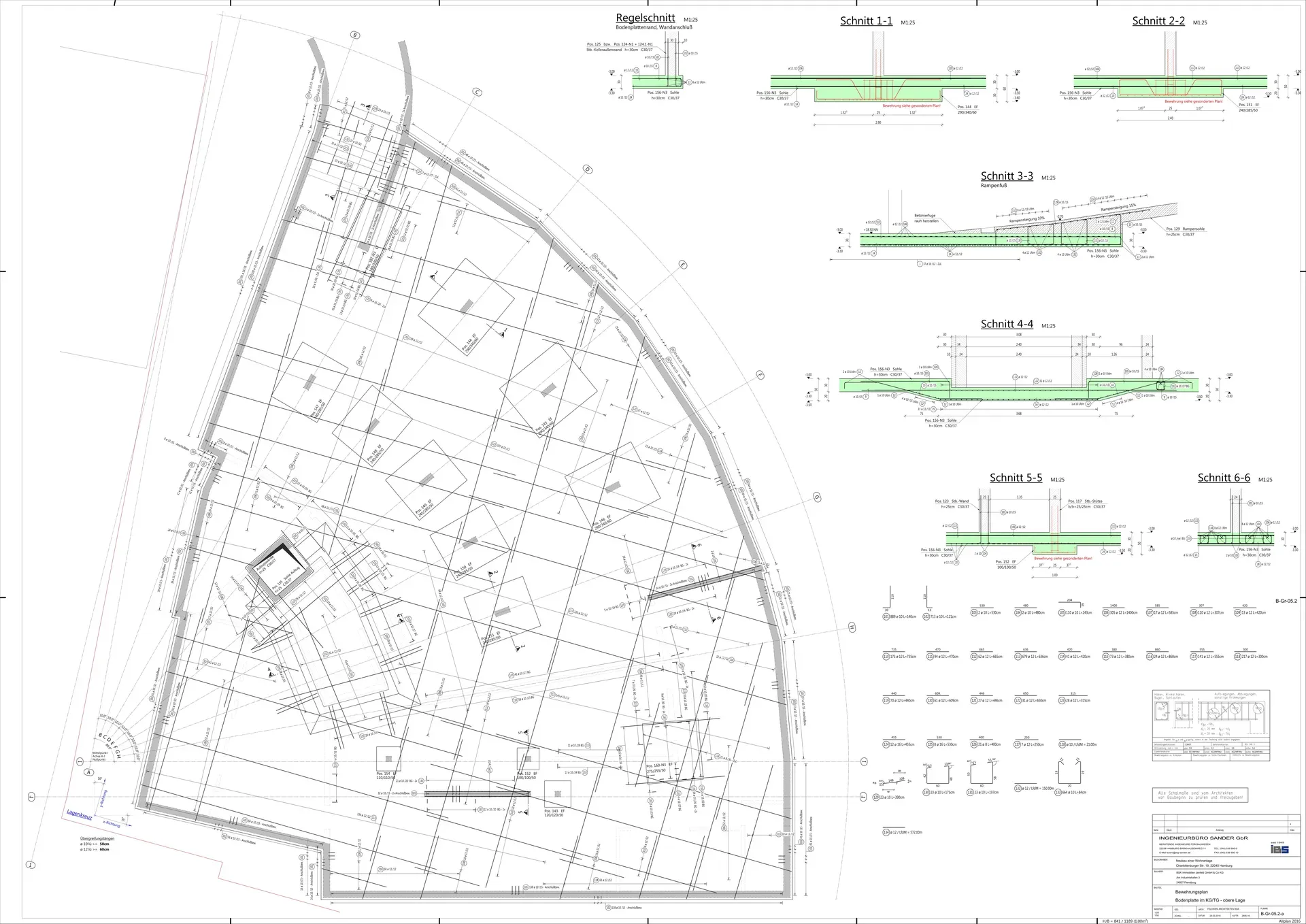
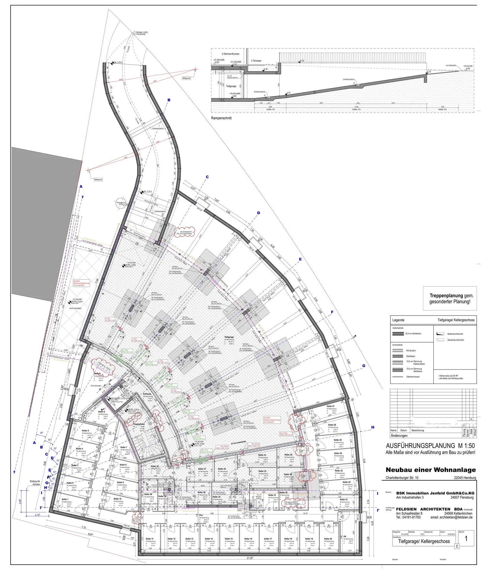
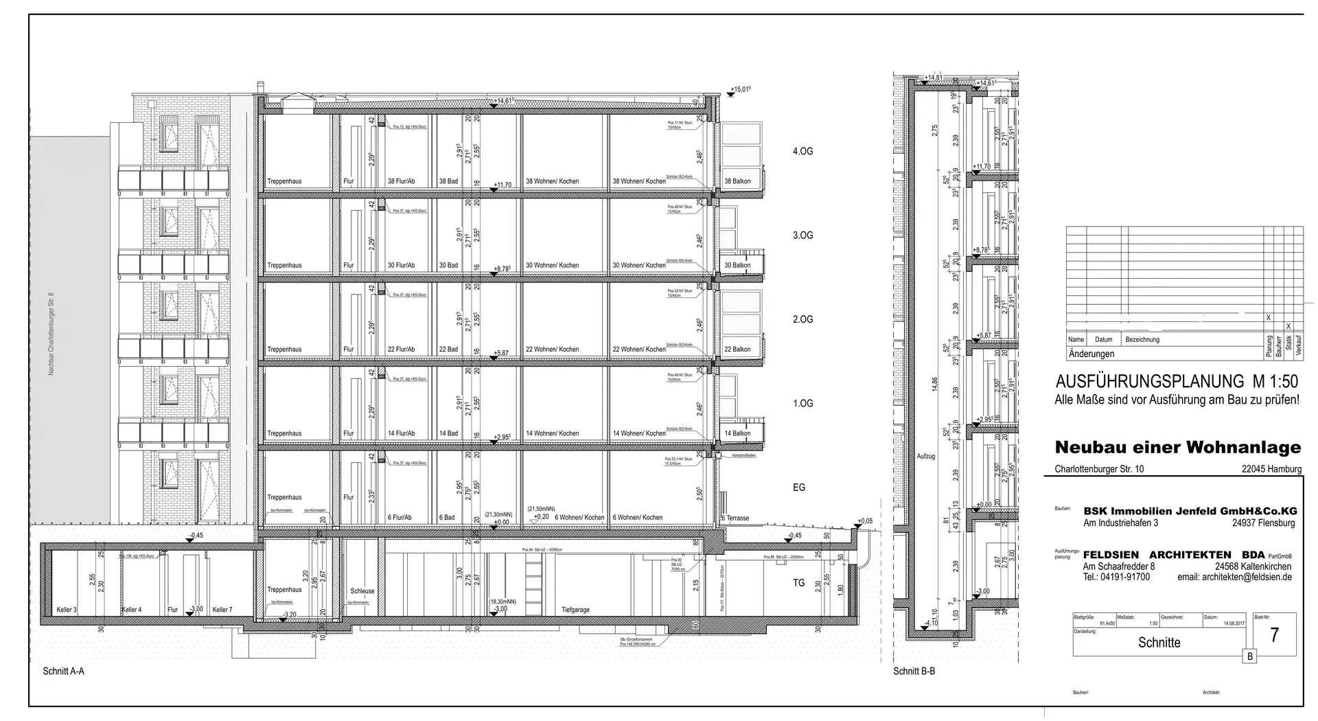
Bauvorhaben:
Neubau einer Wohnanlage mit 40 WE und Tiefgarage
Bauort:
Charlottenburger Straße 10, Hamburg
Bauherr:
BSK Immobilien Jenfeld GmbH&Co.KG
Architekt:
FELDSIEN ARCHITEKTEN BDA
Baujahr:
2018 / 19
Unsere Leistungen:
Statische Berechnung, Wärmeschutz- & Schallschutznachweis,
Positions-, Schal- und Bewehrungspläne
Positions-, Schal- und Bewehrungspläne















