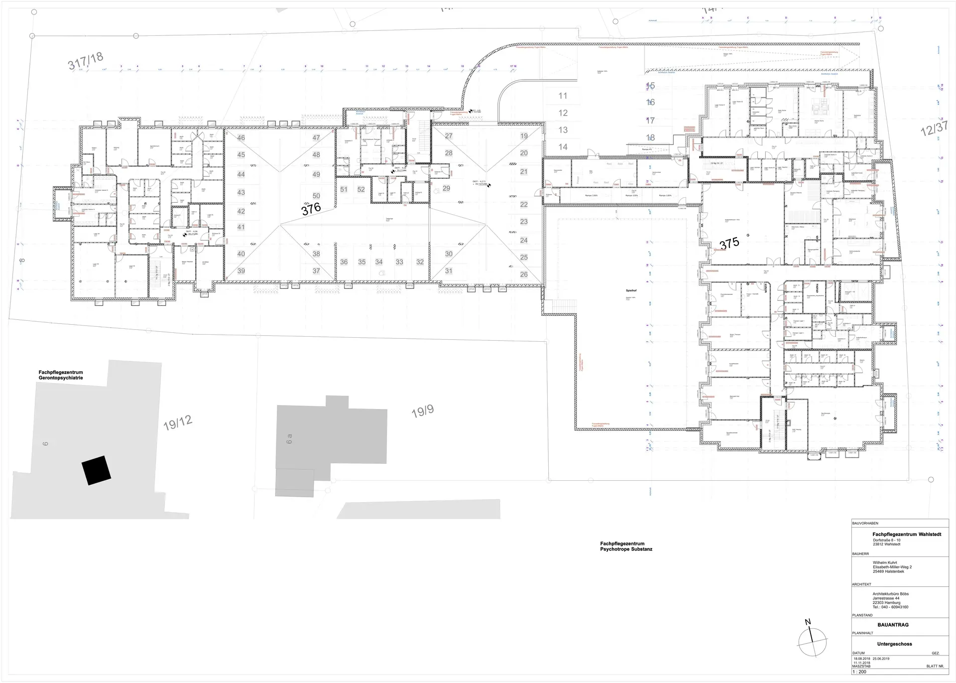
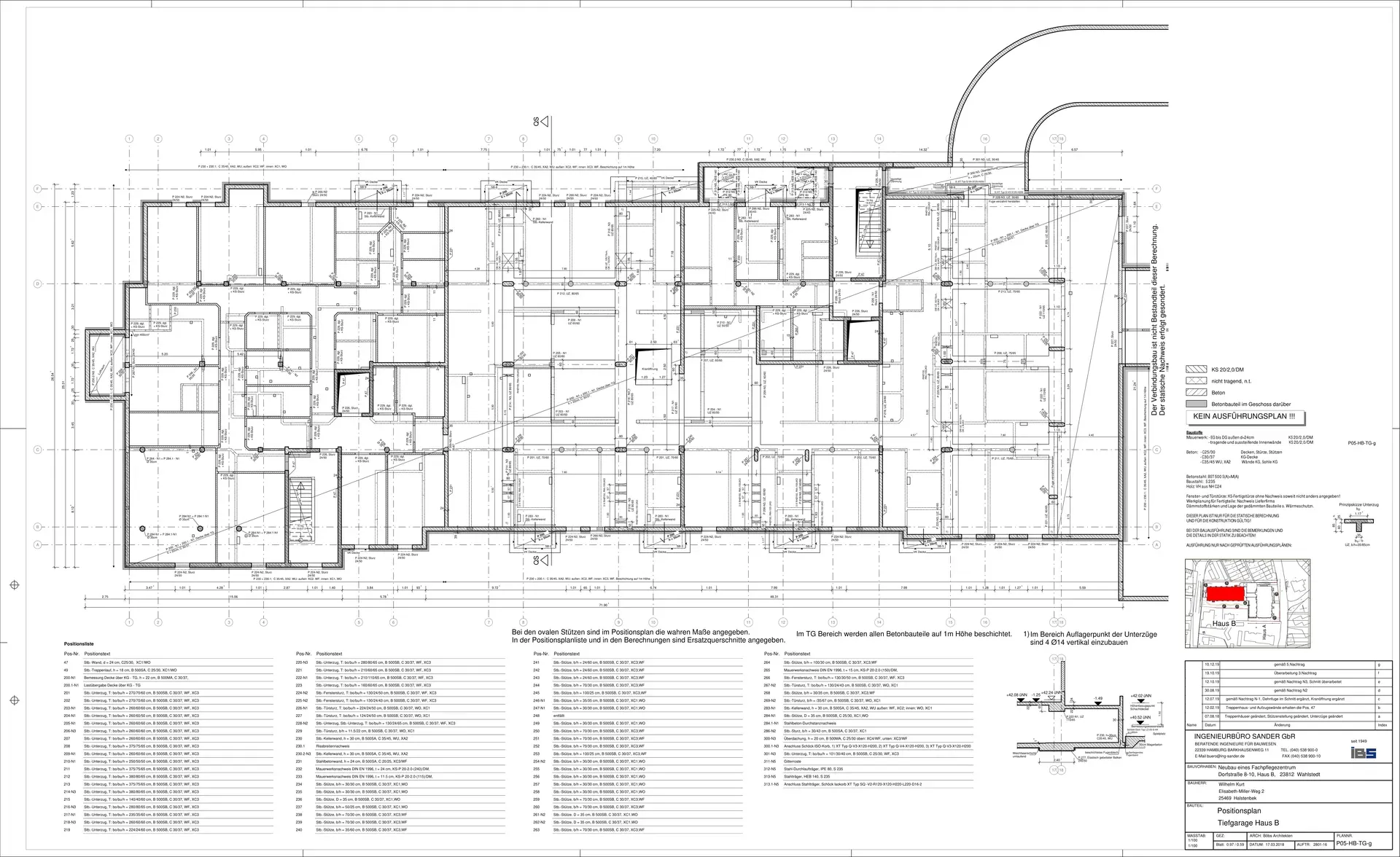
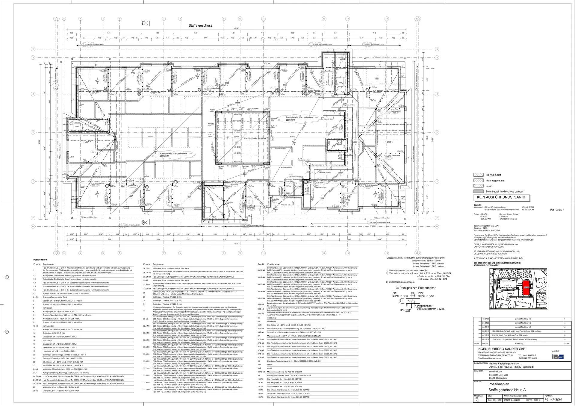
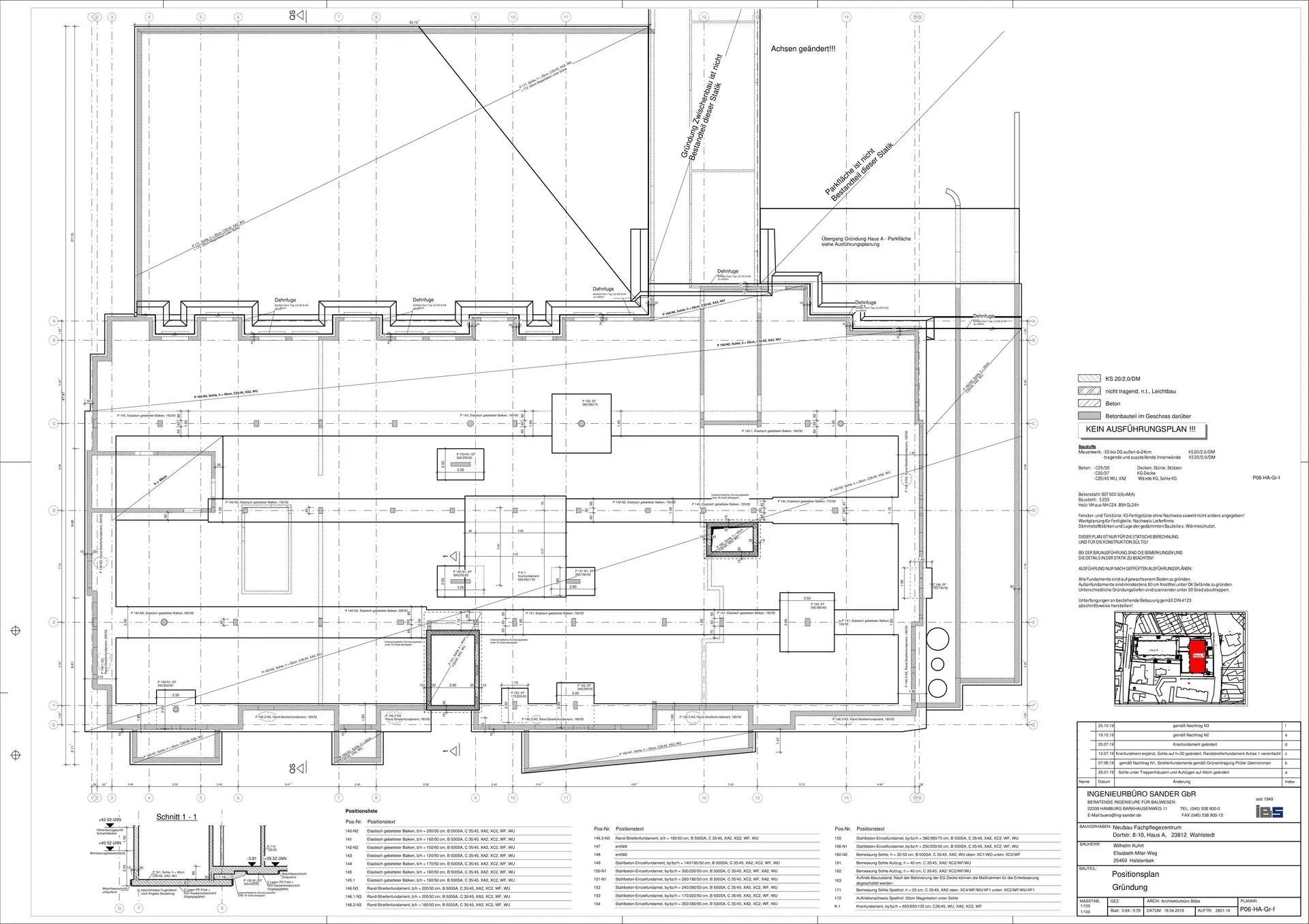
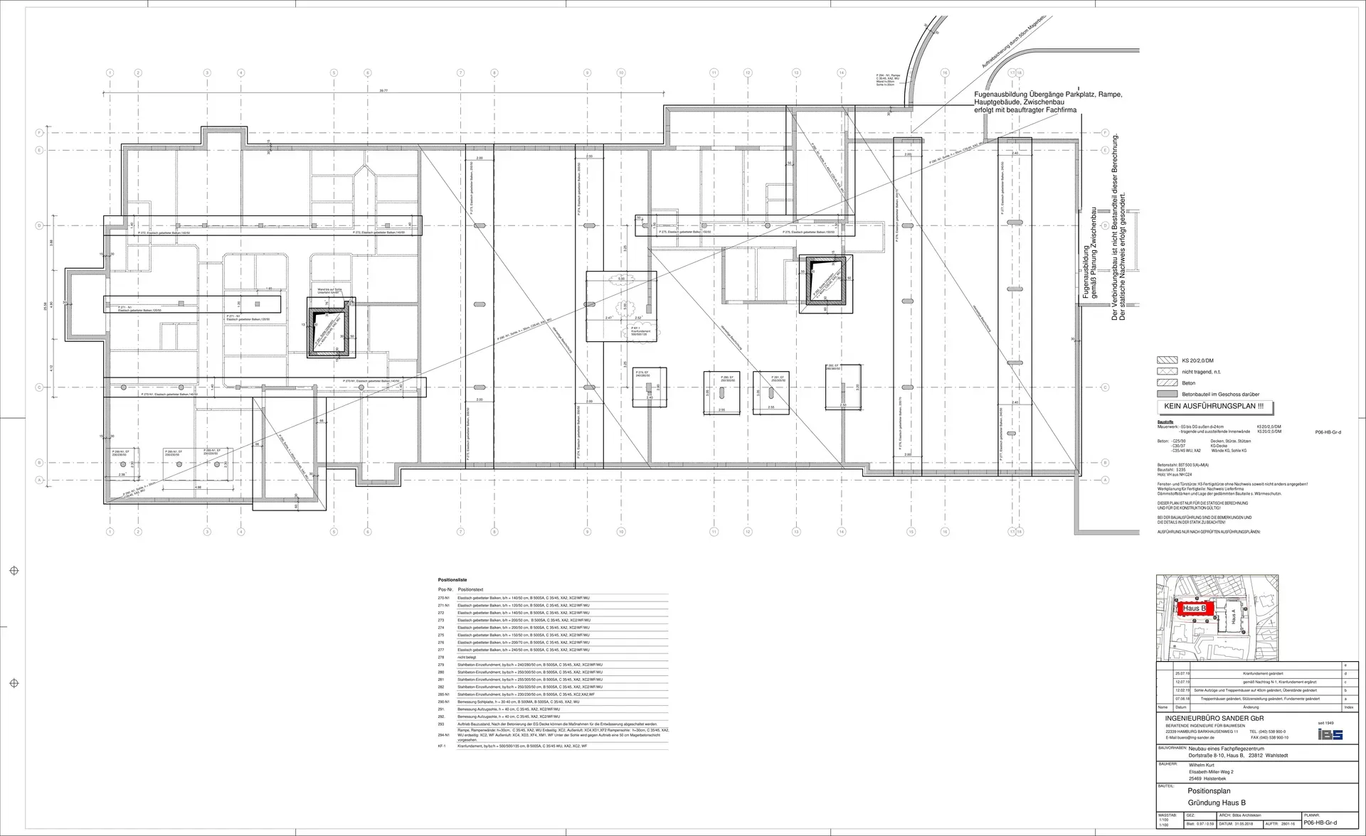
Bauvorhaben:
Neubau eines Fachpflegezentrums mit Tiefgarage
Bauort:
Dorfstraße 8-10,
Wahlstedt
Bauherr:
HVVG Heimverwaltungs- und Vermietungsgesellschaft mbH
Architekt:
Planungsbüro Böbs
Baujahr:
2019/20
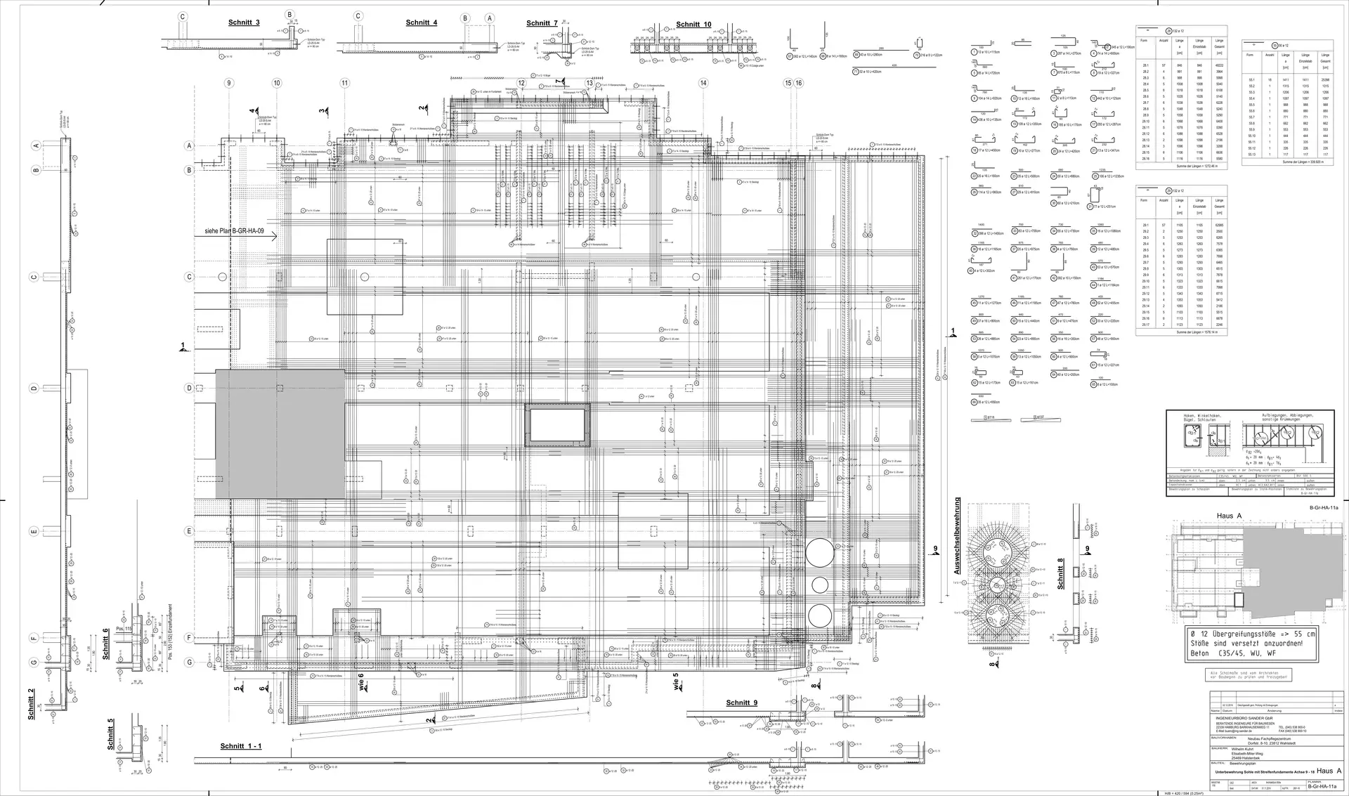
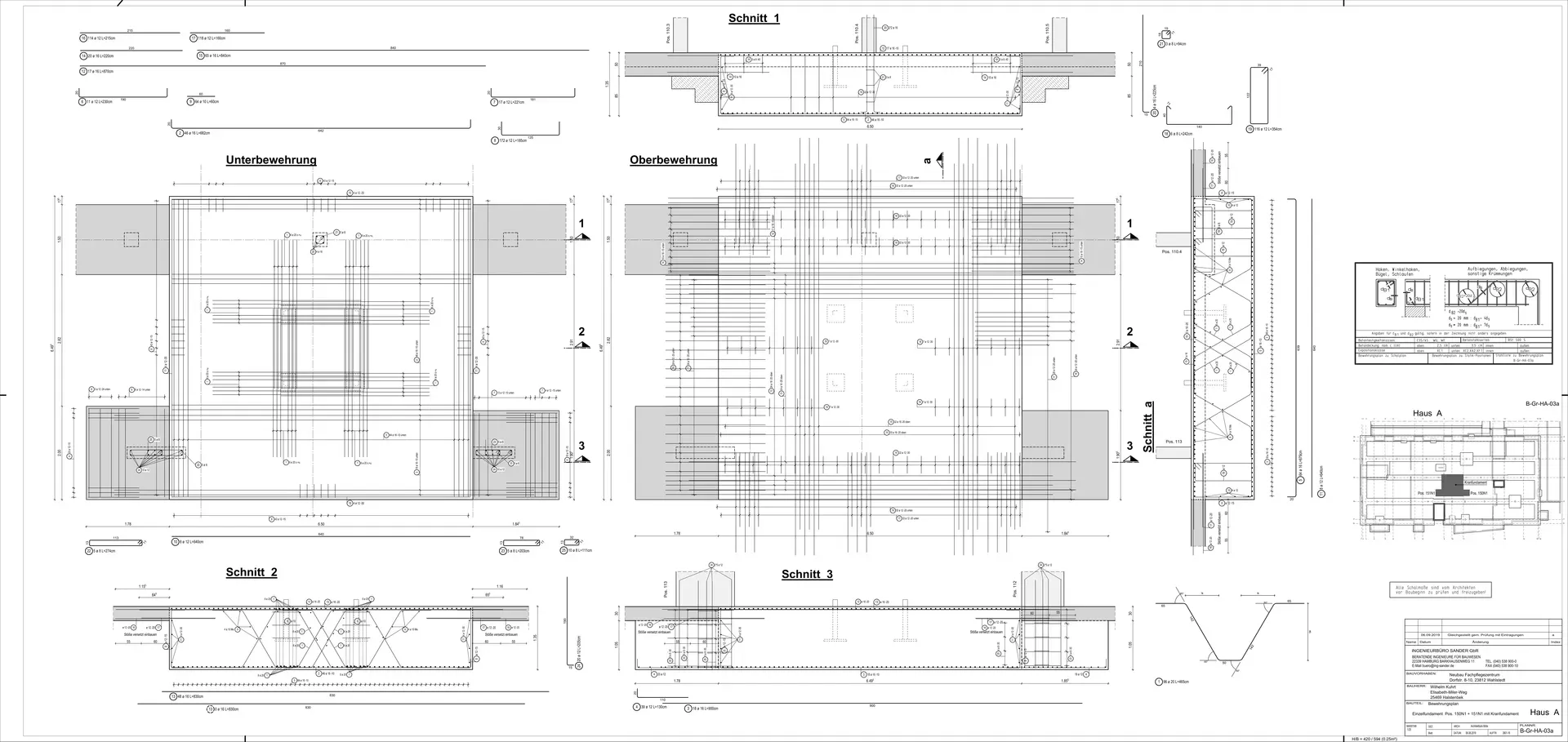
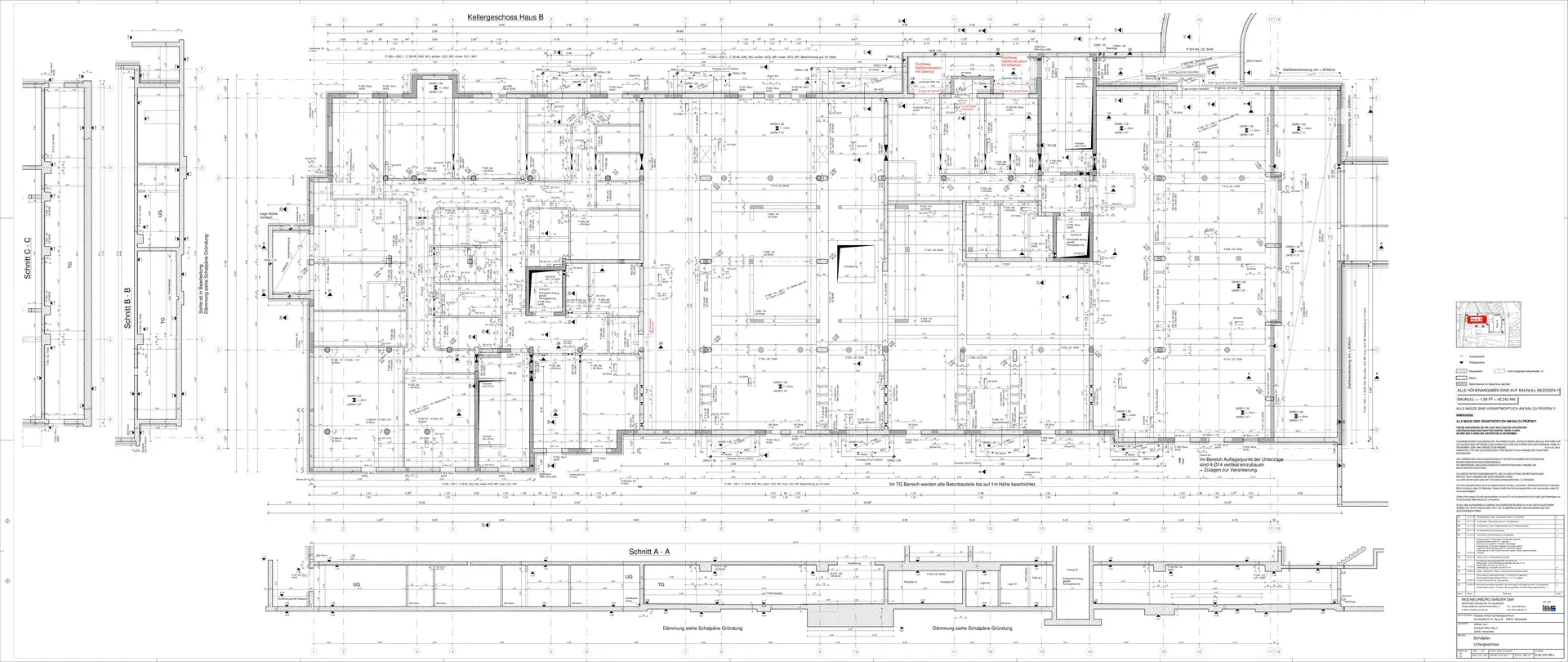
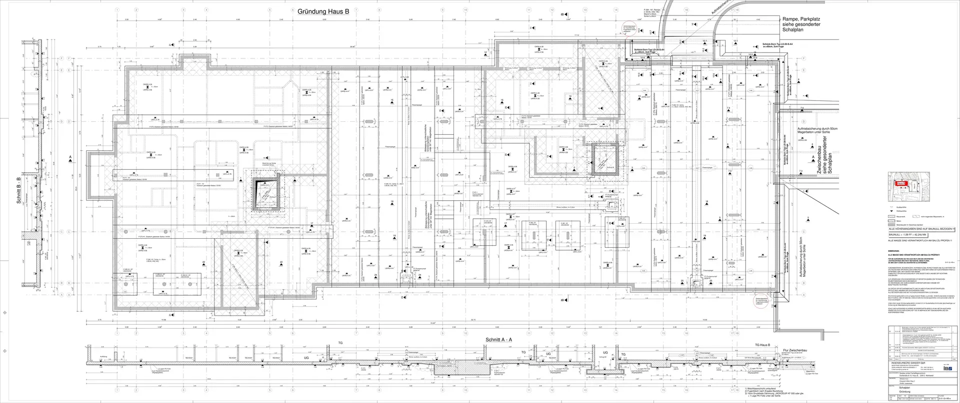
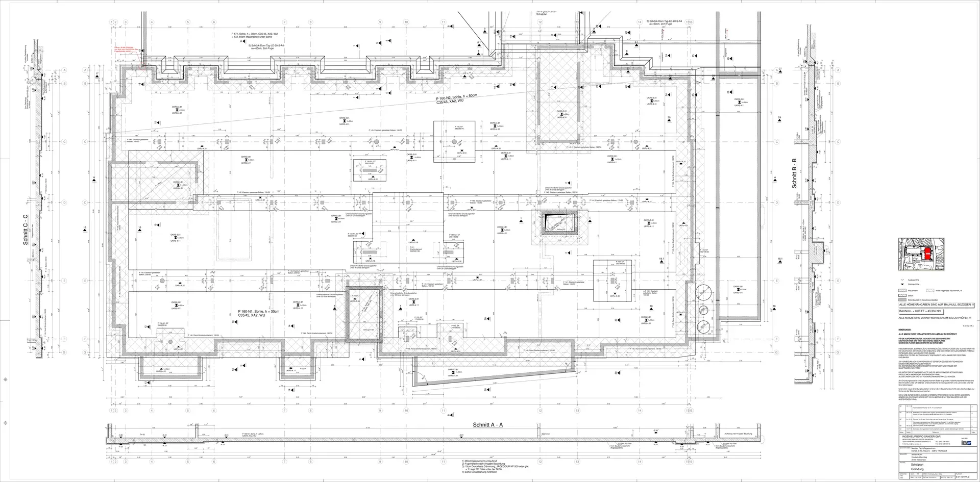
Besonderheit: es wurden ca. 3400m² WU-Sohle hergestellt
Unsere Leistungen:
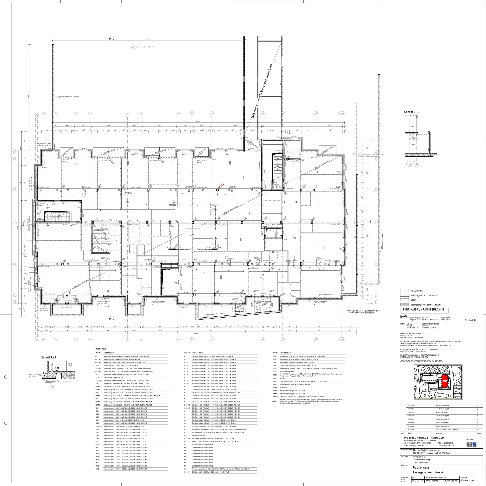
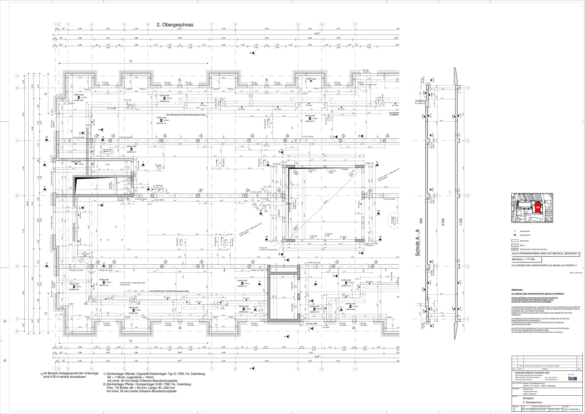
Statische Berechnung, baulicher Brandschutz, Wärmeschutz- & Schallschutznachweis,
Positions-, Schal- und Bewehrungspläne
Positions-, Schal- und Bewehrungspläne






























