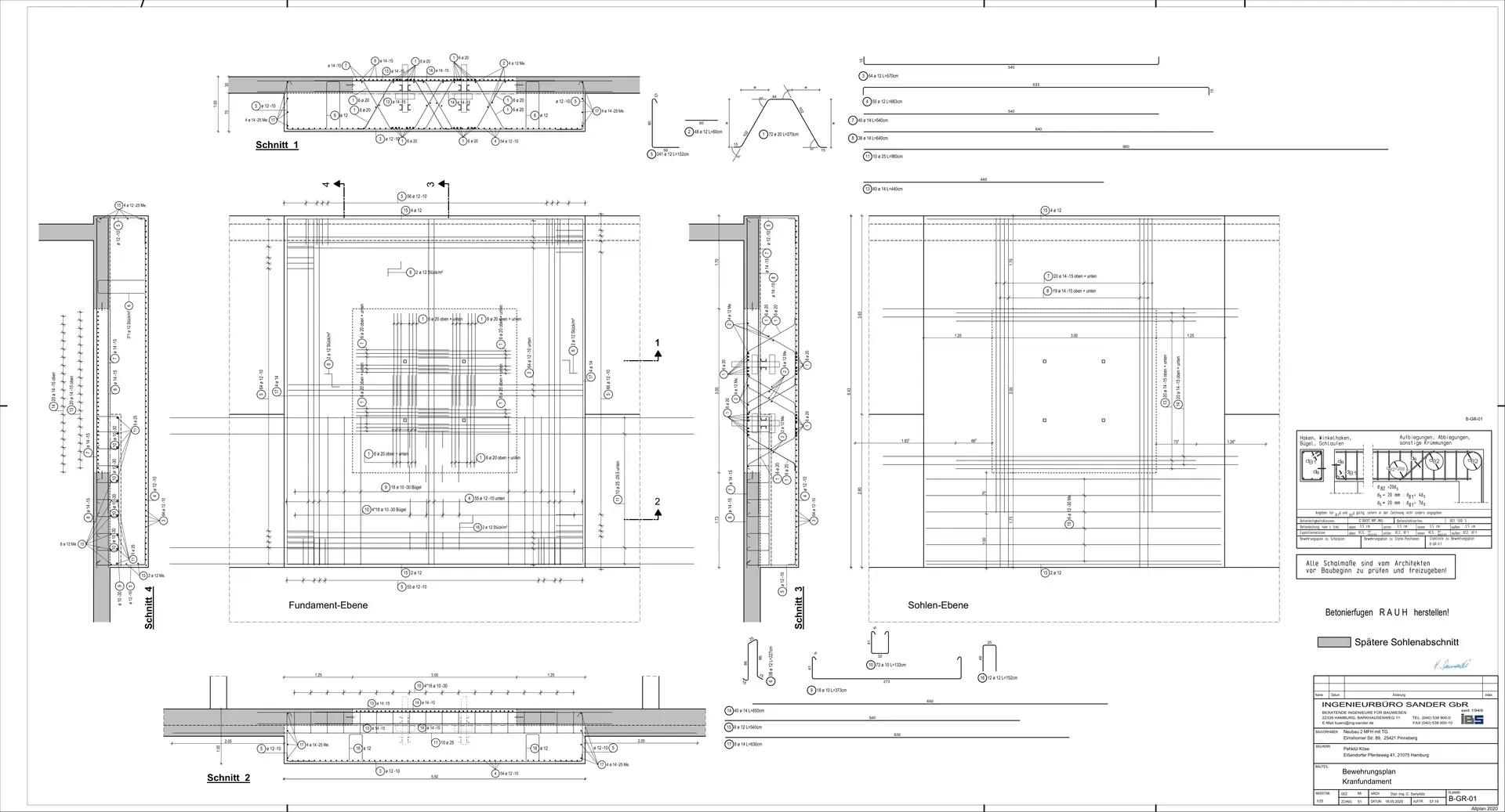
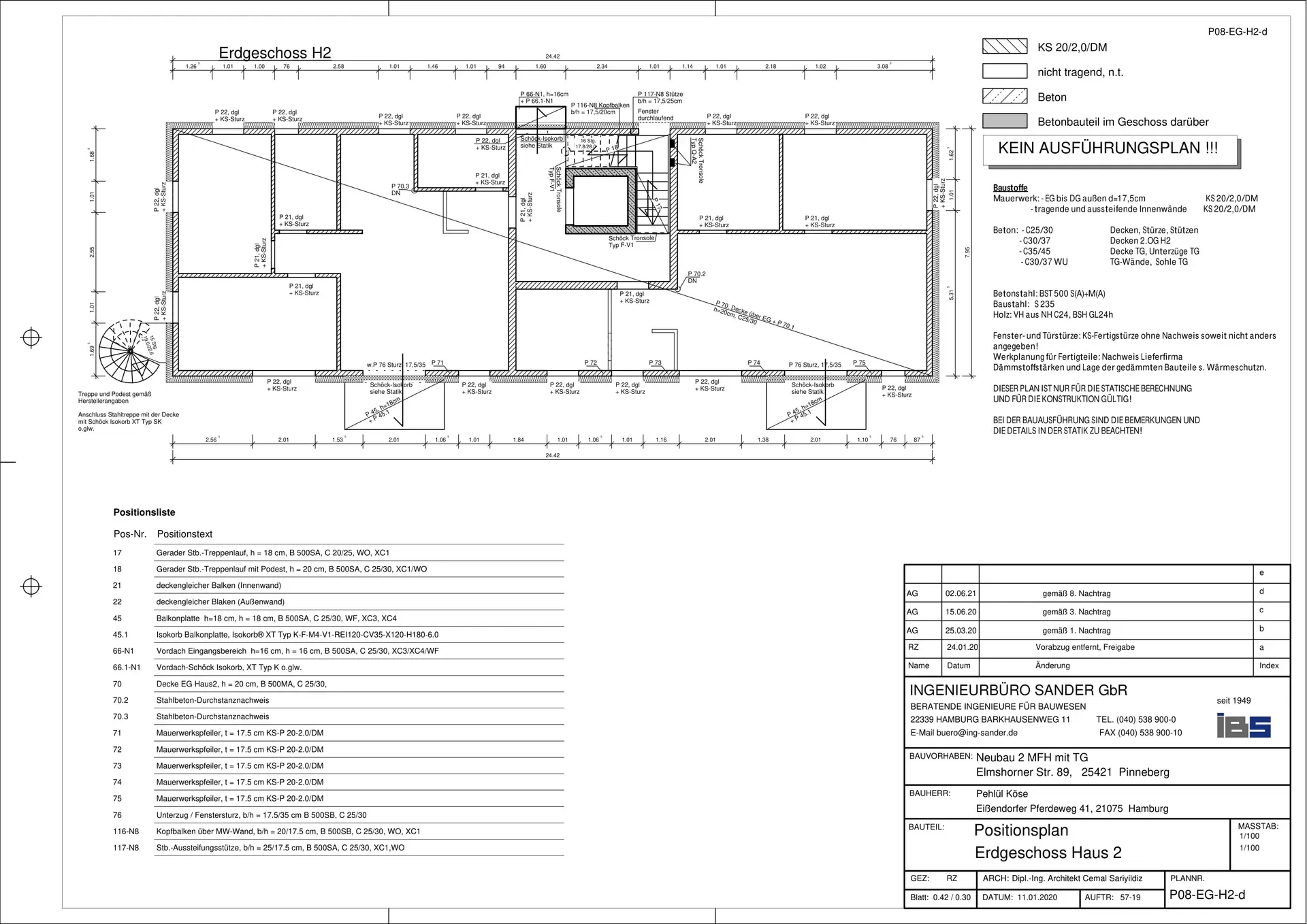
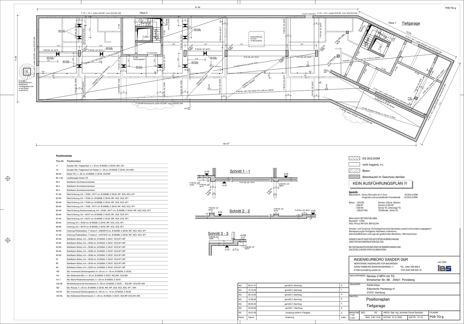
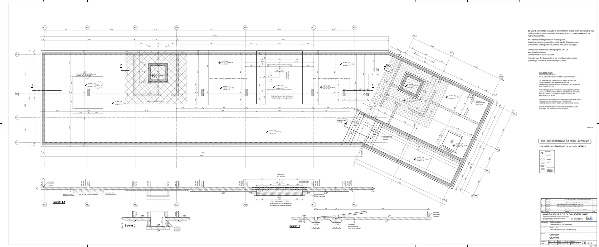
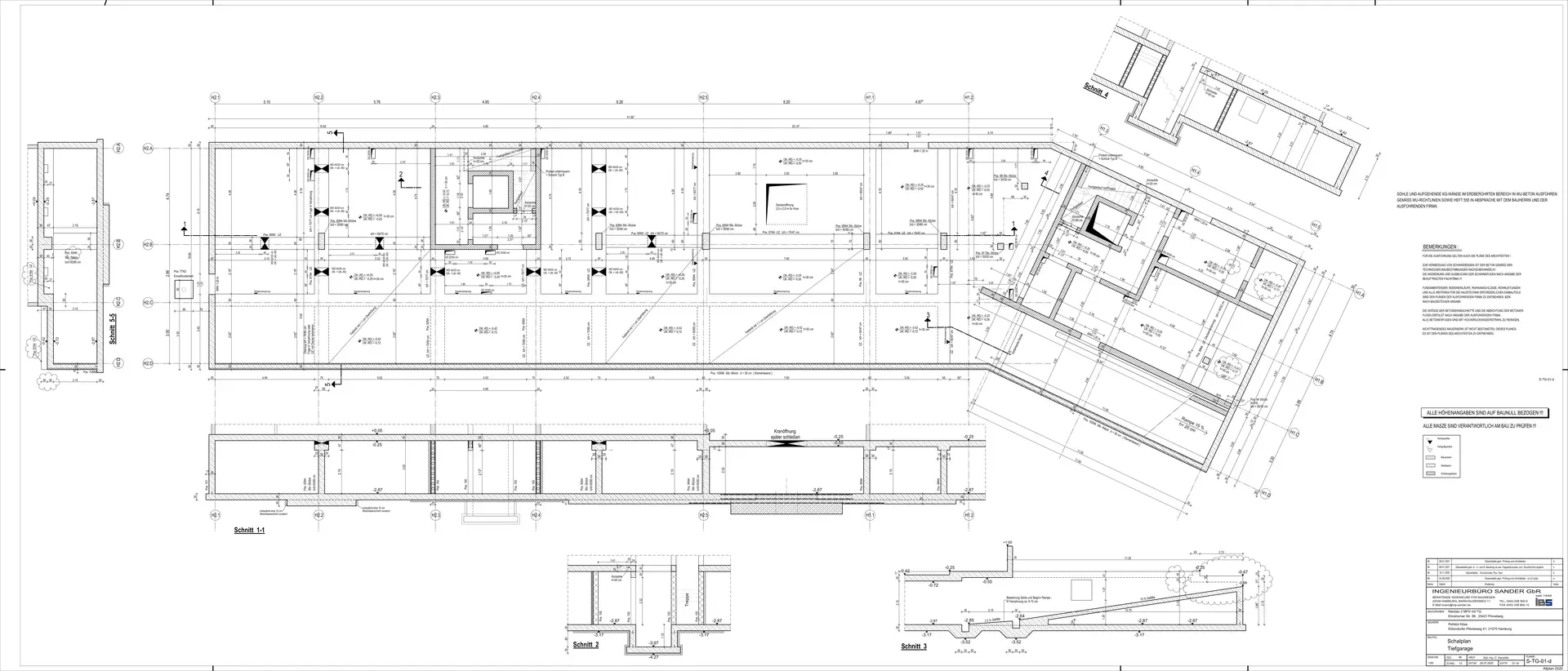
Bauvorhaben: Neubau zweier MFH mit TG
Bauort:
Elmshorner Straße 89, Pinneberg
Bauherr:
Köse Immobilien
Architekt:
Dipl. Ing. Architekt Cemal Sariyildiz
Baujahr:
2020/2021
Unsere Leistungen: Statische Berechnung, Positions-, Schal- und Bewehrungspläne
Ingenieurbüro Sander - Barkhausenweg 11 - 22339 Hamburg - Tel.:
040/538 9000 - Mail:
buero@ing-sander.de