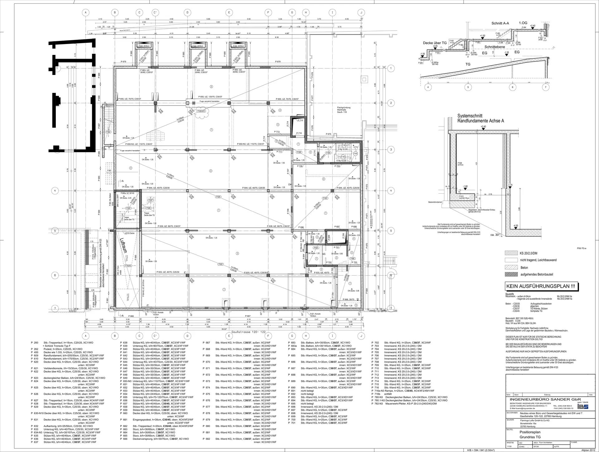
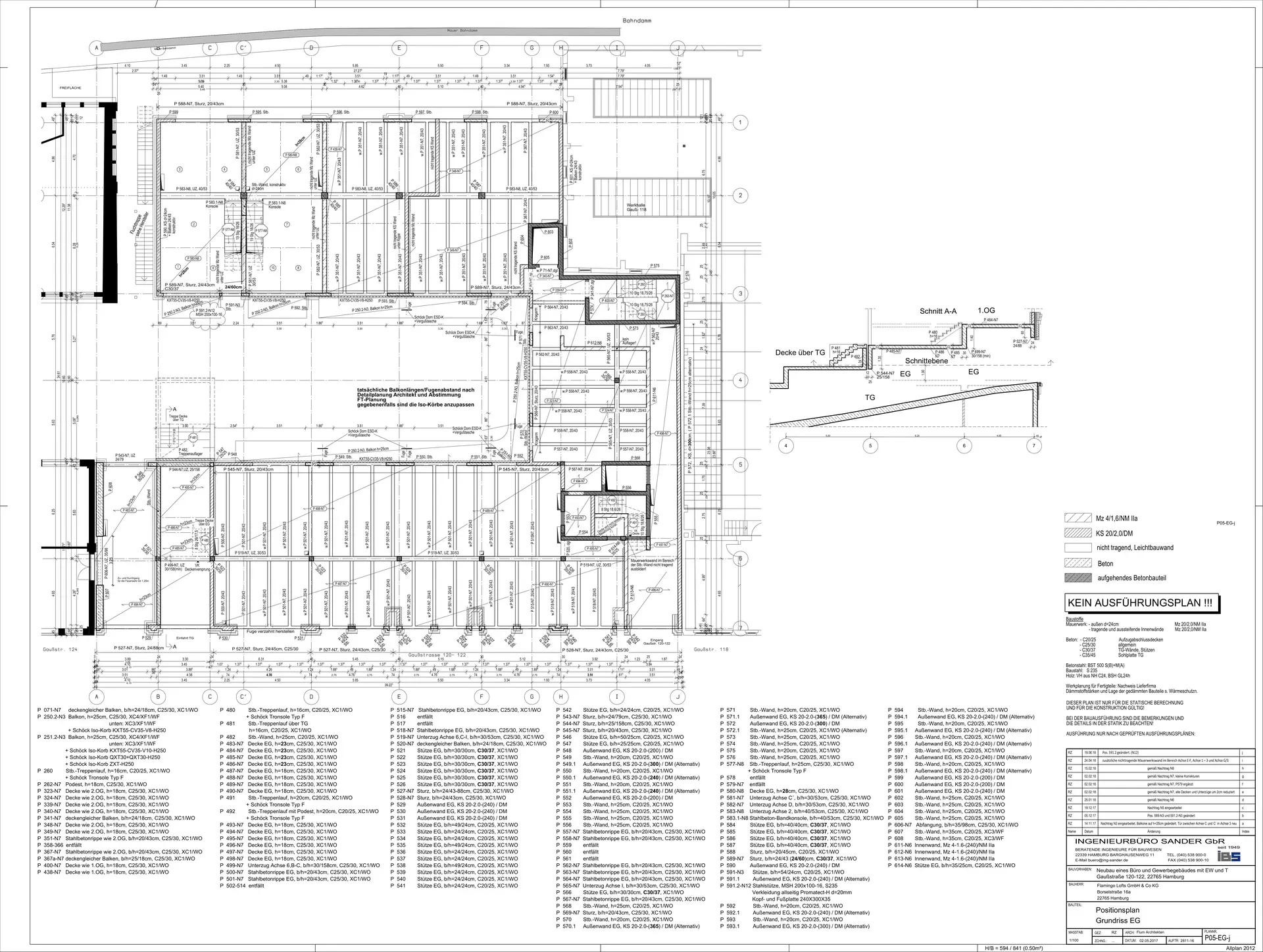
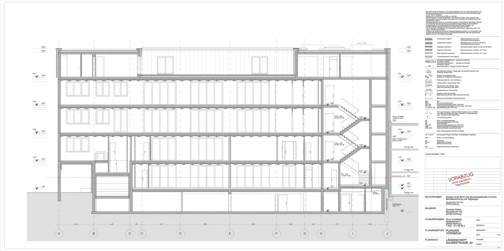
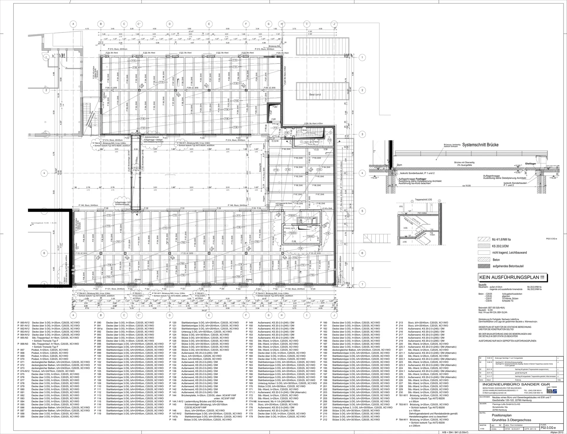
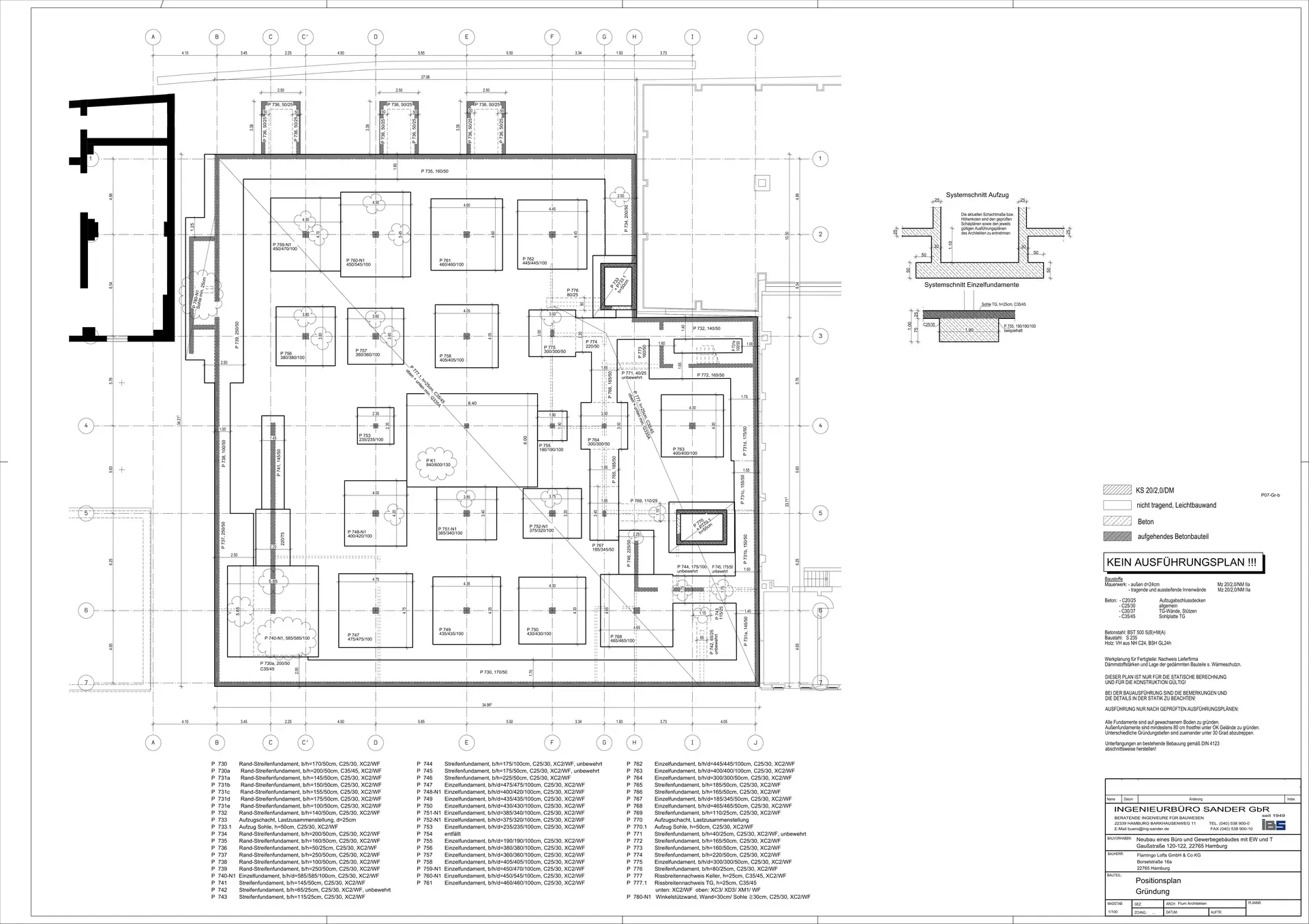
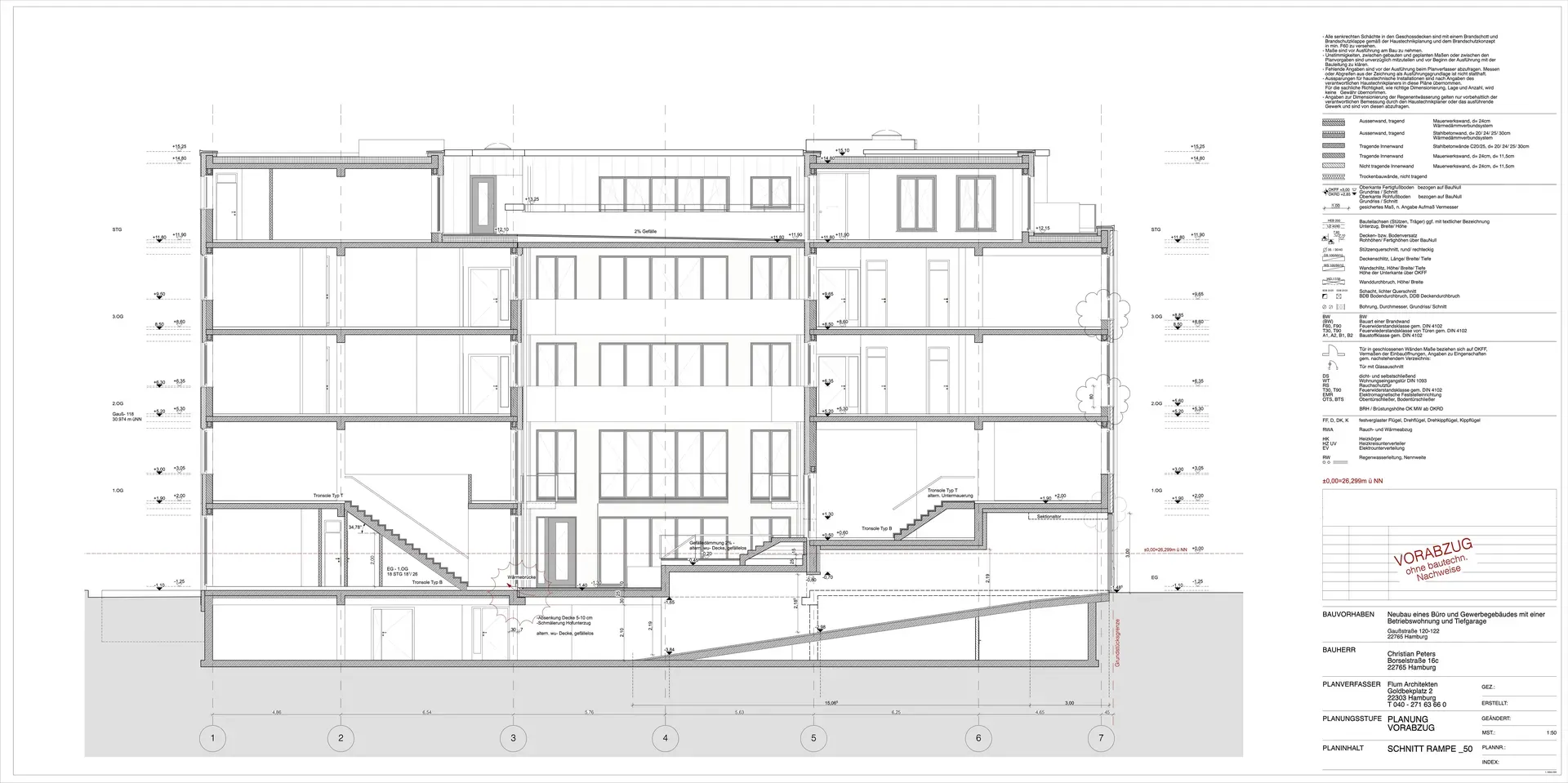
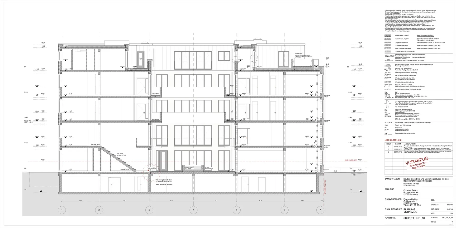
Bauvorhaben: Neubau eines Büro- und Gewerbegebäudes mit einer Betriebswohnung und Tiefgarage

Bauort: Gaußstraße 120-122

Bauherr: Christian Peters

Architekt: Flum Architekten

Baujahr: 2018

Unsere Leistungen: Statische Berechnung, Schallschutznachweis, Positionspläne