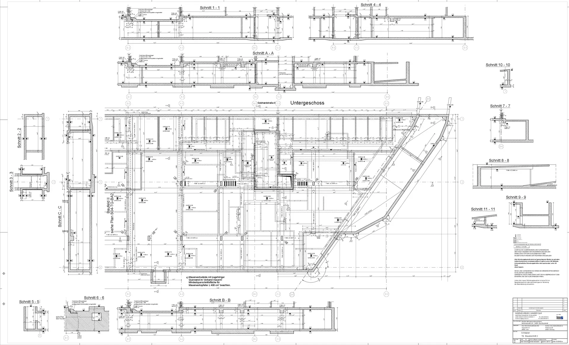
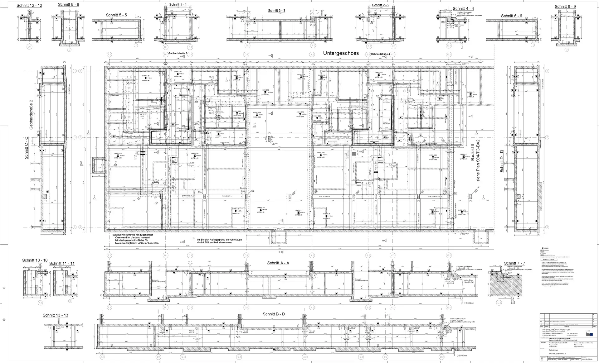
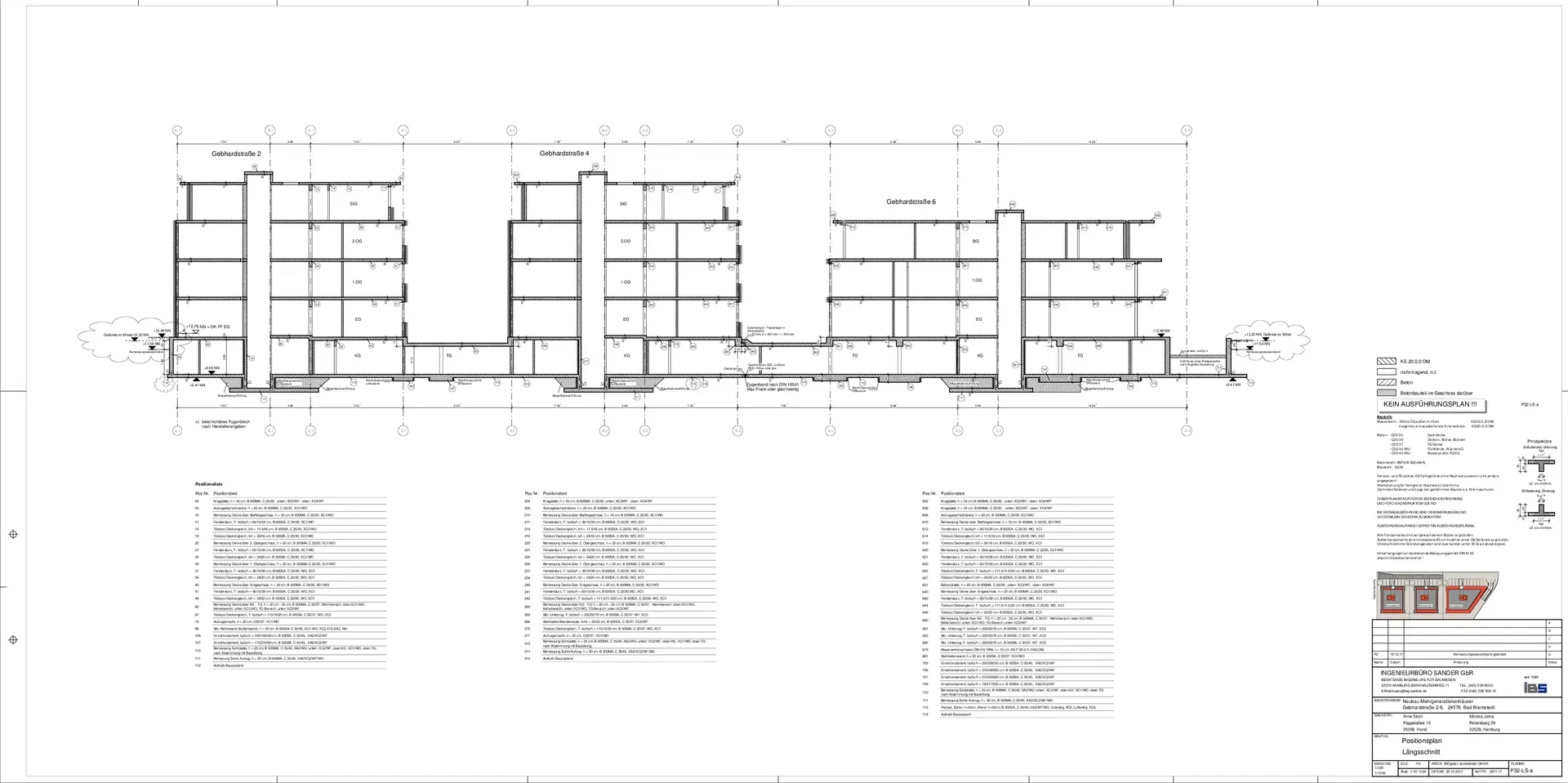
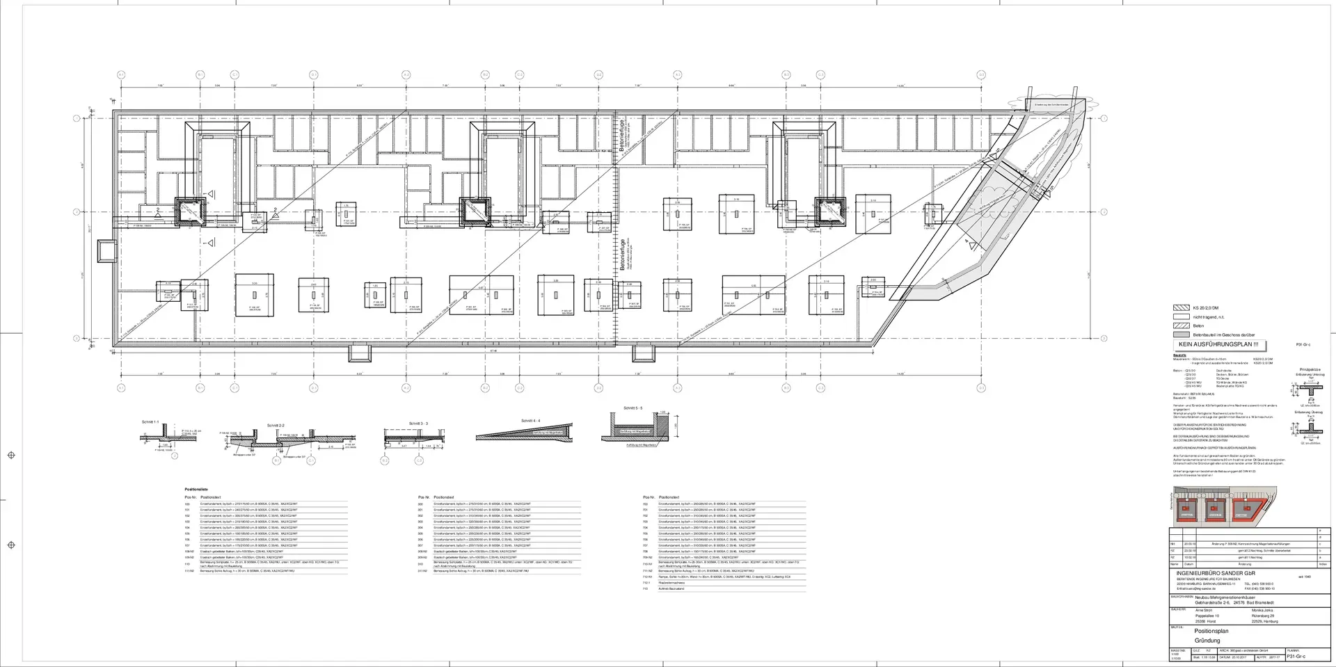
Bauvorhaben:
Neubau dreier Mehrfamilienhäuser
Tiefgarage
Bauort:
Gebhardstraße 2-6, Bad Bramstedt
Bauherr:
Monika Jorka, Arne Stroh
Architekt:
360grad+ architekten gmbh
Baujahr:
2017/18
Unsere Leistungen:
Statische Berechnung, baulicher Brandschutz, Schallschutznachweis,
Positions-, Schal- und Bewehrungspläne
Positions-, Schal- und Bewehrungspläne
















