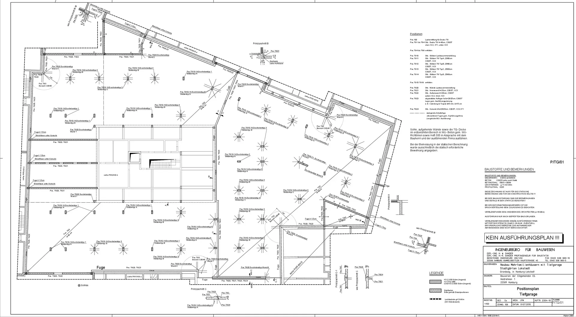
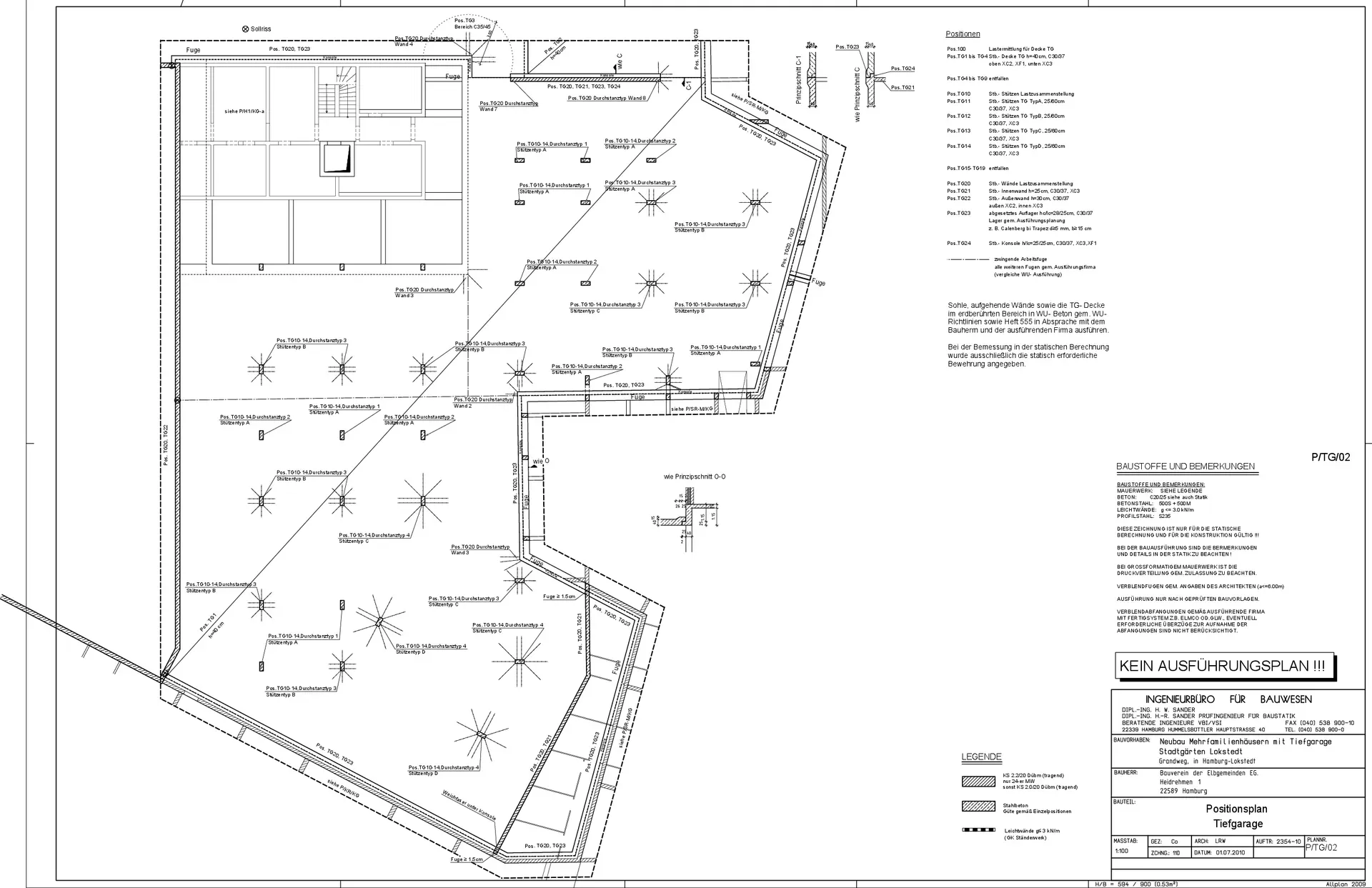
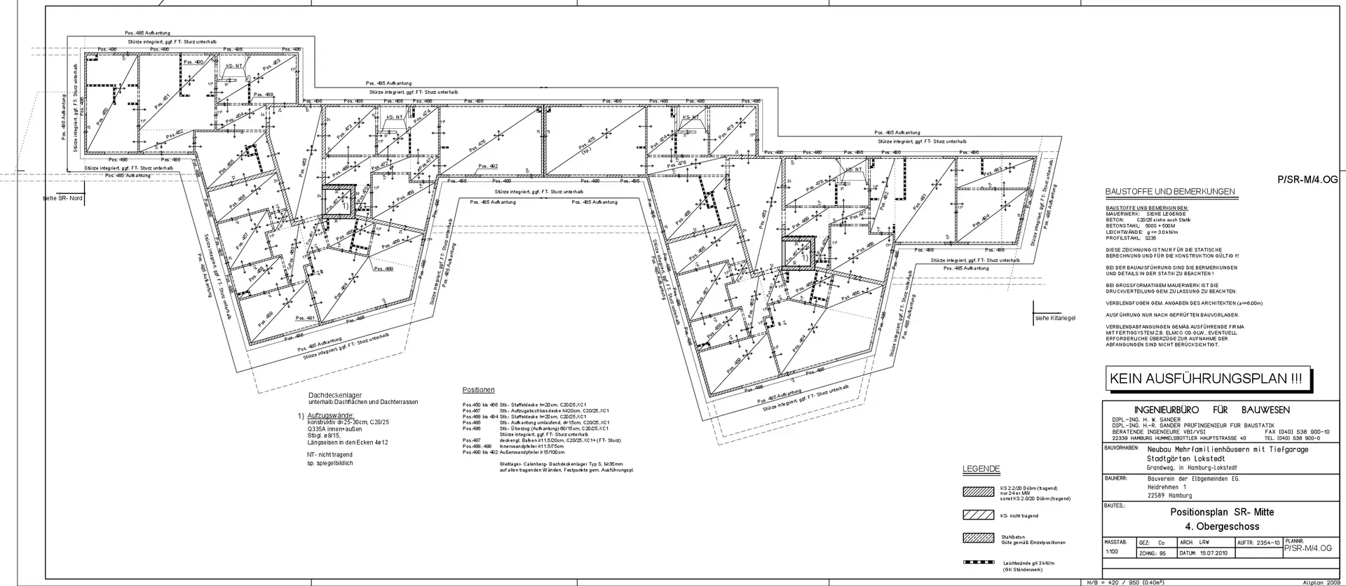
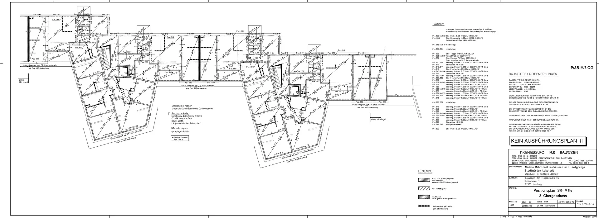
Bauvorhaben:
Stadtgärten Lokstedt, Mehrfamilienhäuser mit 143 WE und einer Kita
sowie TG mit 124 Stellplätzen
Bauort:
Grandweg 91-95, Hamburg
Bauherr:
BVE - Bauverein der Elbgemeinden EG
Architekt:
kbnk Architekten GmbH
Reiner Maria Löneke Architekten
Loosen Rüschoff + Winkler
Baujahr:
2012
Unsere Leistungen:
Statische Berechnung, baulicher Brandschutz, Schall- und Wärmeschutznachweis,
Positions-, Schal- und Bewehrungspläne
Positions-, Schal- und Bewehrungspläne









