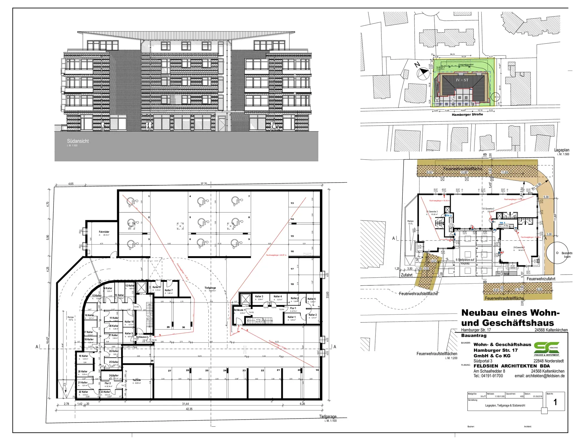
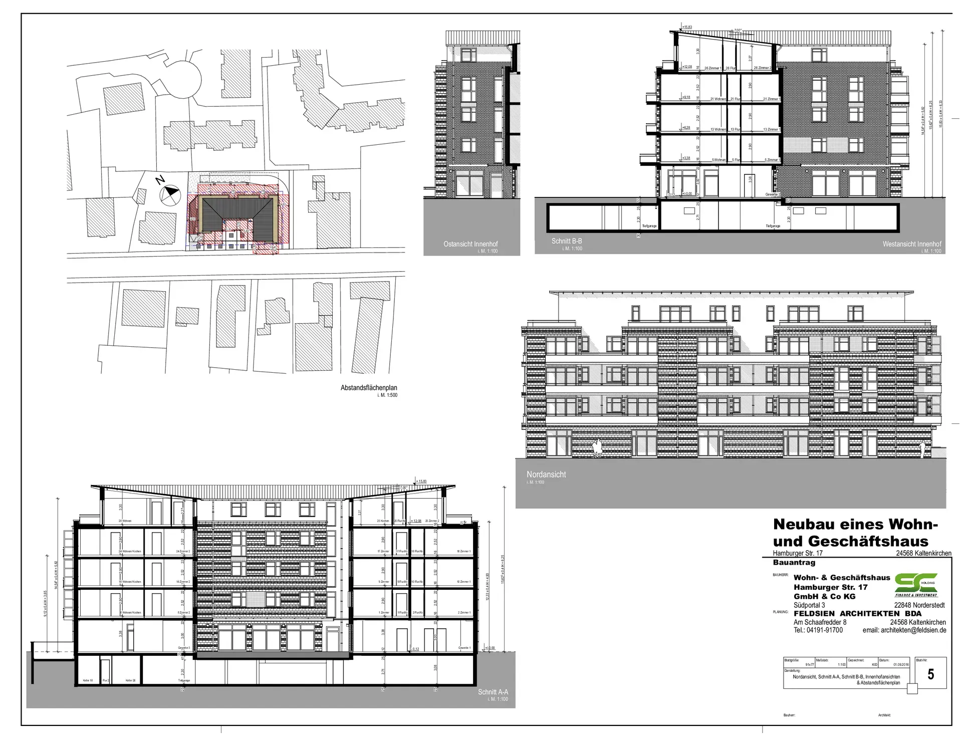
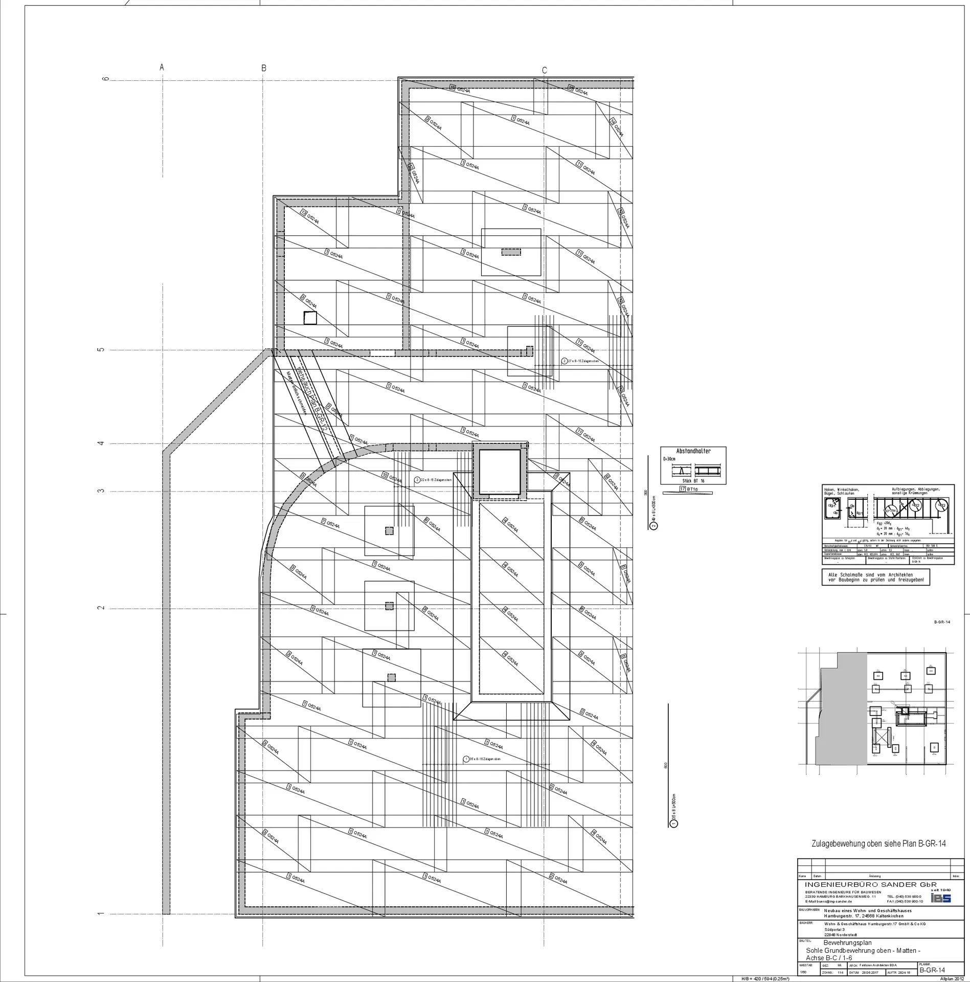
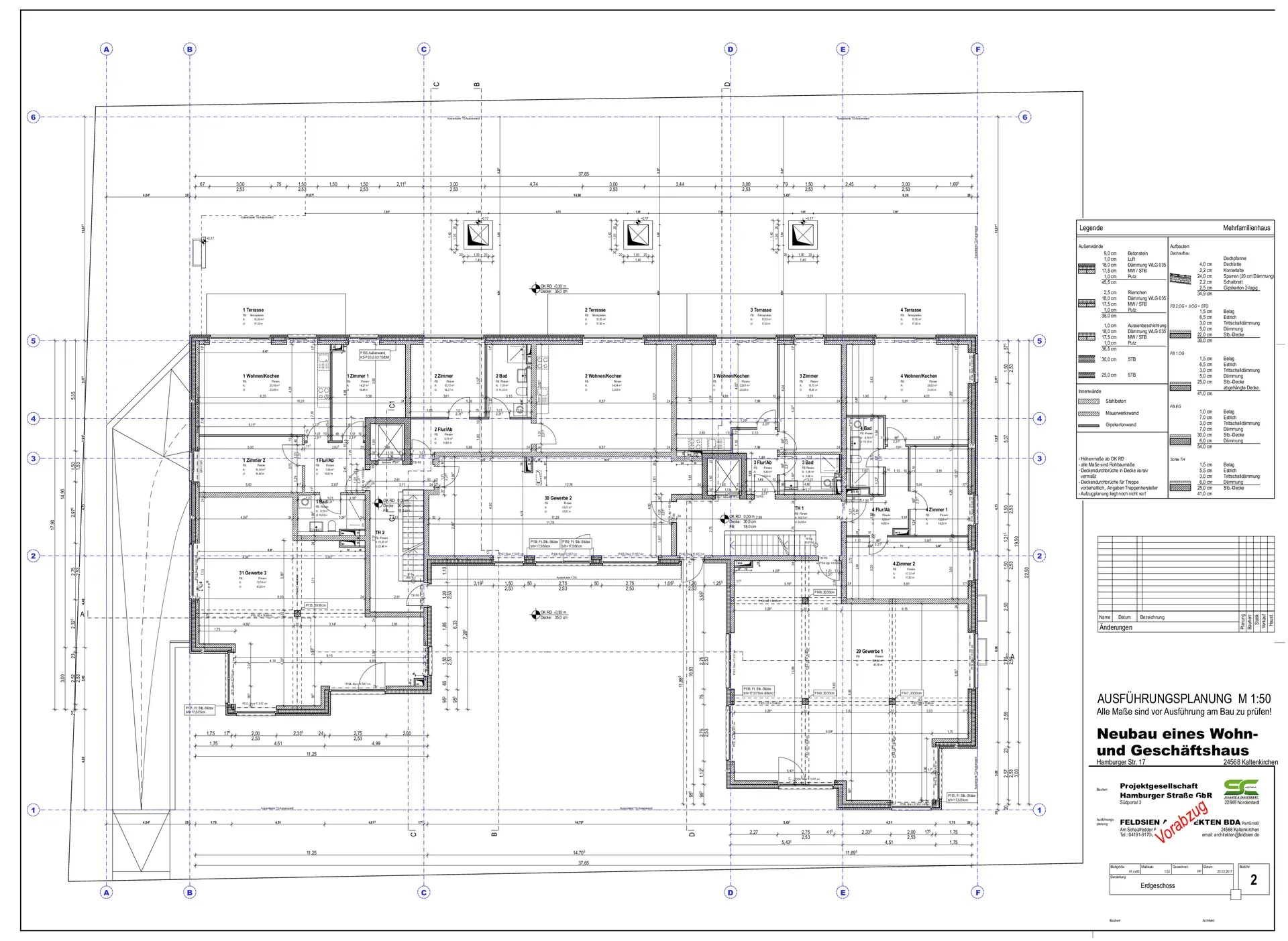
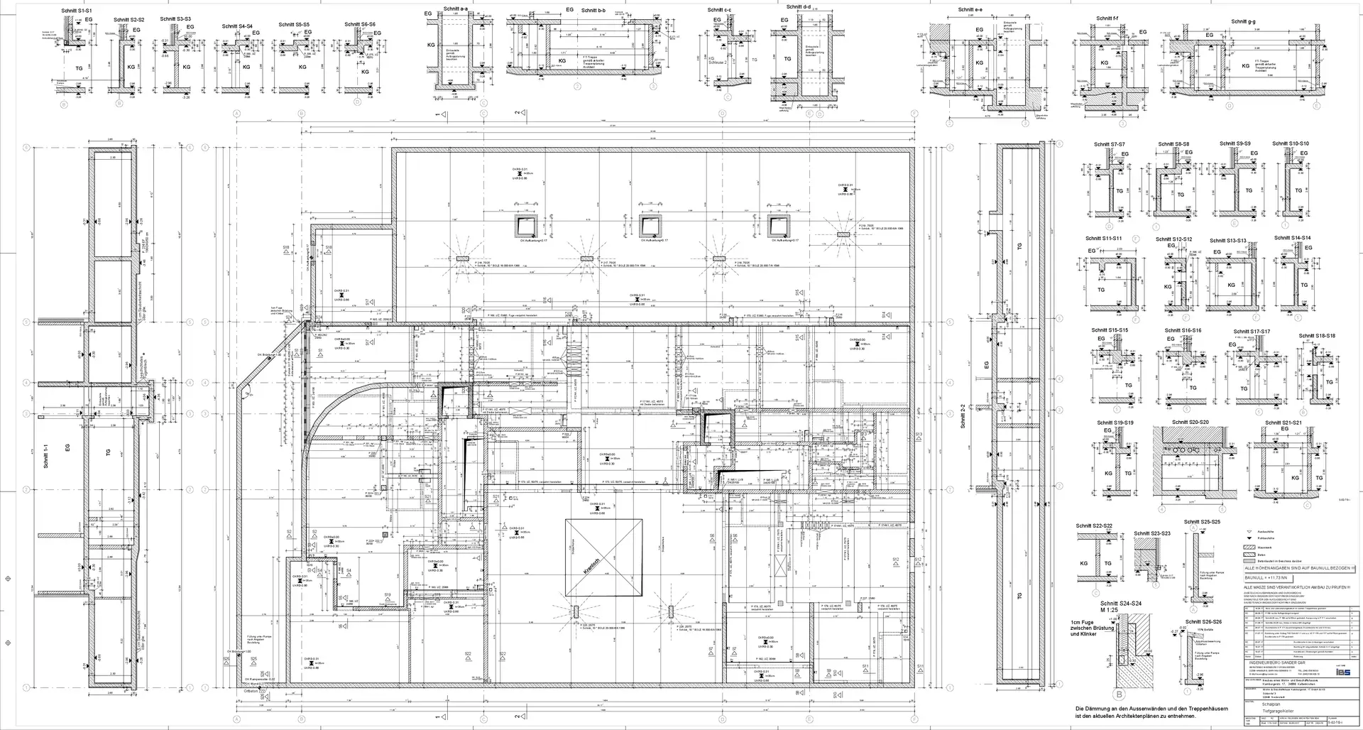
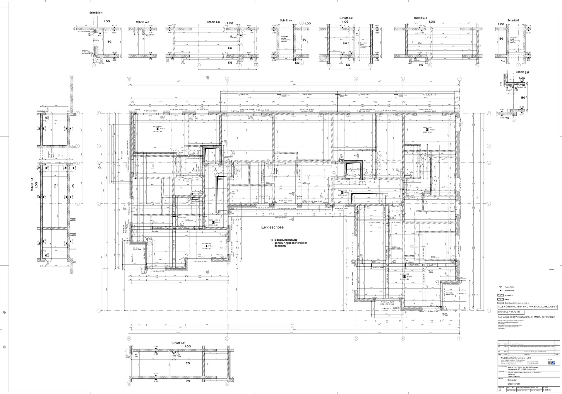
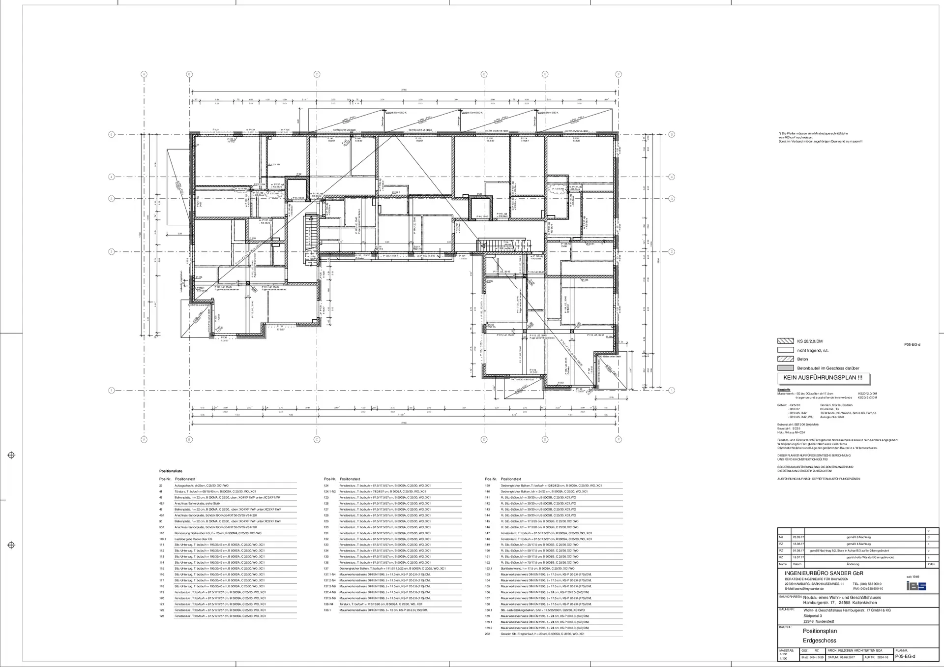
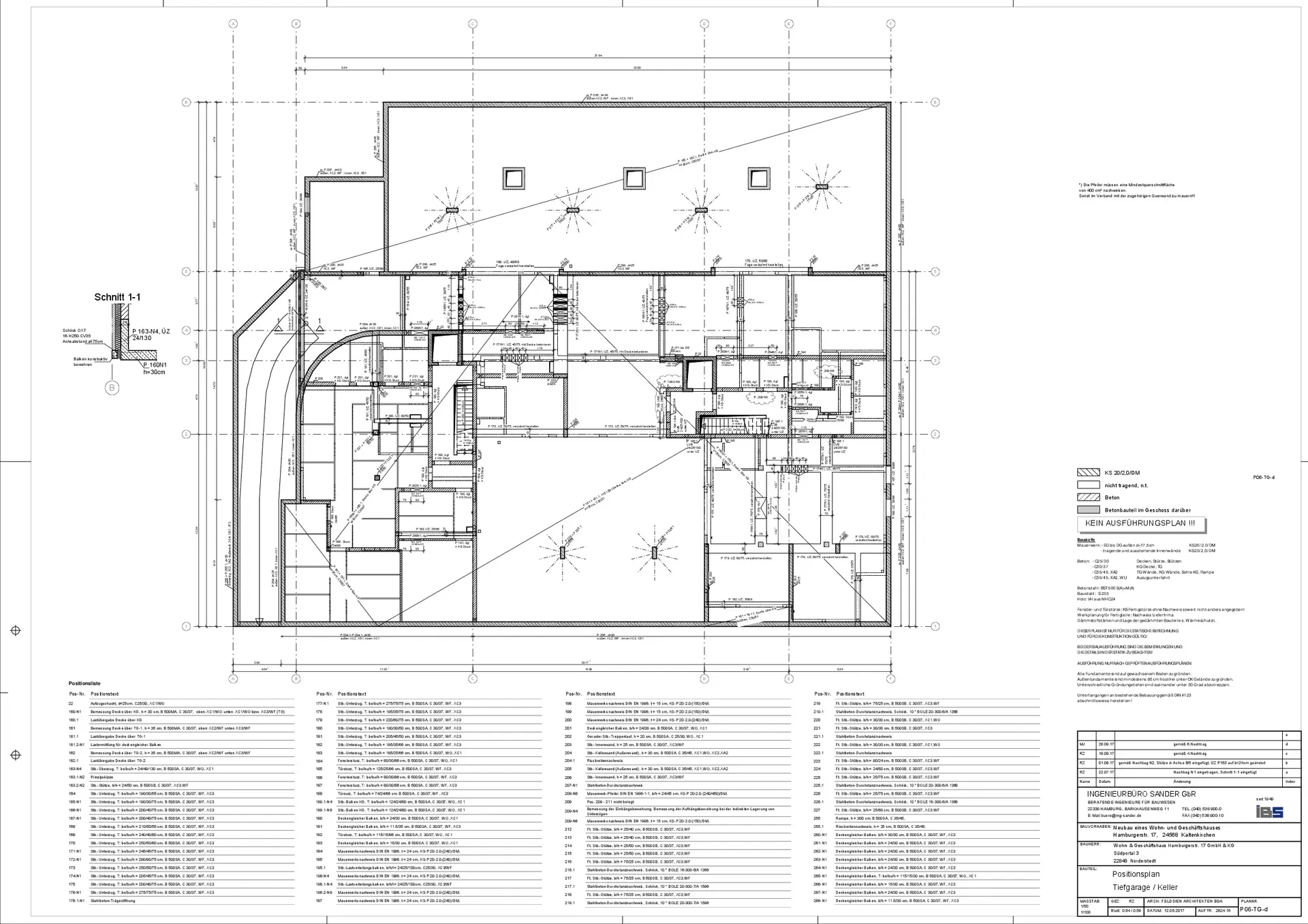
Bauvorhaben: Neubau eines Mehrfamilienhauses mit 29 Wohneinheiten und Tiefgarage
Bauort:
Hamburger Str. 17, Kaltenkirchen
Bauherr: Wohn- & Geschäftshaus Hamburgerstraße GbR
Architekt:
FELDSIEN ARCHITEKTEN BDA
Baujahr: 2017/18
Unsere Leistungen: Statische Berechnung, baulicher Brandschutz, Wärmeschutz- & Schallschutznachweis, Positions-, Schal- und Bewehrungspläne













