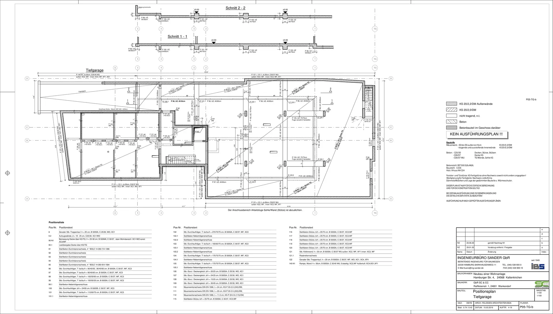
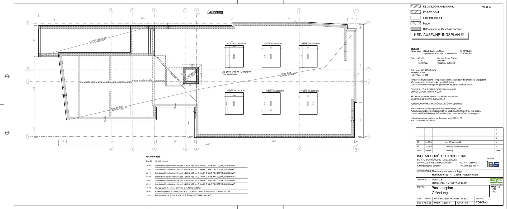
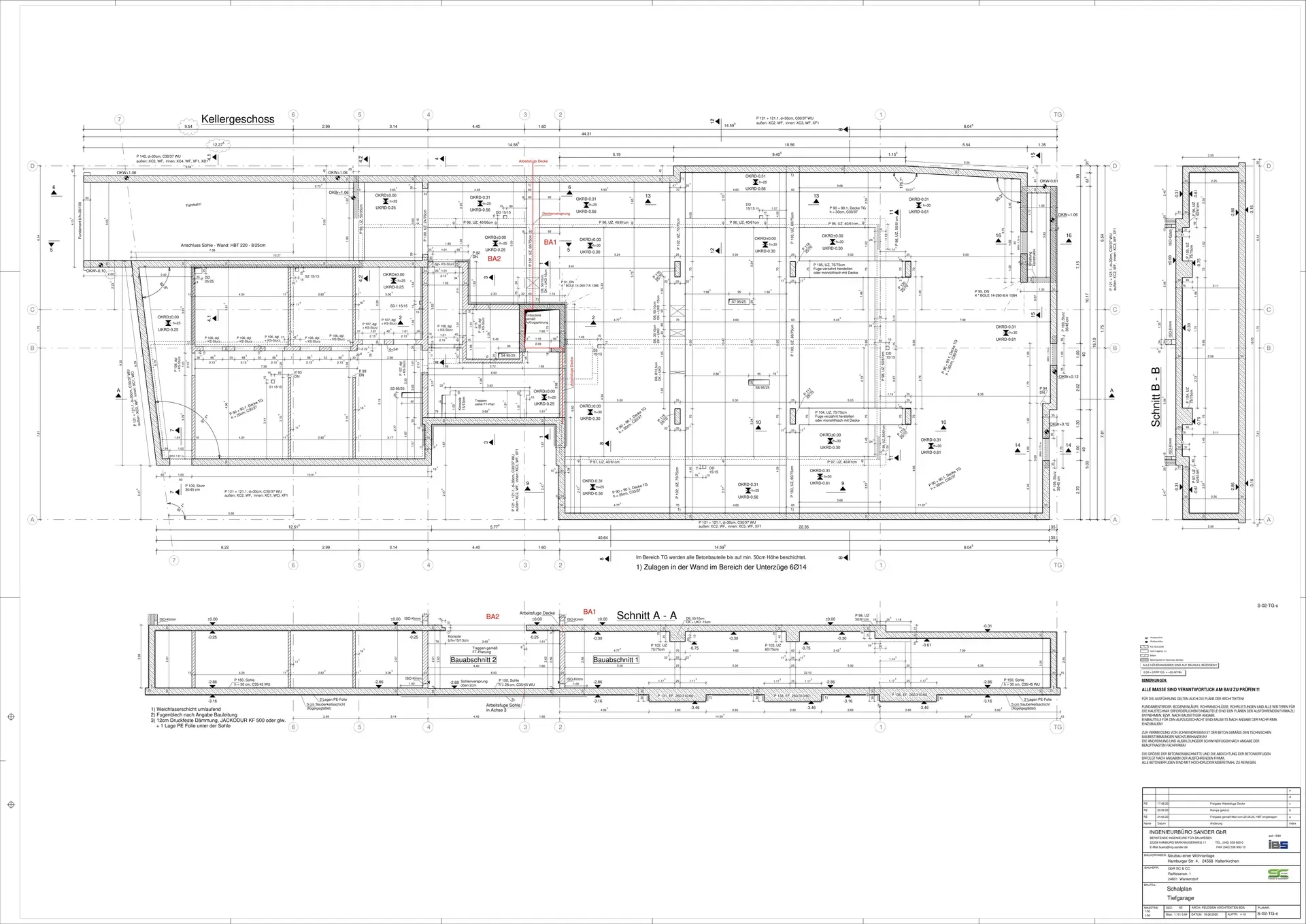
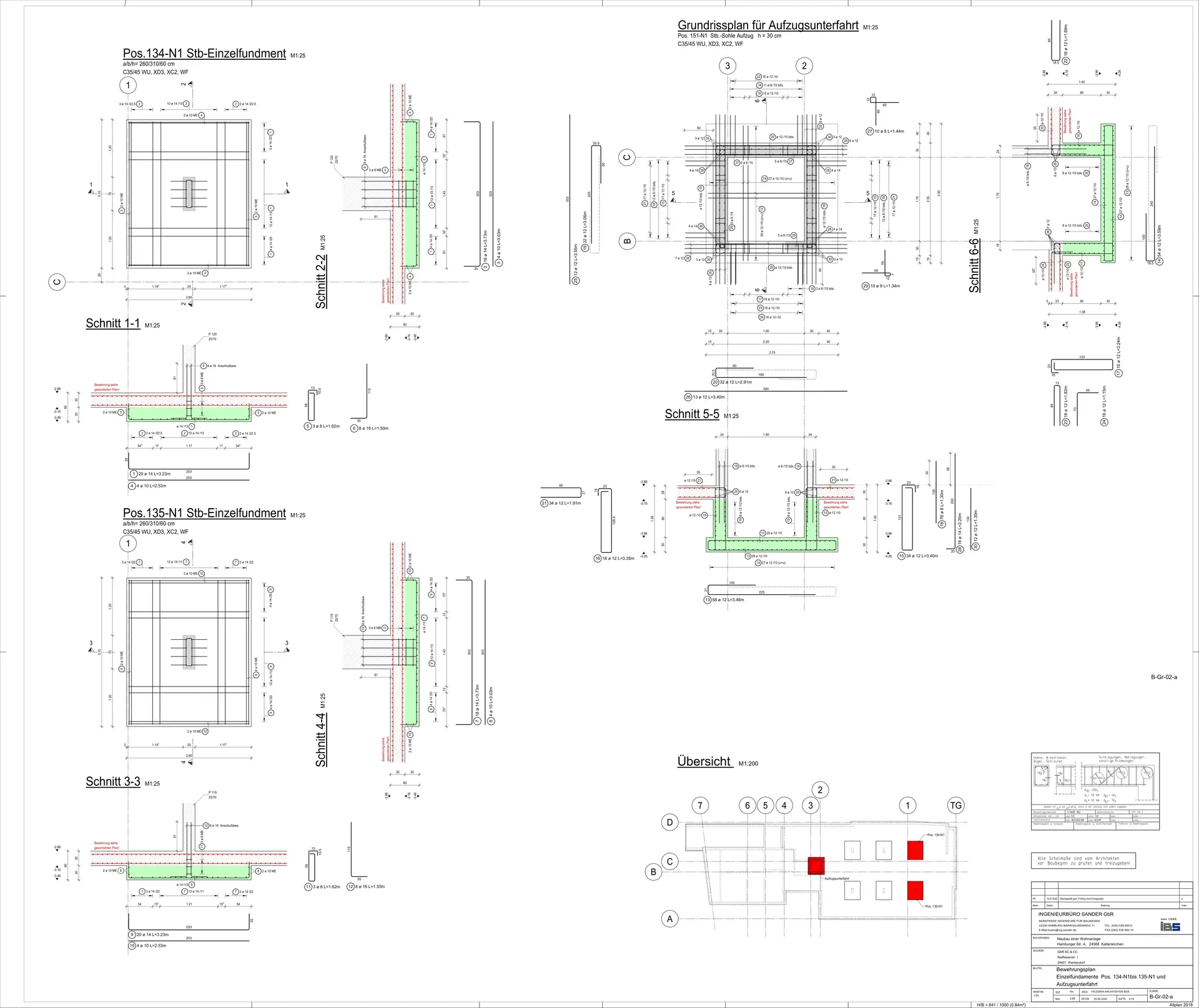
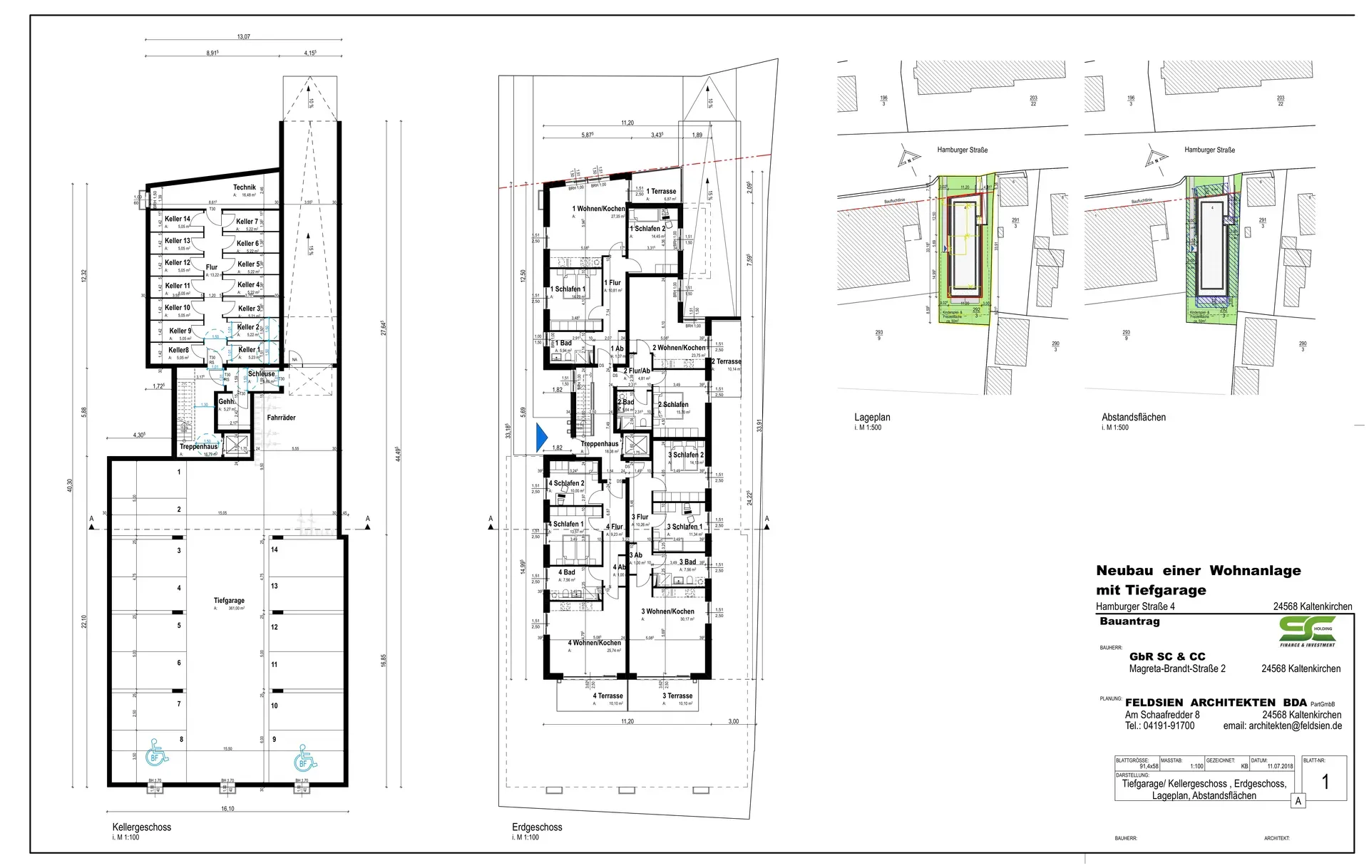
Bauvorhaben:
Neubau einer Wohanlage
mit 14 Wohneinheiten und Tiefgarage
Bauort:
Hamburger Str. 4, Kaltenkirchen
Bauherr:
GbR SC & CC
Architekt:
FELDSIEN ARCHITEKTEN BDA
Baujahr:
2020/21
Unsere Leistungen:
Statische Berechnung, baulicher Brandschutz, Wärmeschutznachweis,
Positions-, Schal- und Bewehrungspläne
Positions-, Schal- und Bewehrungspläne










