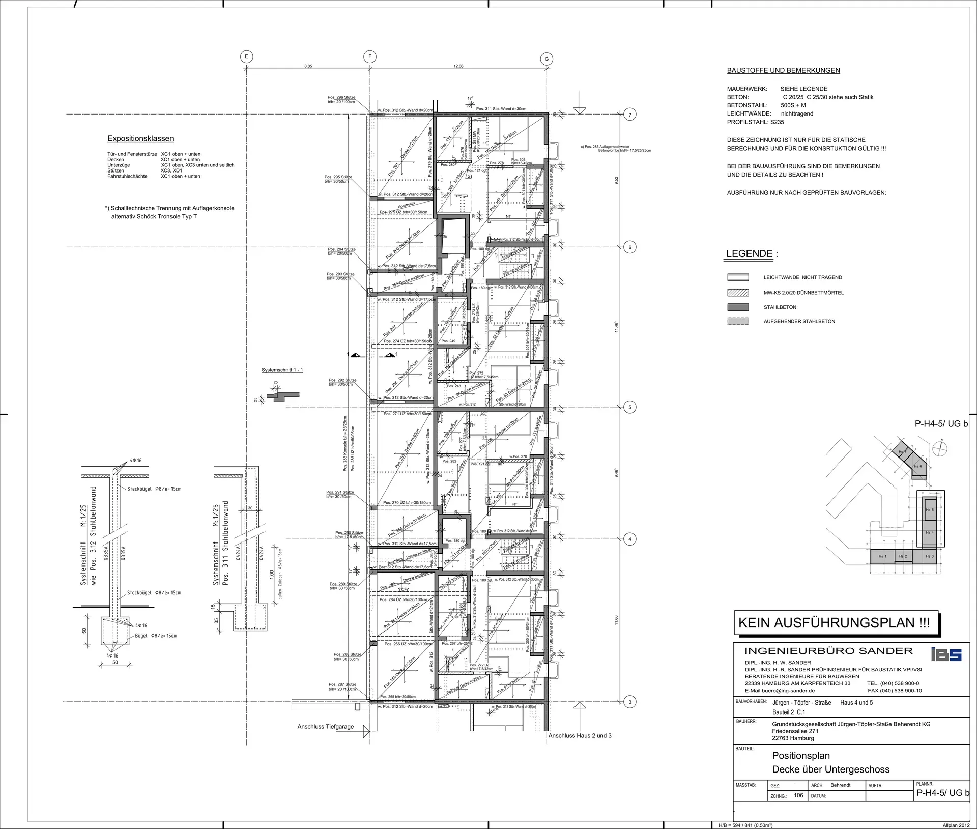
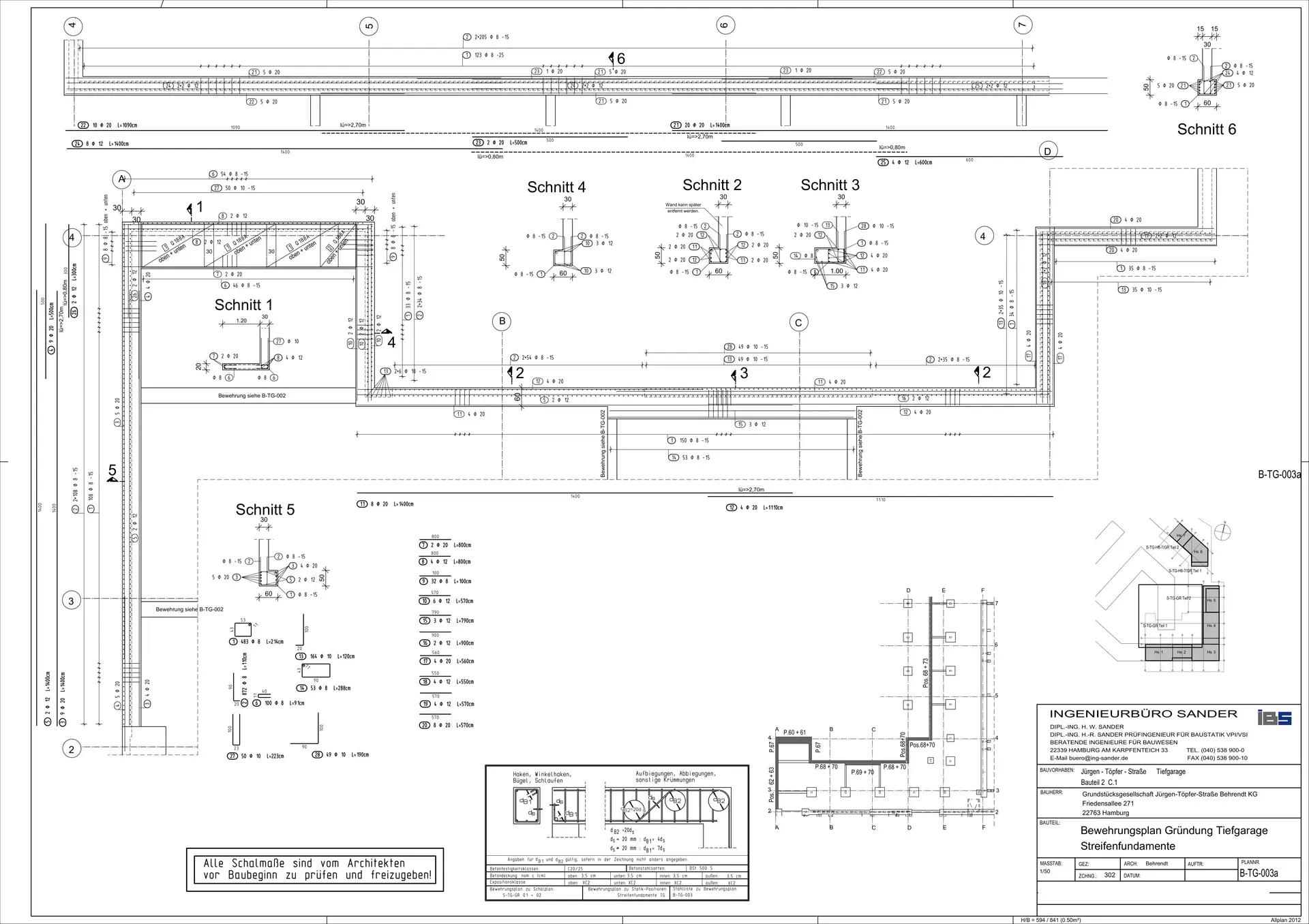
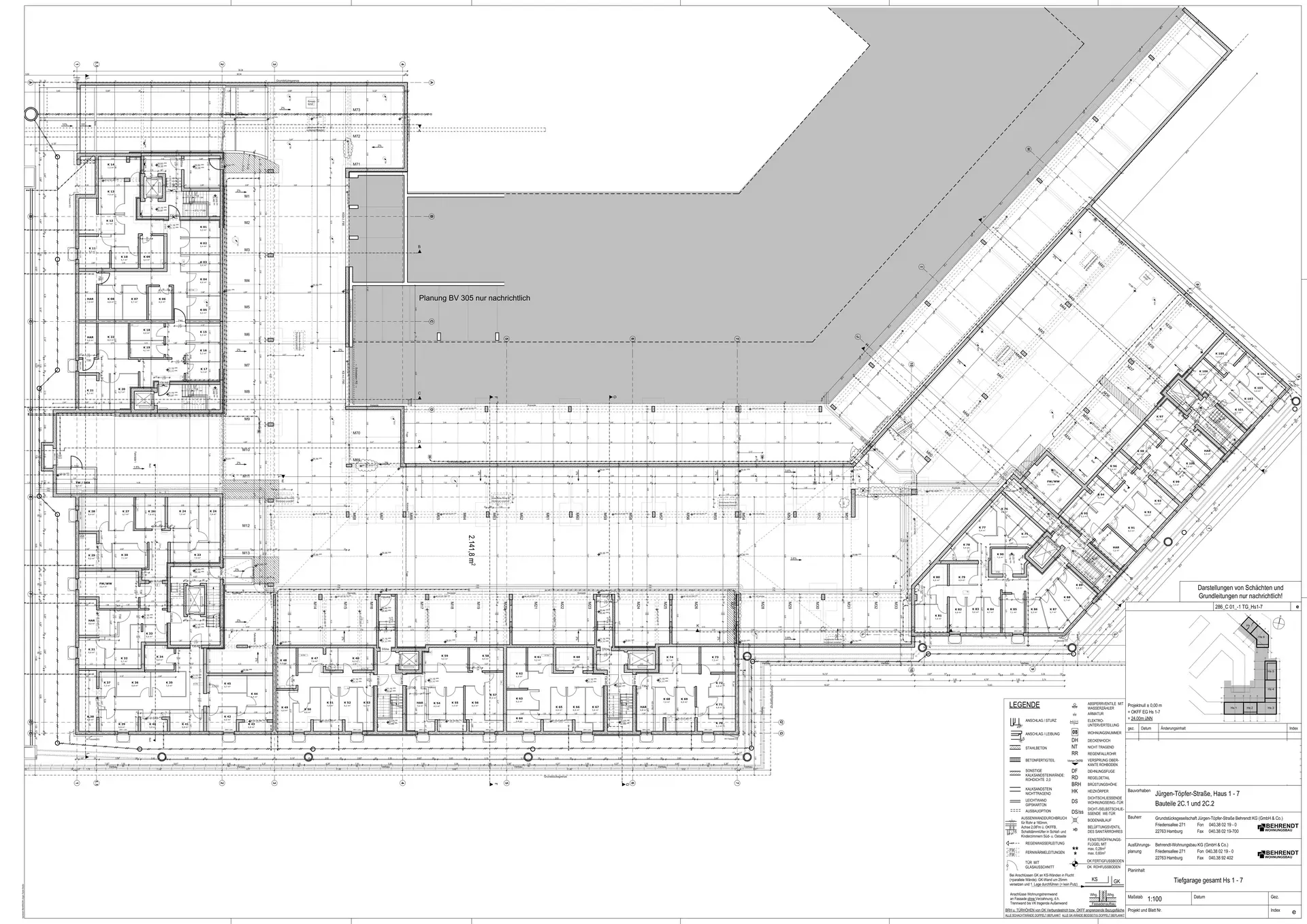
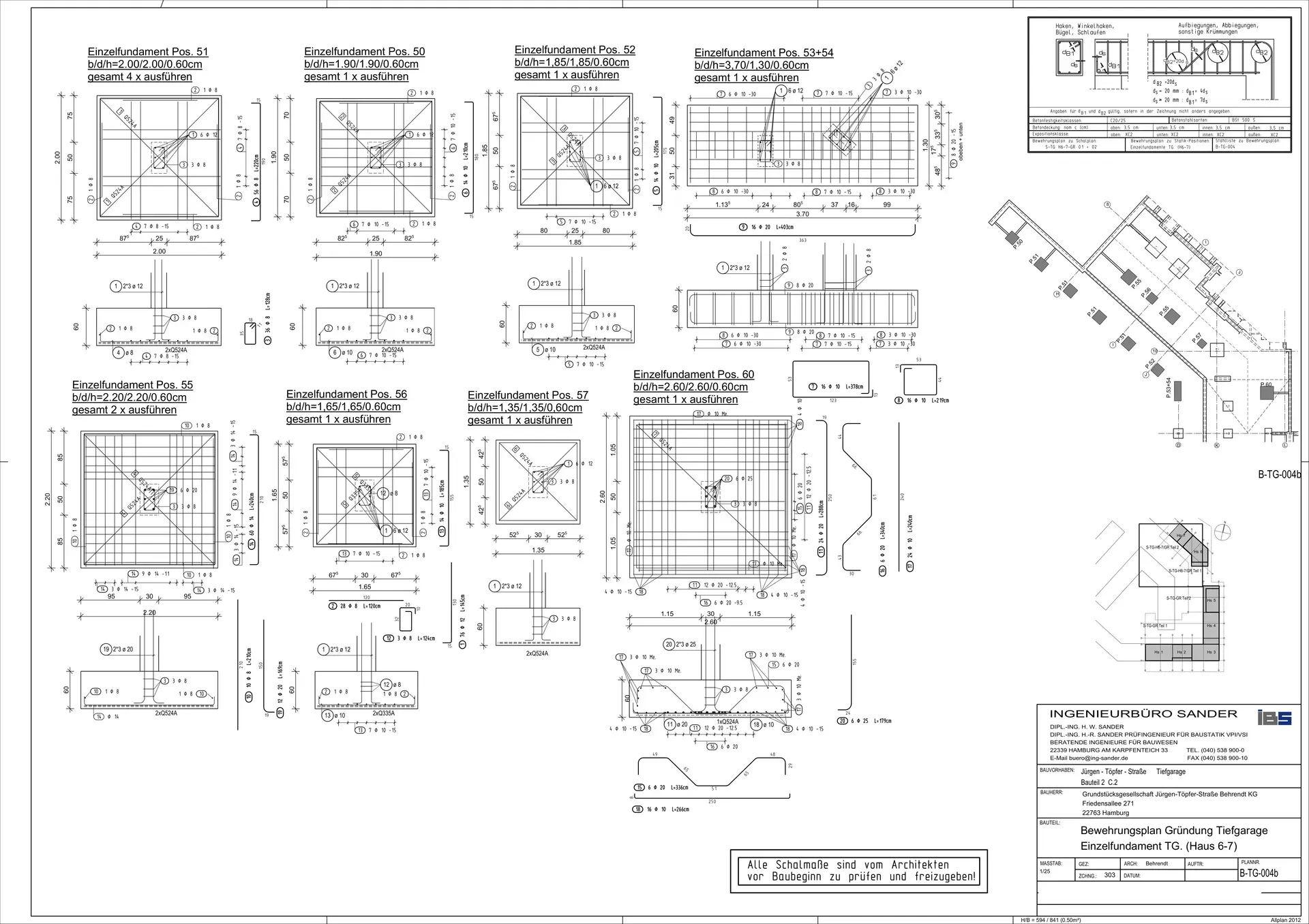
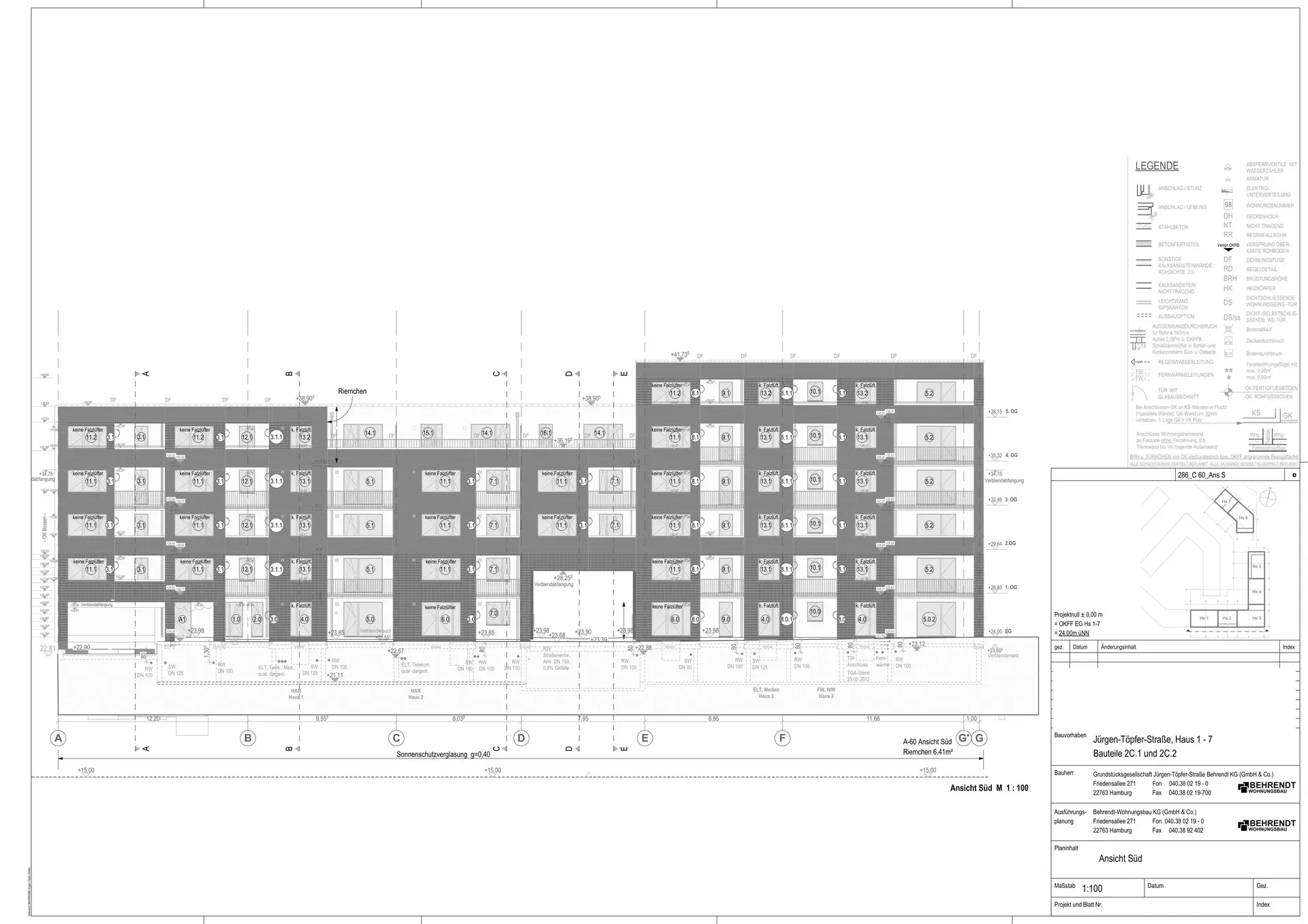
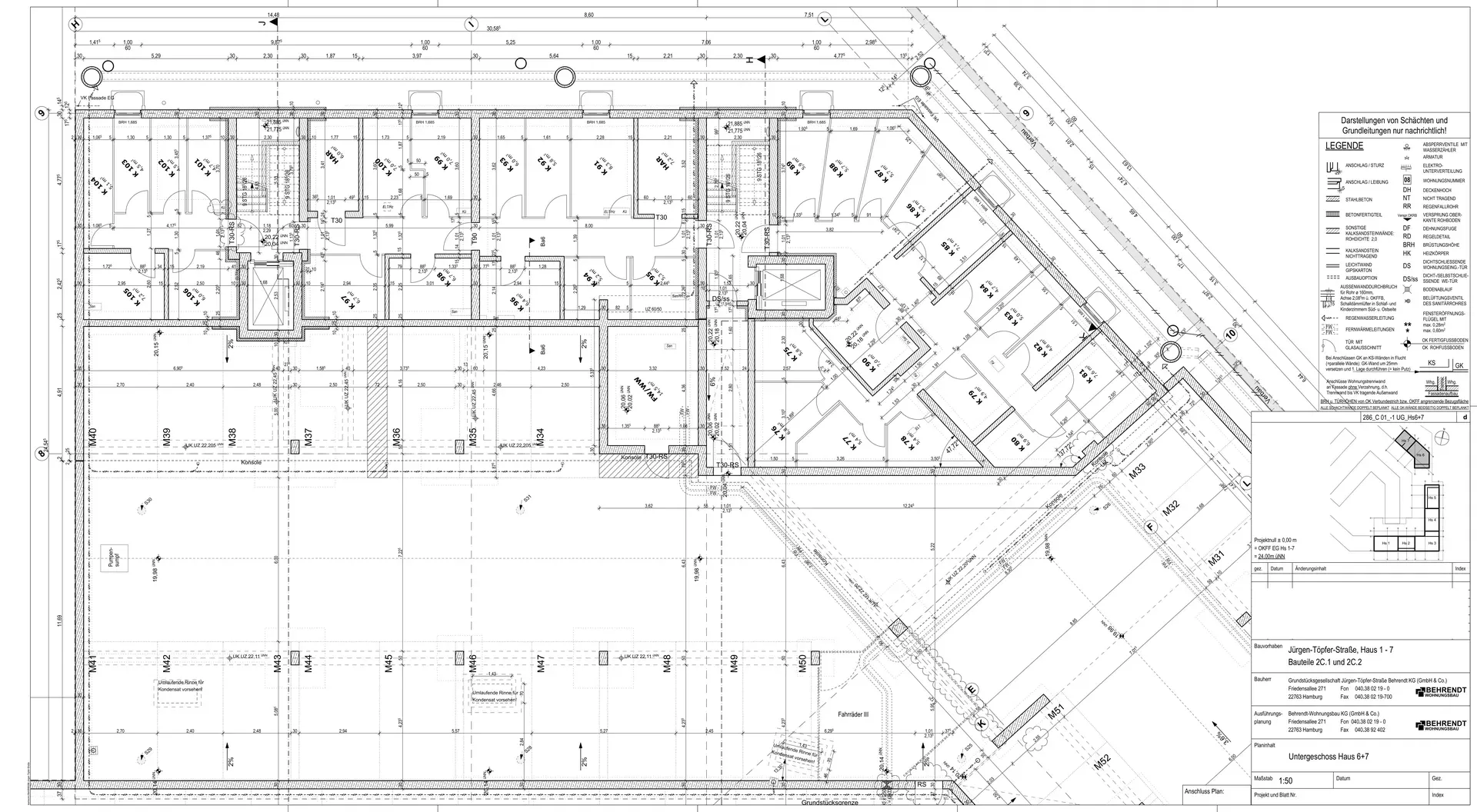
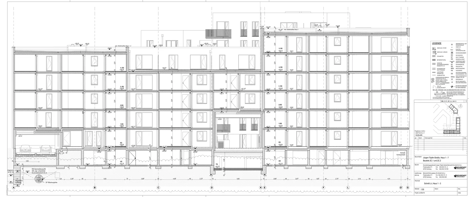
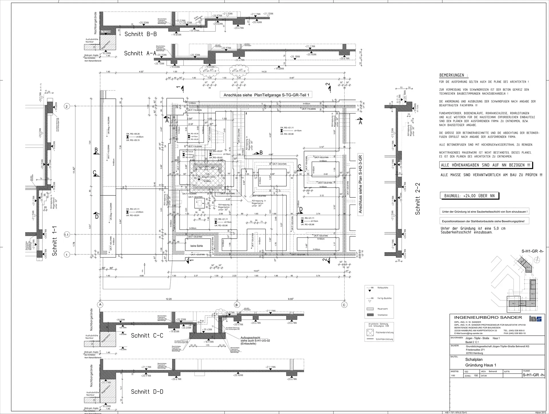
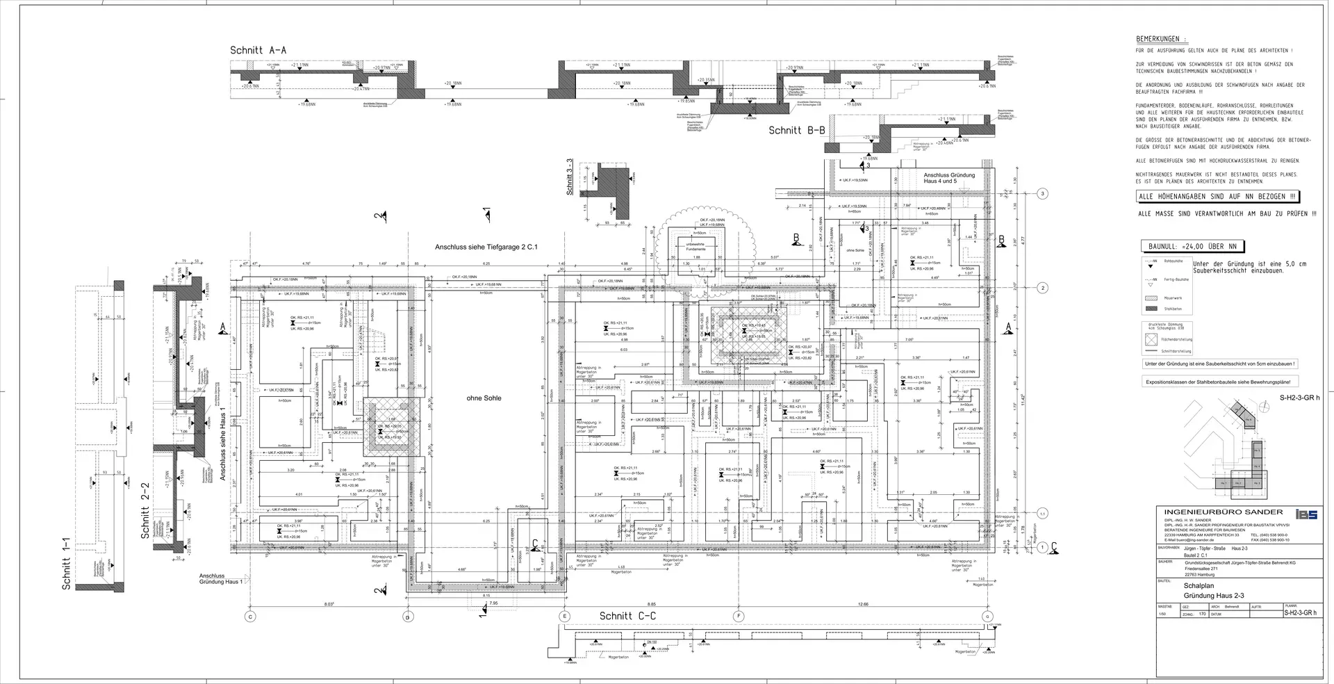
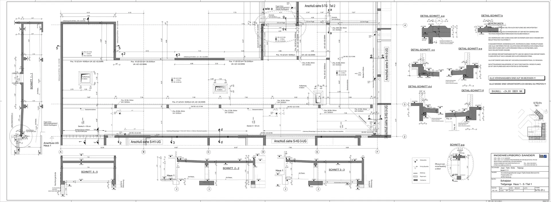
Bauvorhaben:
Mehrfamilienhäuser mit 106 WE und TG
Bauort:
Jürgen-Töpfer-Straße Haus 1 - 7, Hamburg
Bauherr:
Grundstücksgesellschaft Jürgen-Töpfer-Straße Behrendt KG (GmbH & Co.)
Architekt:
Dipl.-Ing. Architekten Henke und Partner
Baujahr:
2014
Unsere Leistungen:
Statische Berechnung, baulicher Brandschutz, Schall- und Wärmeschutznachweis,
Positions-, Schal- und Bewehrungspläne
Positions-, Schal- und Bewehrungspläne


















