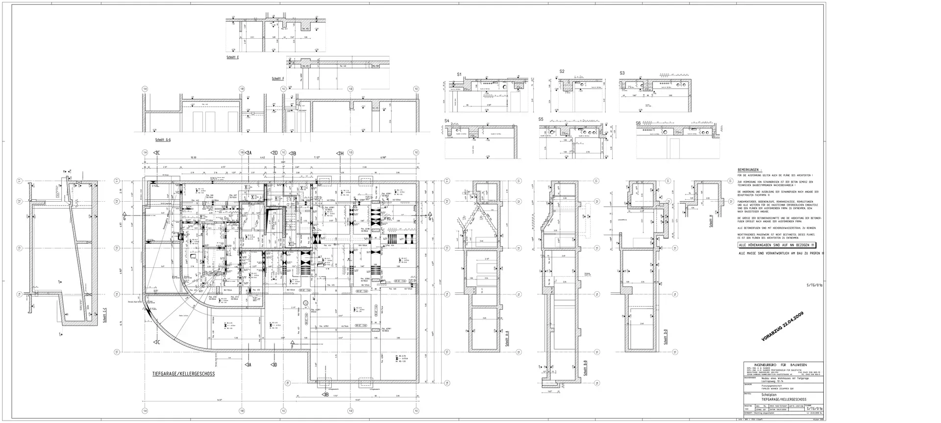
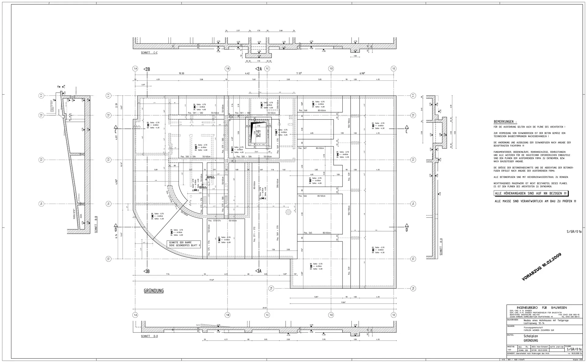
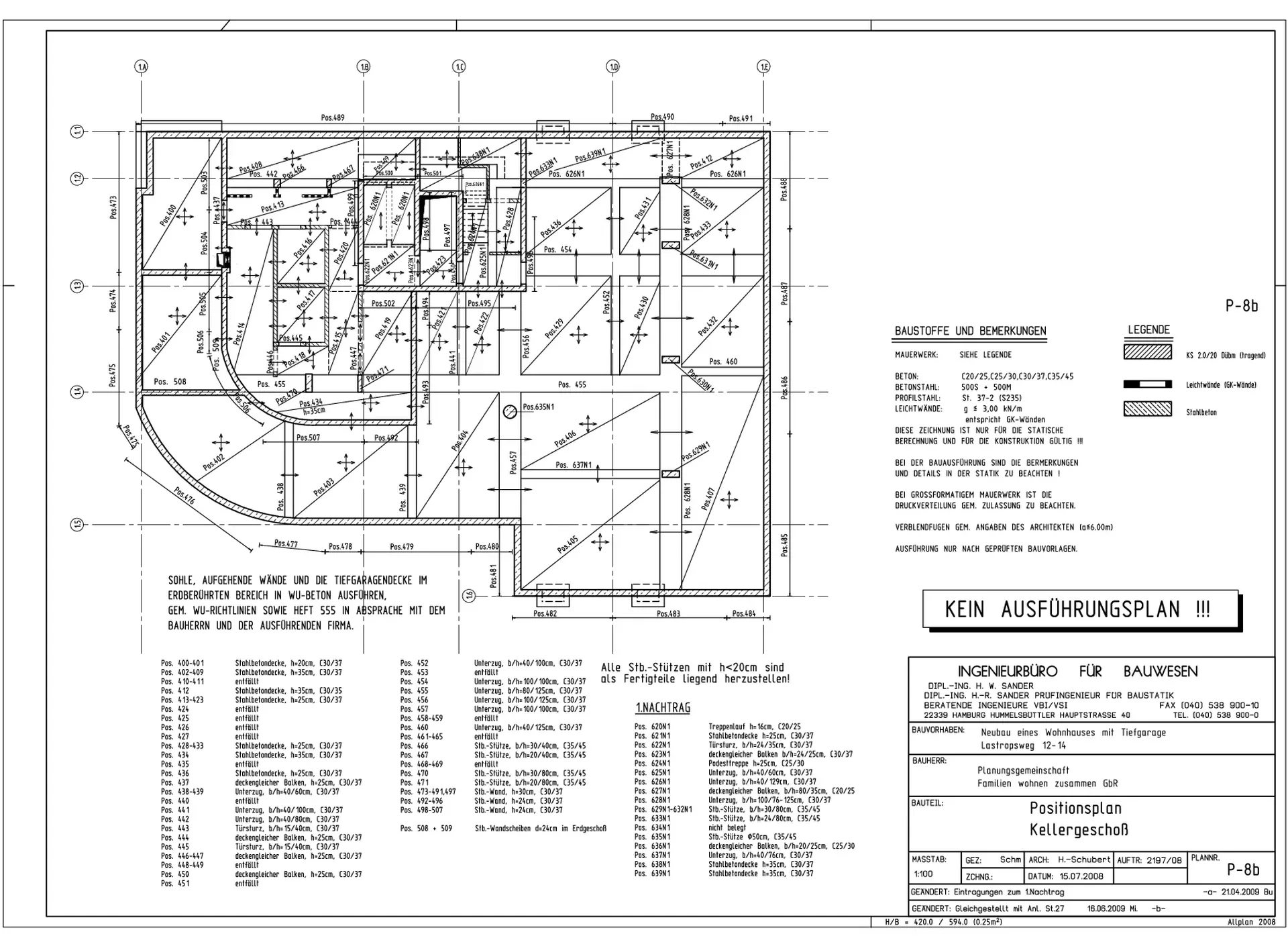
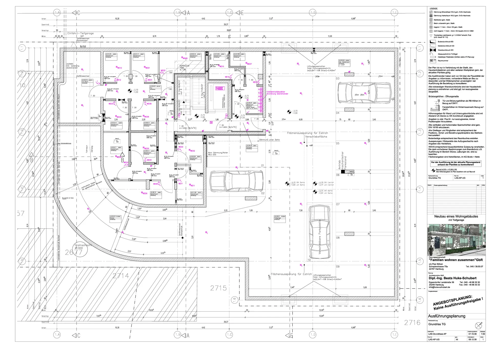
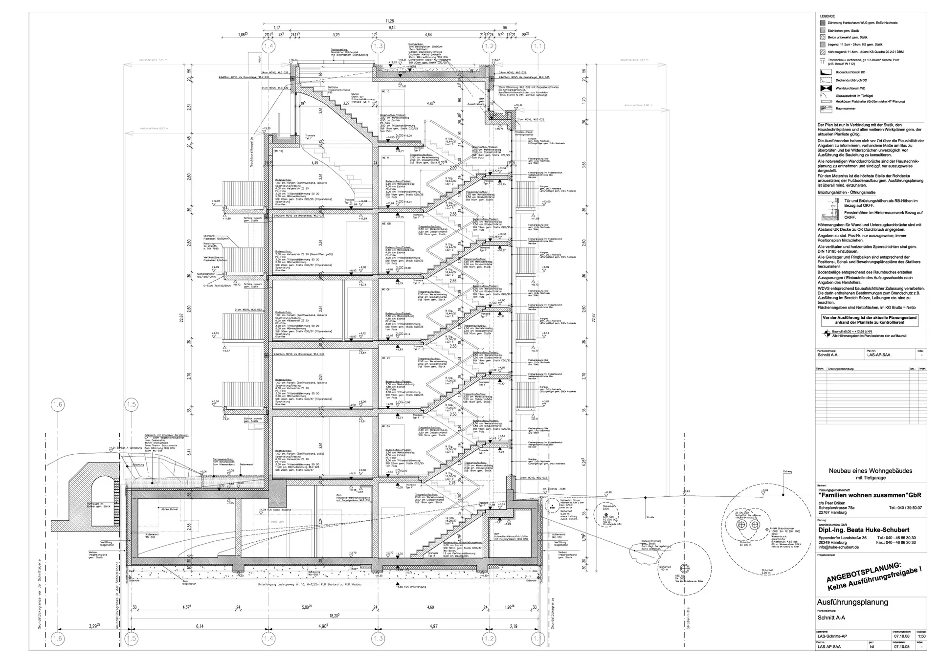
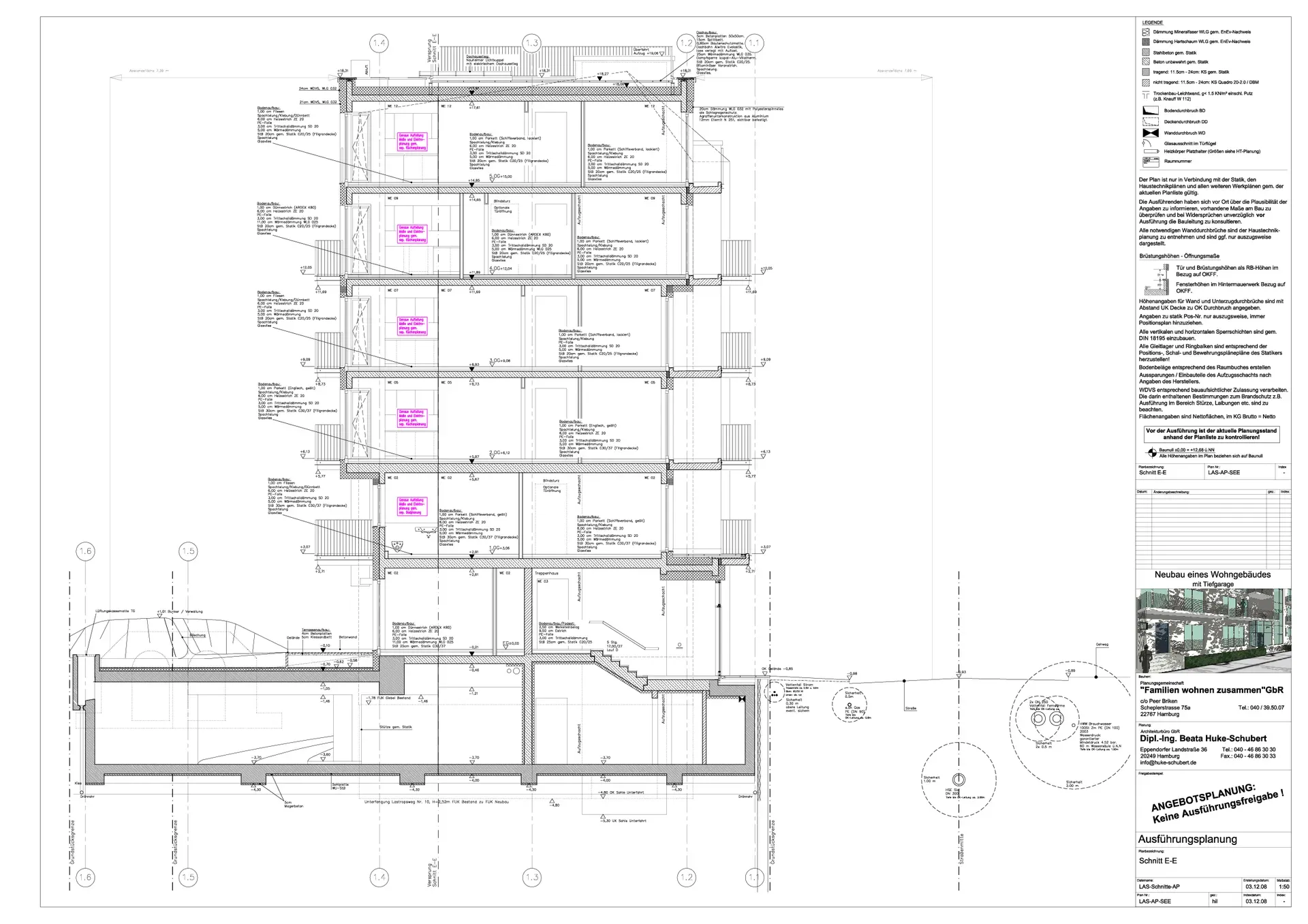
Bauvorhaben:
Neubau eines Wohngebäudes mit TG
Bauort:
Lastropsweg 12-14, Hamburg
Bauherr:
Planungsgemeinschaft "Familien wohnen zusammen" GbR
Architekt:
Architekturbüro GbR Dipl.-Ing. Beata Huke-Schubert
Baujahr:
2012
Unsere Leistungen: Statische Berechnung, baulicher Brandschutz, Schall- und Wärmeschutznachweis,
Positions-, Schal- und Bewehrungspläne
Positions-, Schal- und Bewehrungspläne








