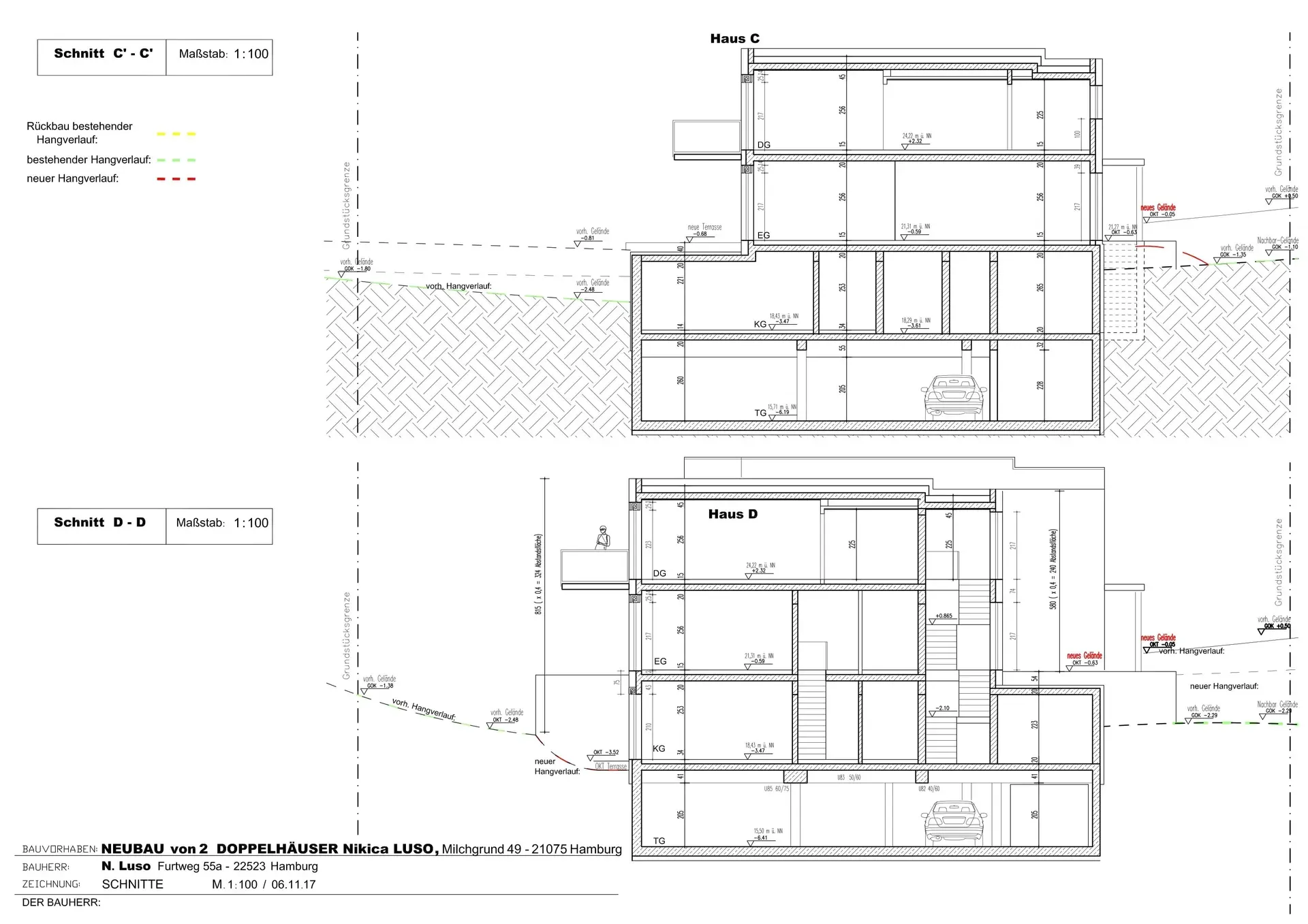
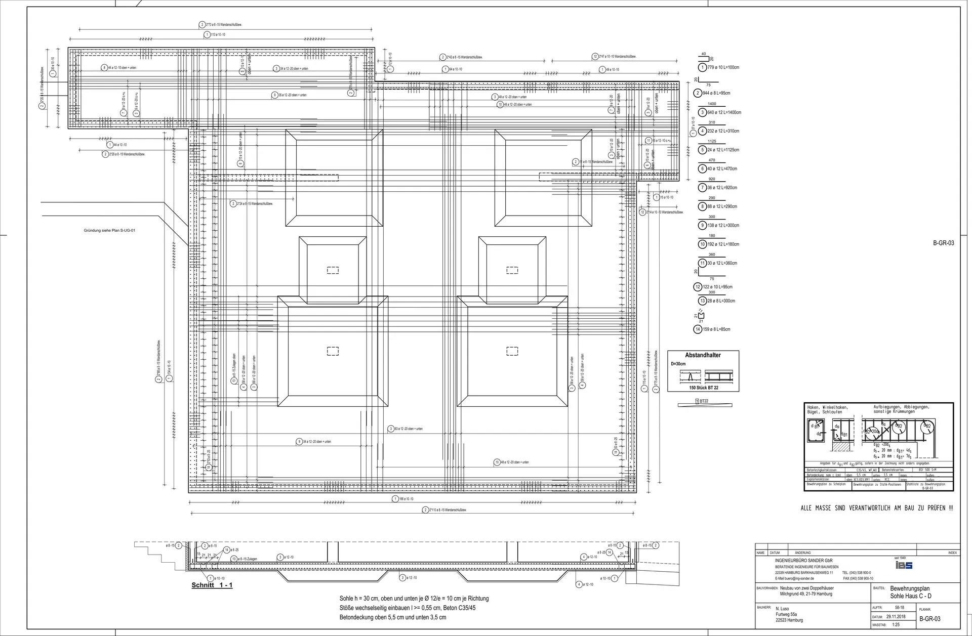
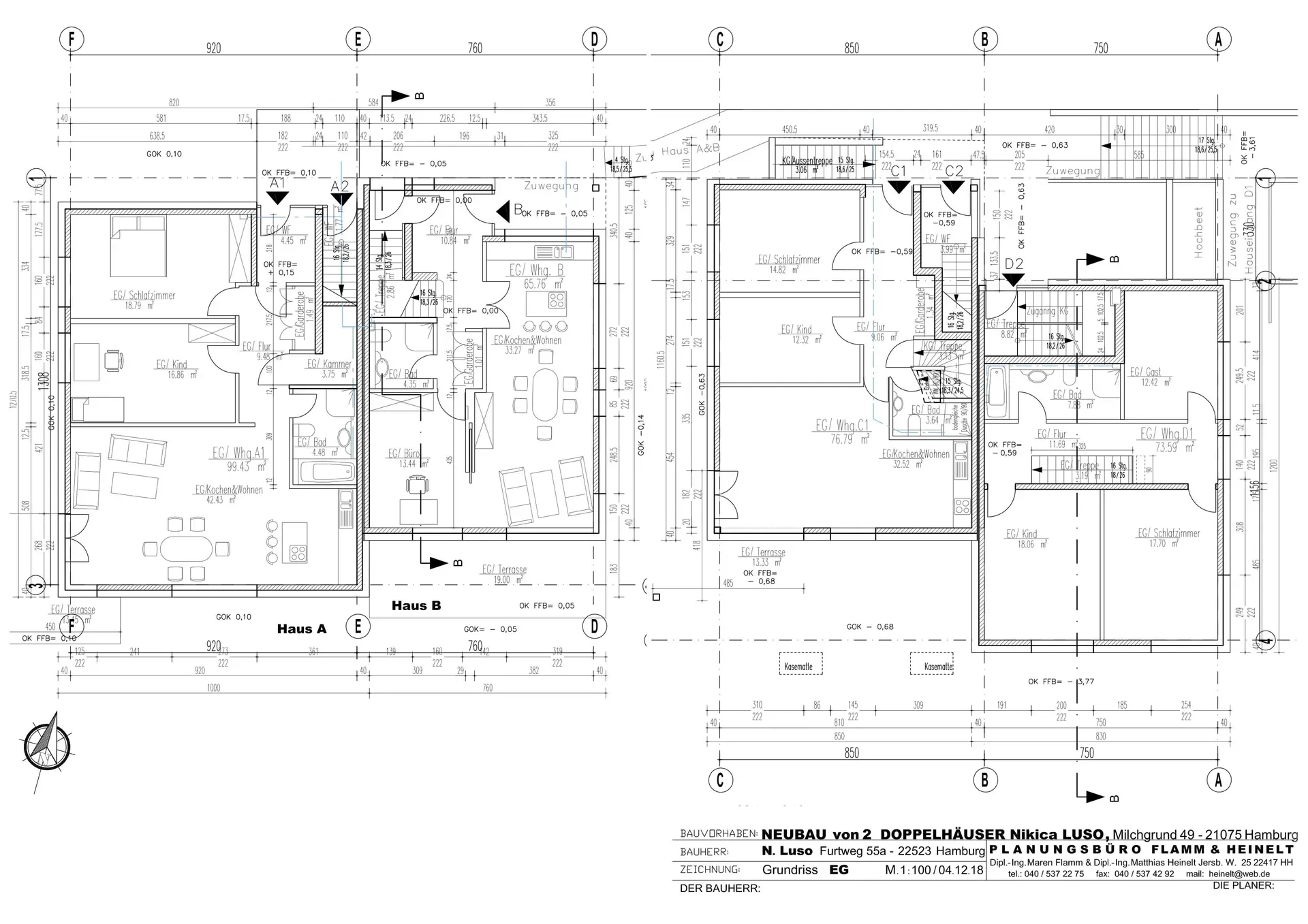
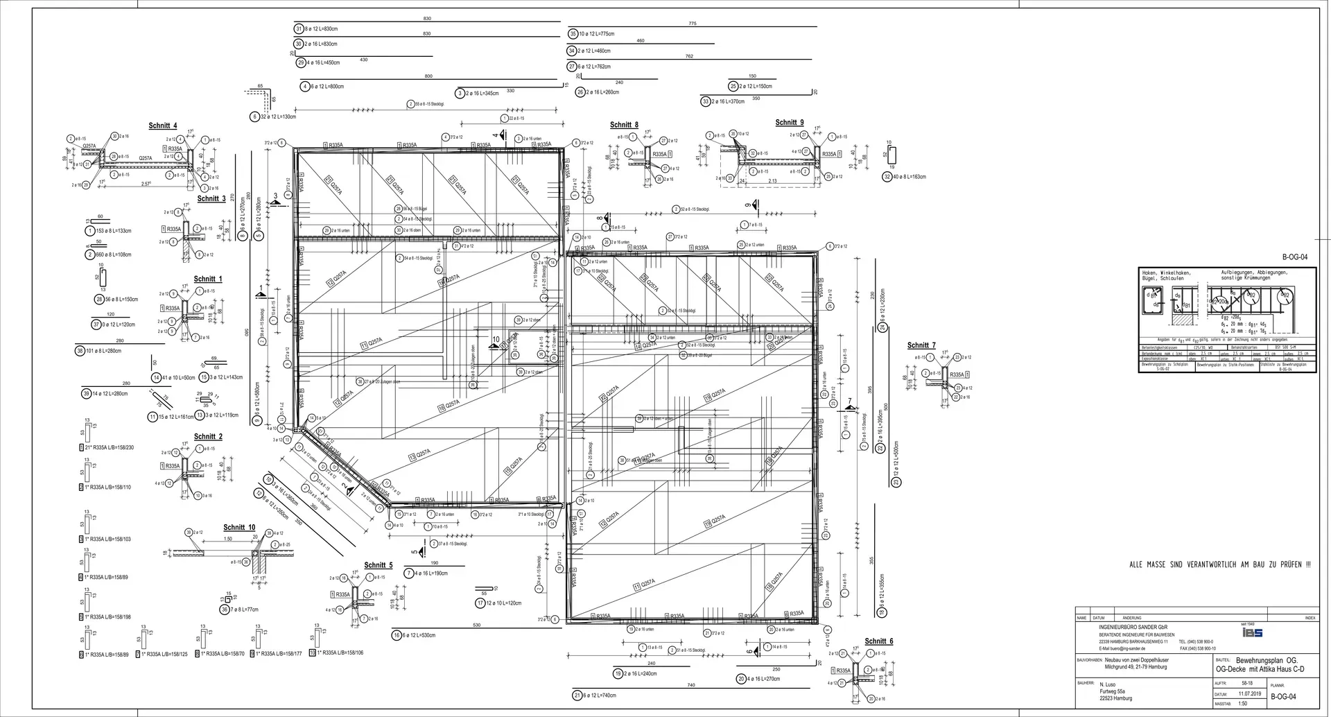
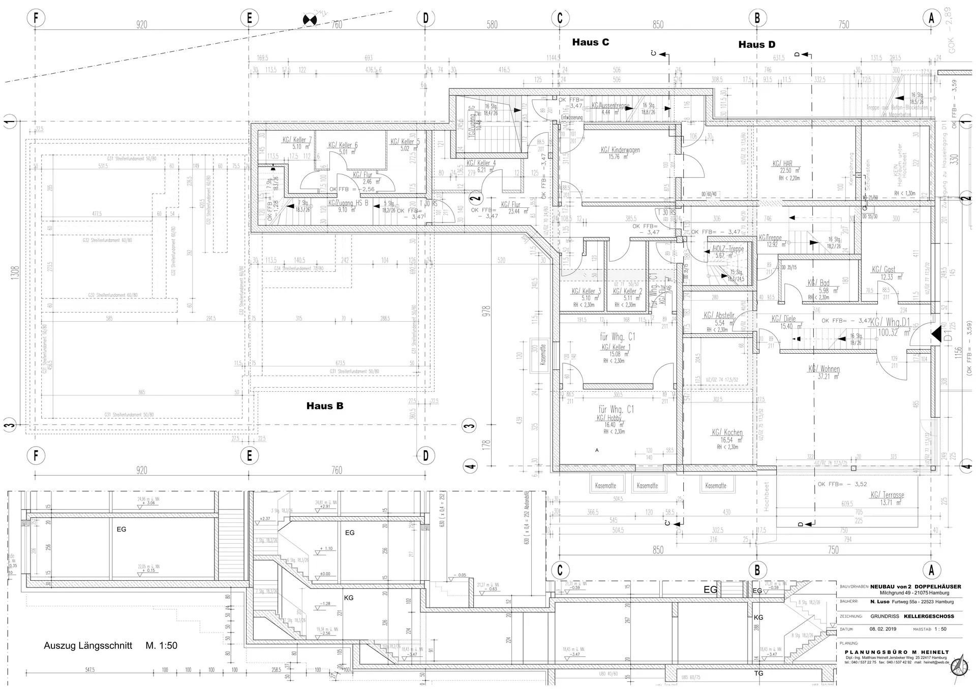
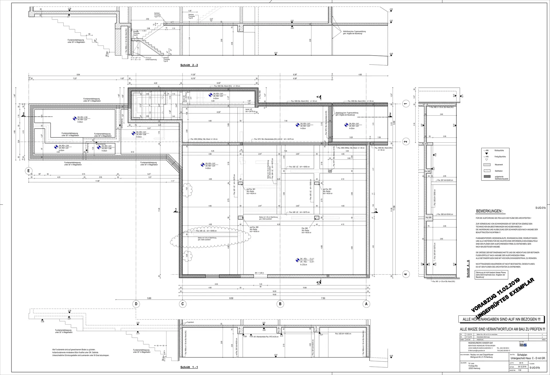
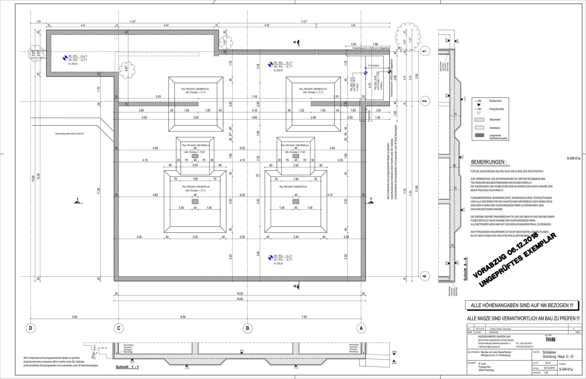
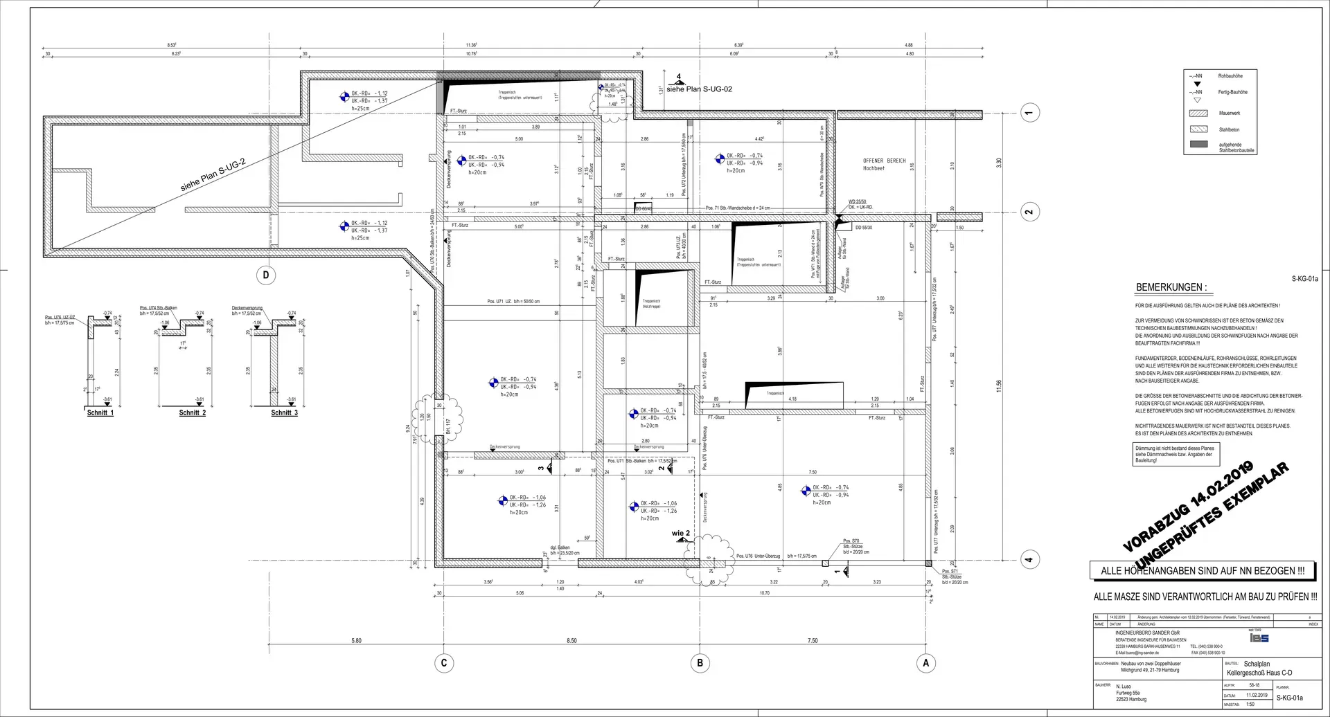
Bauvorhaben: Neubau von 2 Doppelhäusern mit TG
Bauort: Milchgrund49, Hamburg
Bauherr: Nikica Luso
Architekt: Dipl. Ing. Matthias Heinelt
Baujahr: 2018/2020
Unsere Leistungen: Schal- und Bewehrungspläne
Ingenieurbüro Sander - Barkhausenweg 11 - 22339 Hamburg - Tel.: 040/538 9000 - Mail: buero@ing-sander.de