Bauvorhaben: Neubau eines Mehrfamilienhauses mit 11 Wohneinheiten
Bauort :
Palmaille 112-114, Hamburg
Bauherr: Schulenburg Bau Elbvororte GmbH & Co. KG
Architekt:
FELDSIEN ARCHITEKTEN BDA
Baujahr: 2017
Unsere Leistungen: Statische Berechnung, baulicher Brandschutz, Wärmeschutz- & Schallschutznachweis, Positions-, Schal- und Bewehrungspläne
erschütterungstechnische Untersuchung: baudyn GmbH
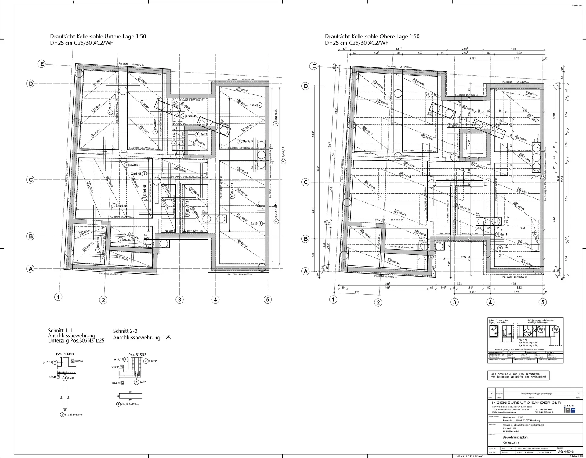
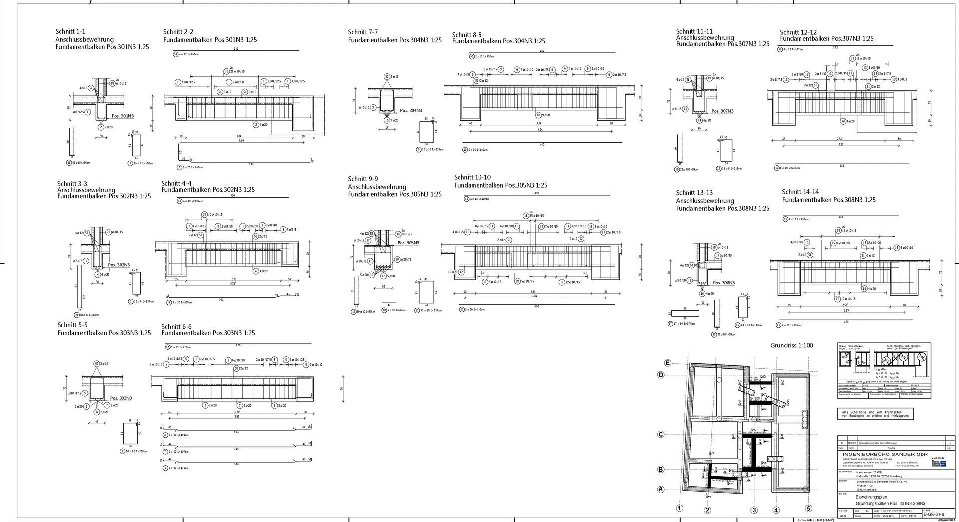
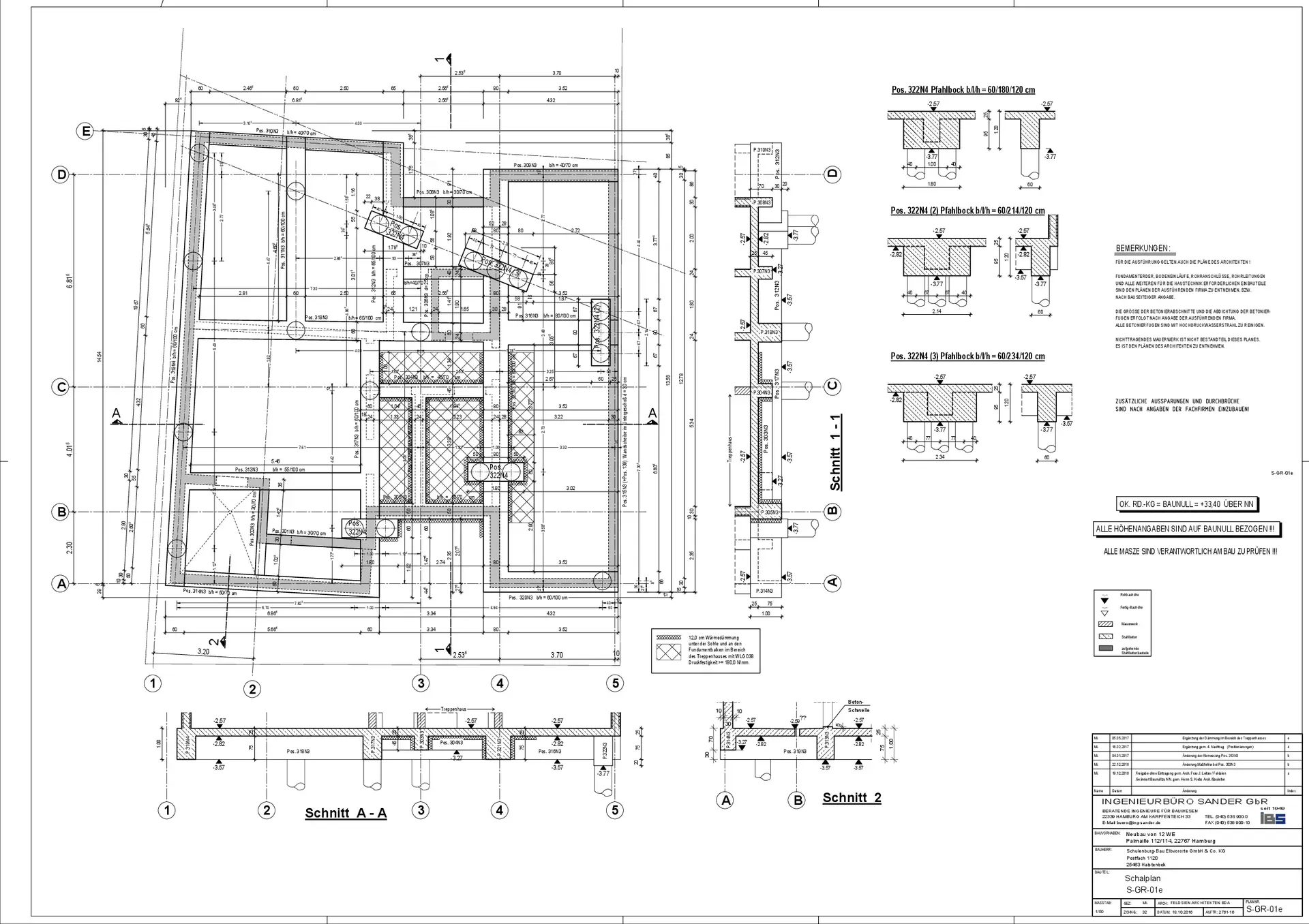
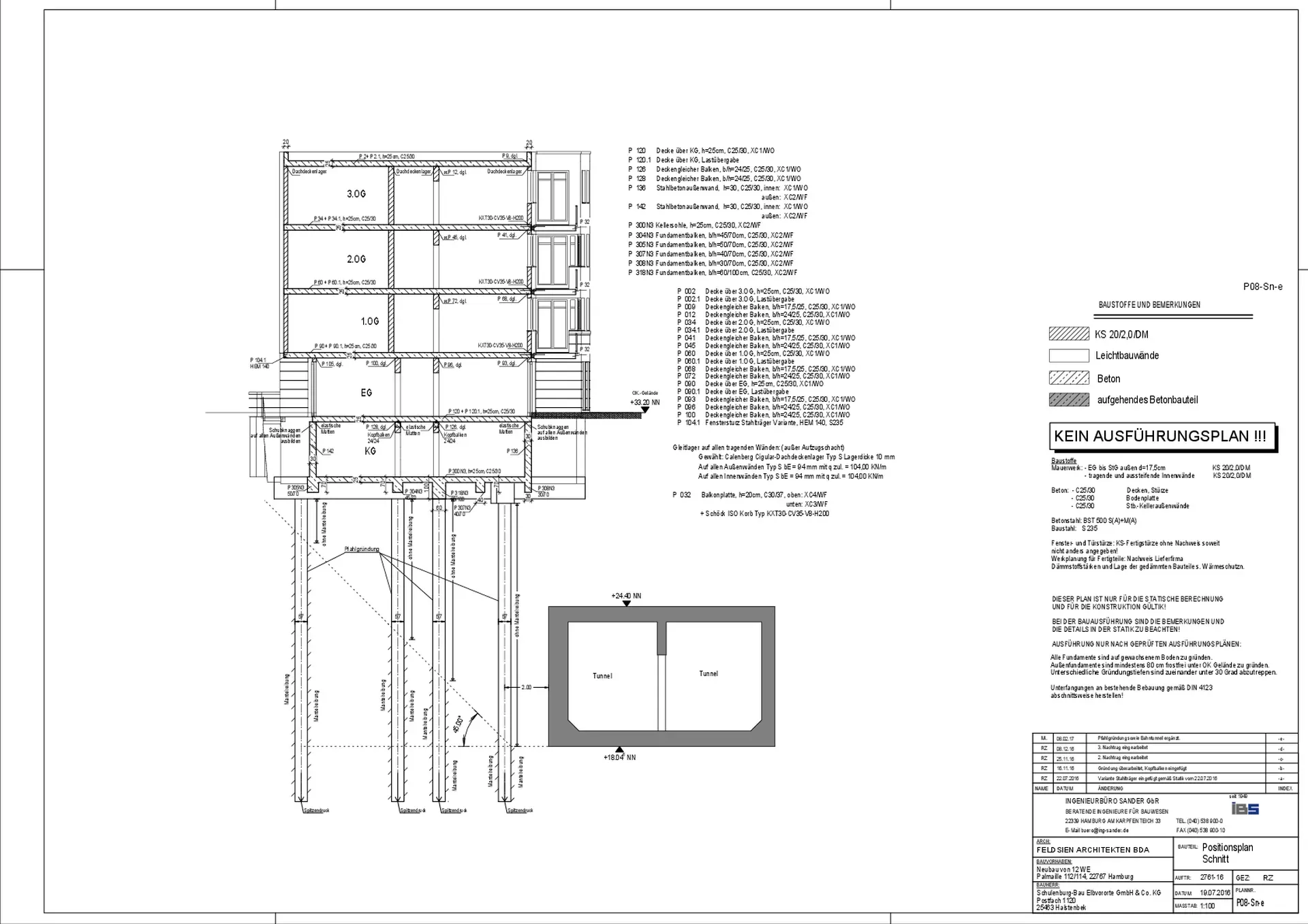
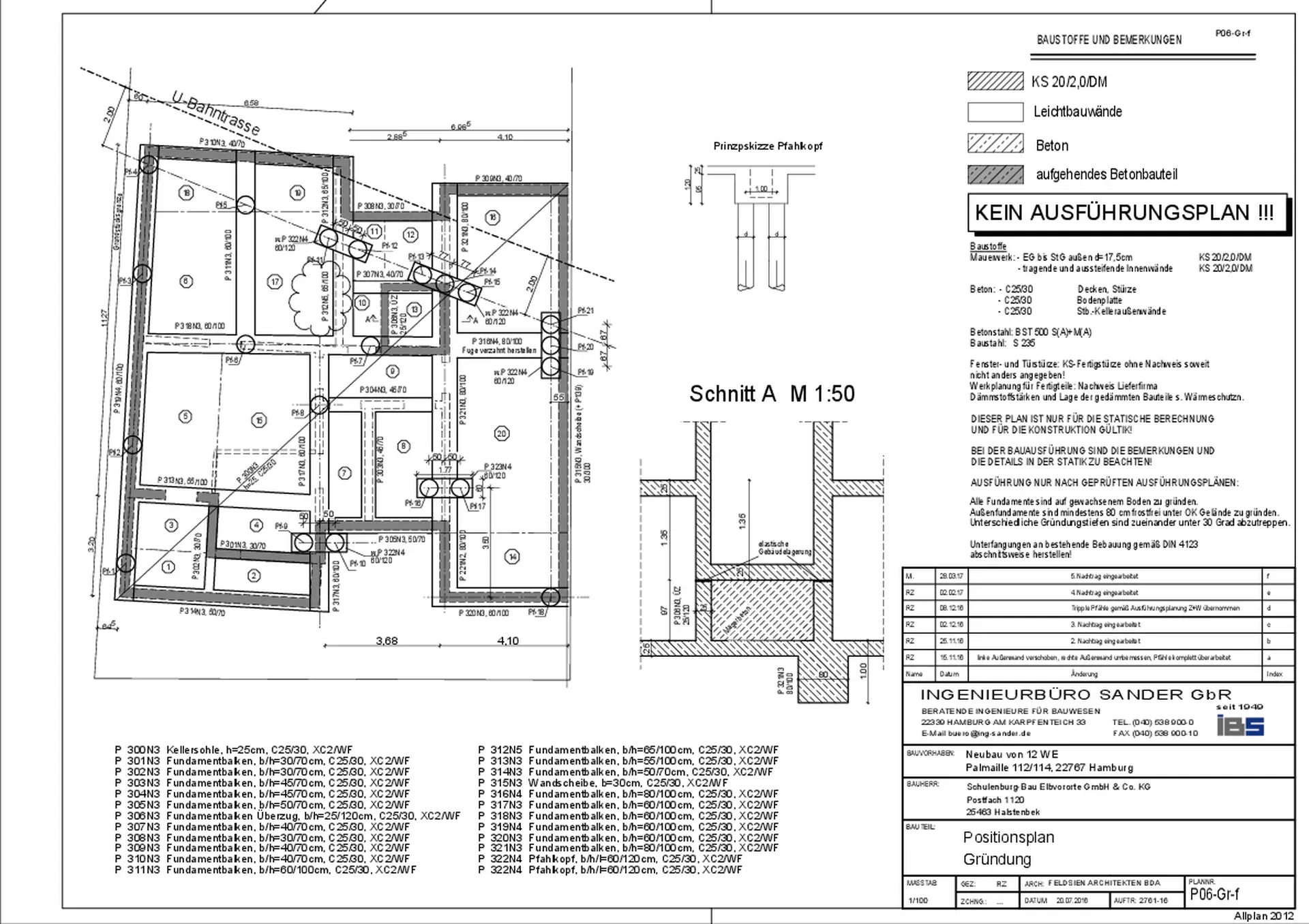
Die besondere Herausforderung war die teilweise Überbauung eines S-Bahn Tunnels.
Um diesen nicht zu belasten erfolgte die Gründung auf Pfählen mit auskragenden Wandscheiben.
Um die Einwirkungen aus Erschütterungen und sekundärem Luftschall zu verhindern bzw. zu minimieren waren weitere konstruktive Maßnahmen notwendig.
Diese wurden mit anderen Fachingenieuren bzw. Fachfirmen erarbeitet.












