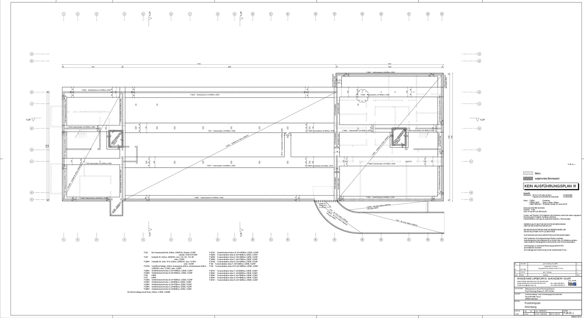
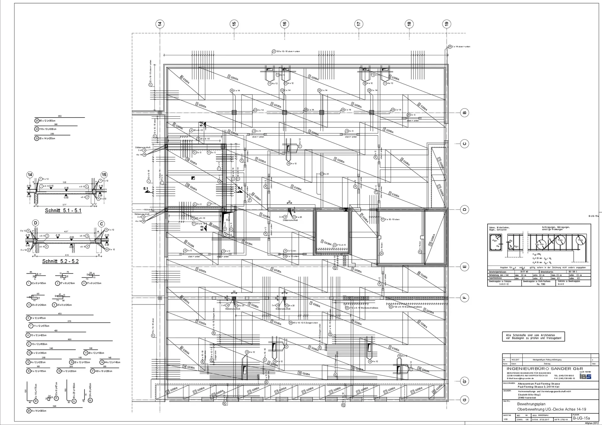
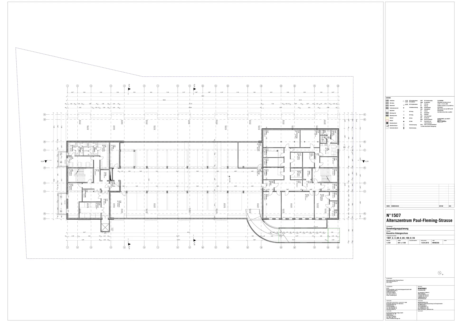
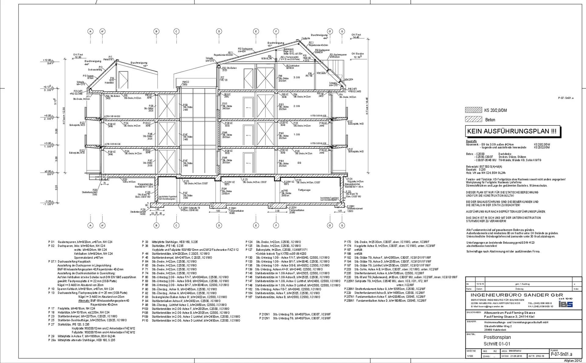
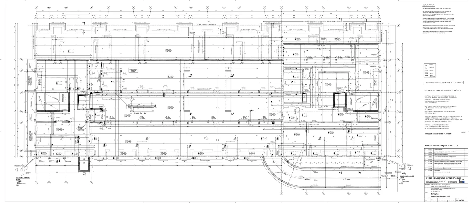
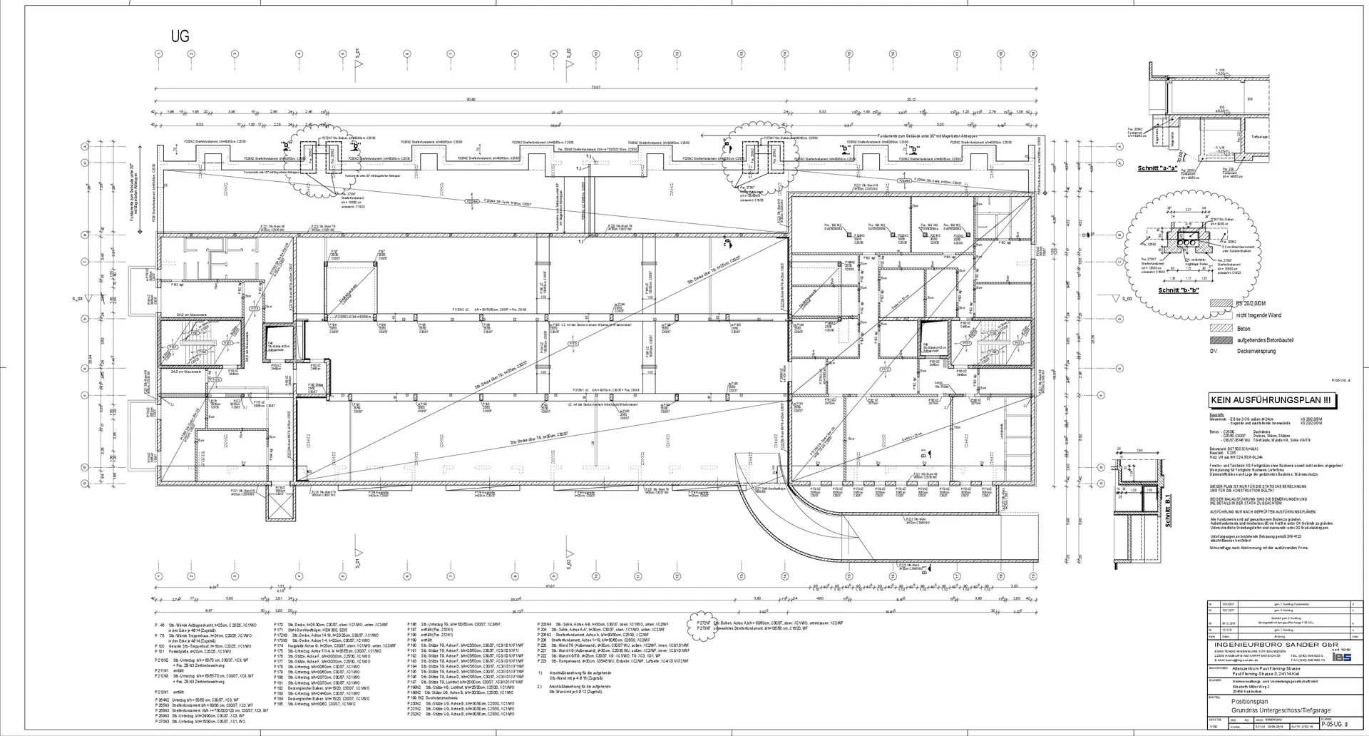
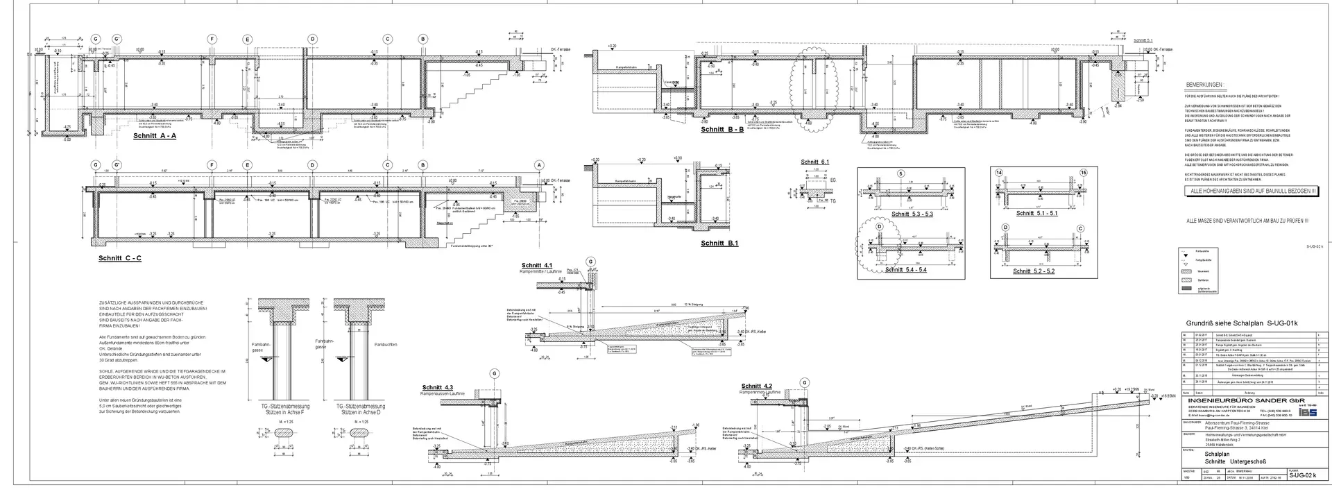
Bauvorhaben: Neubau eines Alterszentrum mit 23 WE und Tiefgarage
Bauort:
Paul-Fleming-Str
, Kiel
Bauherr: HVVG Heimverwaltungs- und Vermietungsgesellschaft mbH
Architekt: BIWERMAU Architekten BDA
Planungsbüro Böbs
Baujahr: 2017
Unsere Leistungen: Statische Berechnung, baulicher Brandschutz, Wärmeschutz- & Schallschutznachweis, Positions-, Schal- und Bewehrungspläne















