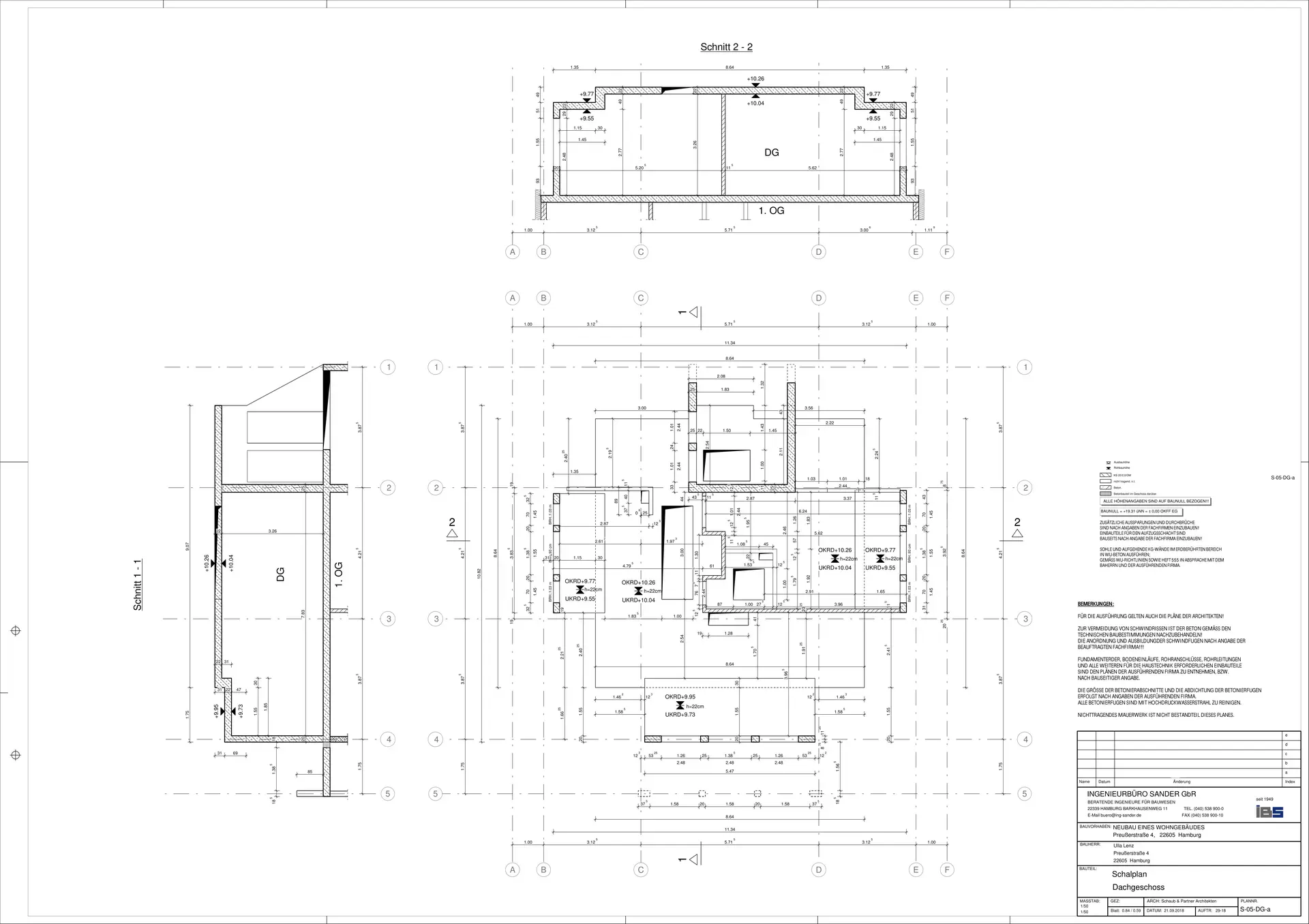
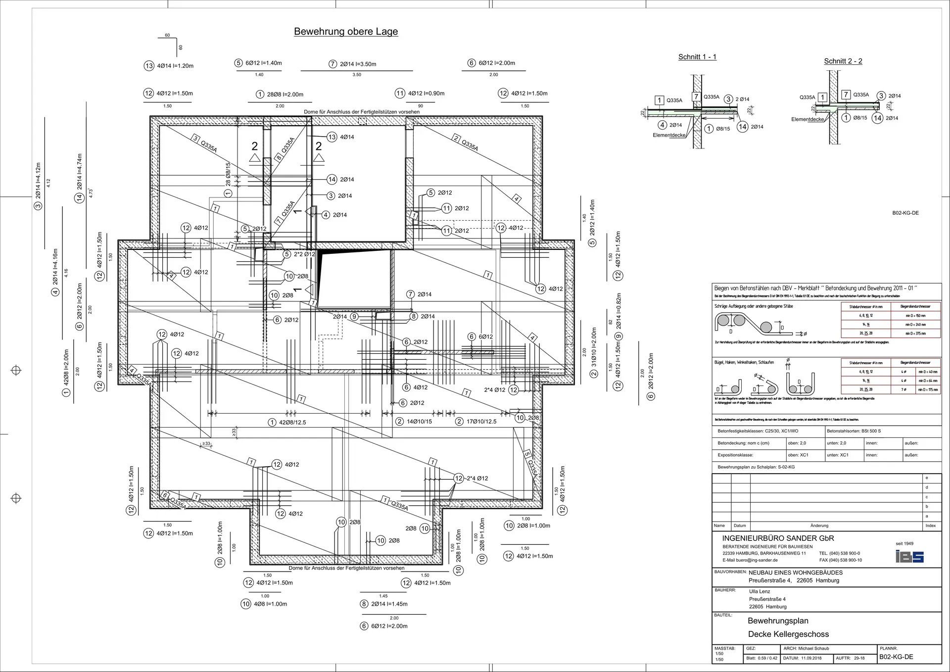
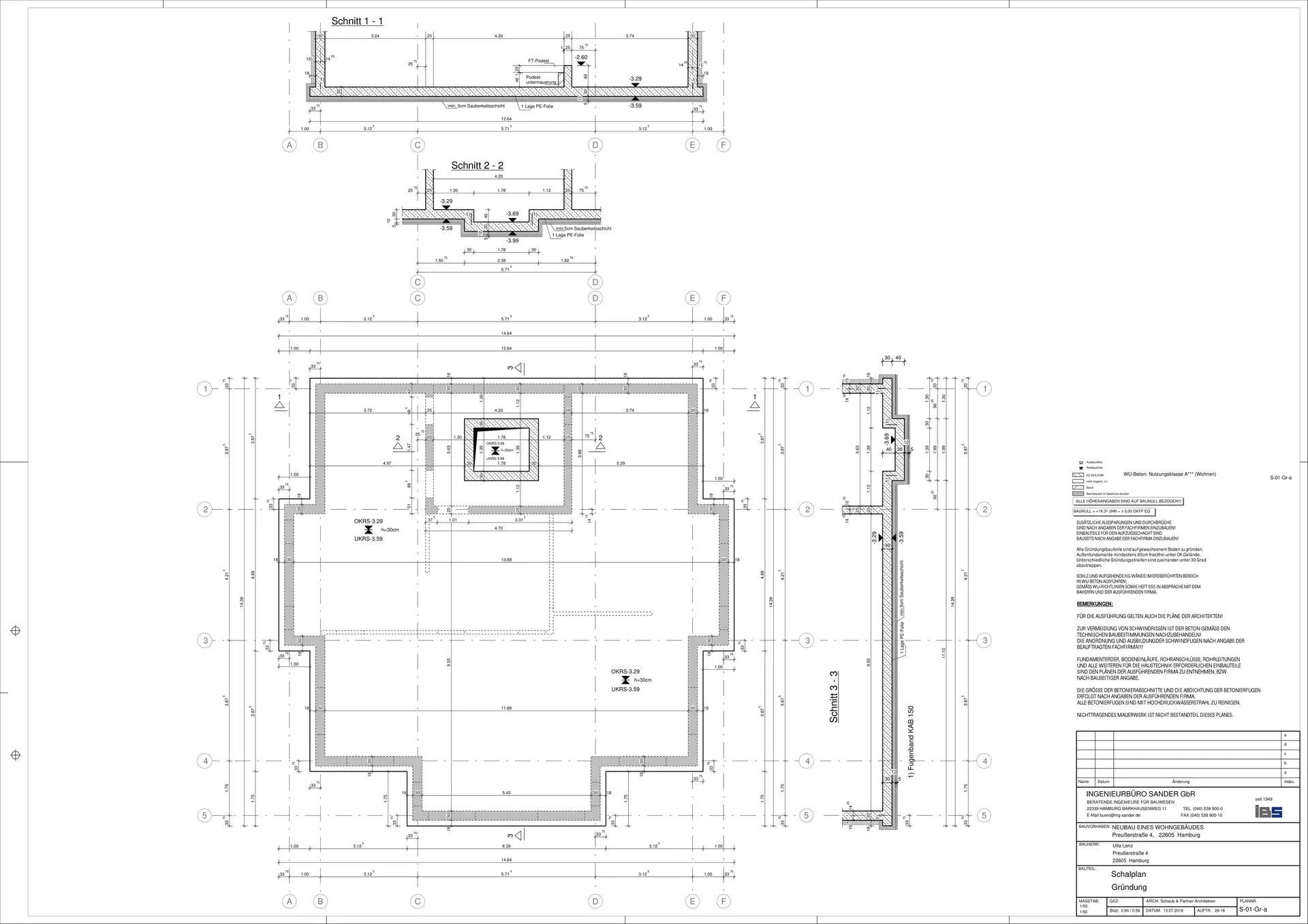
Bauvorhaben: Neubau eines Mehrfamilienhauses
Bauort:
Preußerstraße 4
Bauherr: Ulla Lenz
Architekt:
Schaub & Partner Architekten
Baujahr: 2018
Unsere Leistungen: Statische Berechnung, baulicher Brandschutz, Wärmeschutz- & Schallschutznachweis, Positions-, Schal- und Bewehrungspläne
Ingenieurbüro Sander - Barkhausenweg 11 - 22339 Hamburg - Tel.:
040/538 9000 - Mail:
buero@ing-sander.de