Bauvorhaben:
Neubau eines Wohngebäudes mit 14 WE und vorgelagerter Parkpalette
Bauort:
Rahlstedter Str. 53a, Hamburg
Bauherr:
Projektgesellschaft MFH6 GmbH & Co. KG
Architekt:
Dere Fehmi
Ausführungsplanung: BUH Nord GmbH
Baujahr:
2019/2020
Unsere Leistungen:
Statische Berechnung, Schallschutznachweis,
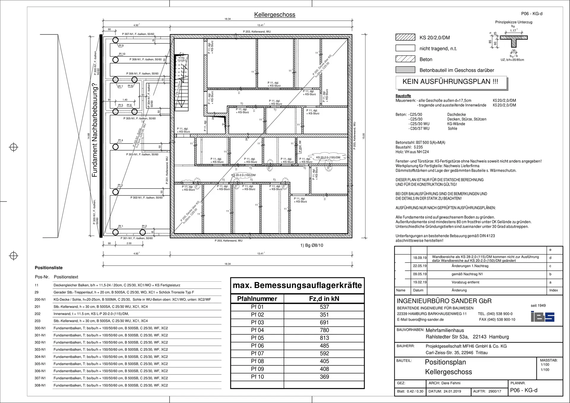
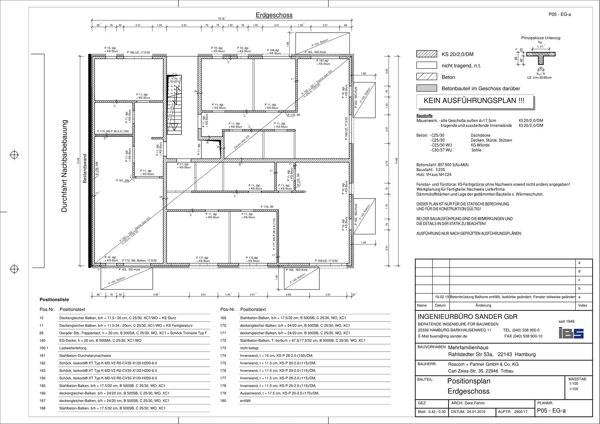
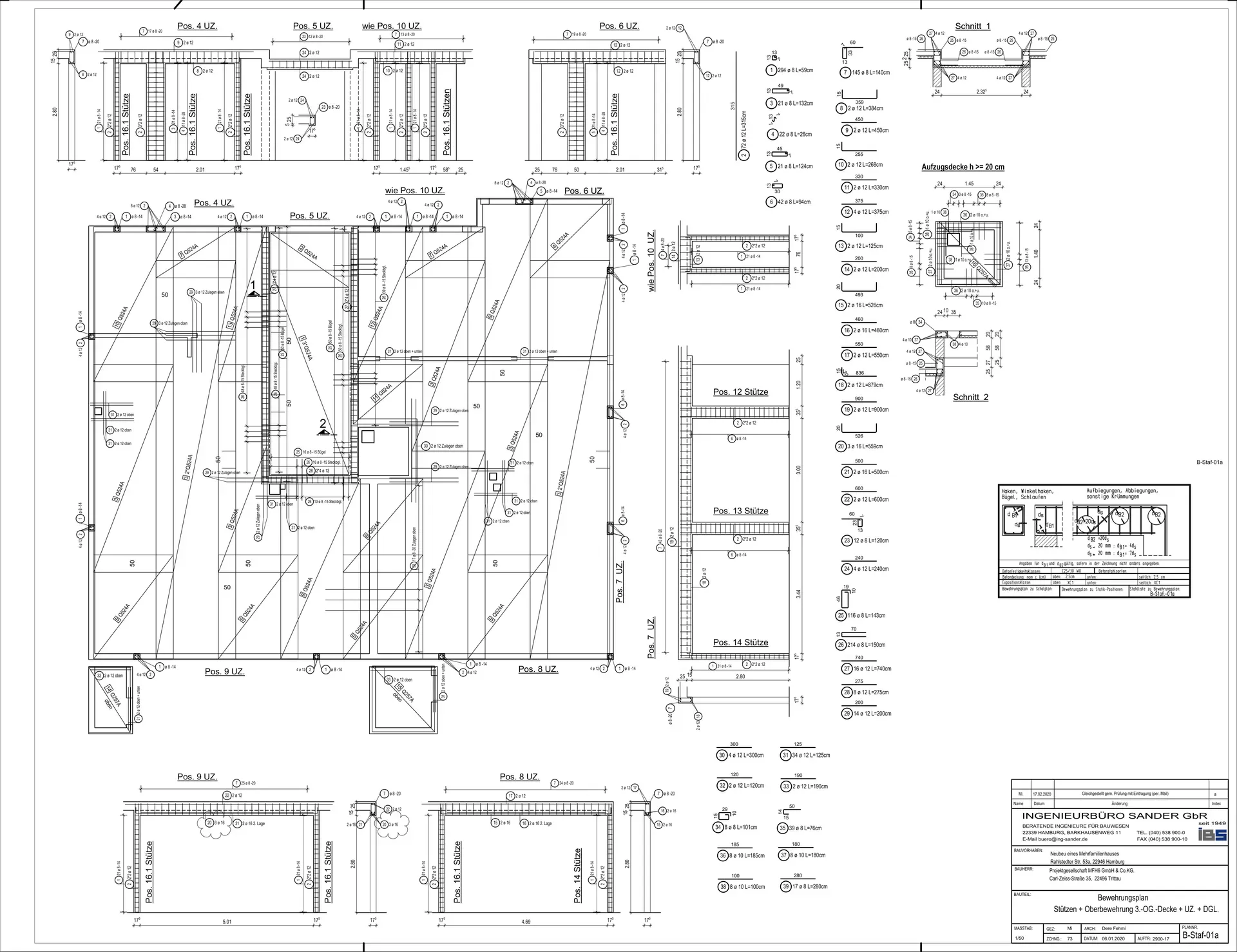
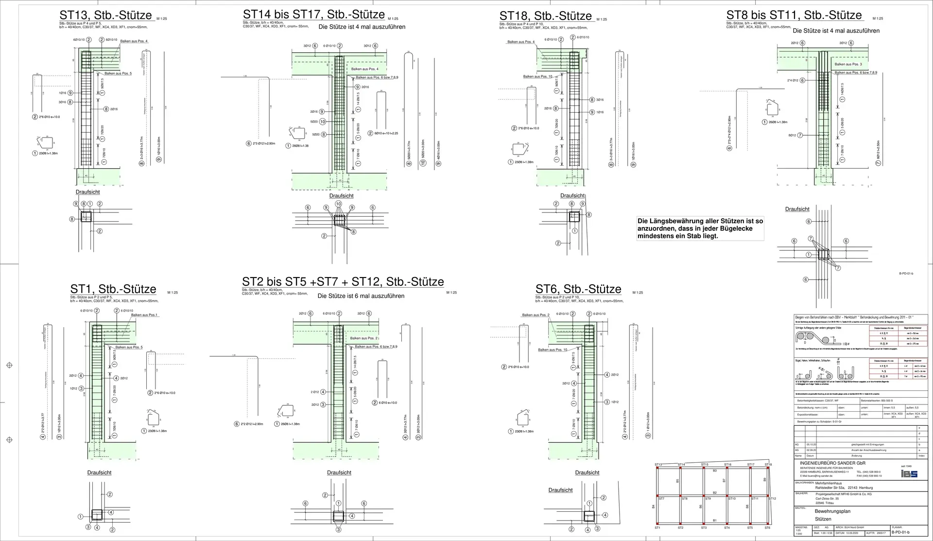
Positions-, und Bewehrungspläne
Positions-, und Bewehrungspläne





















