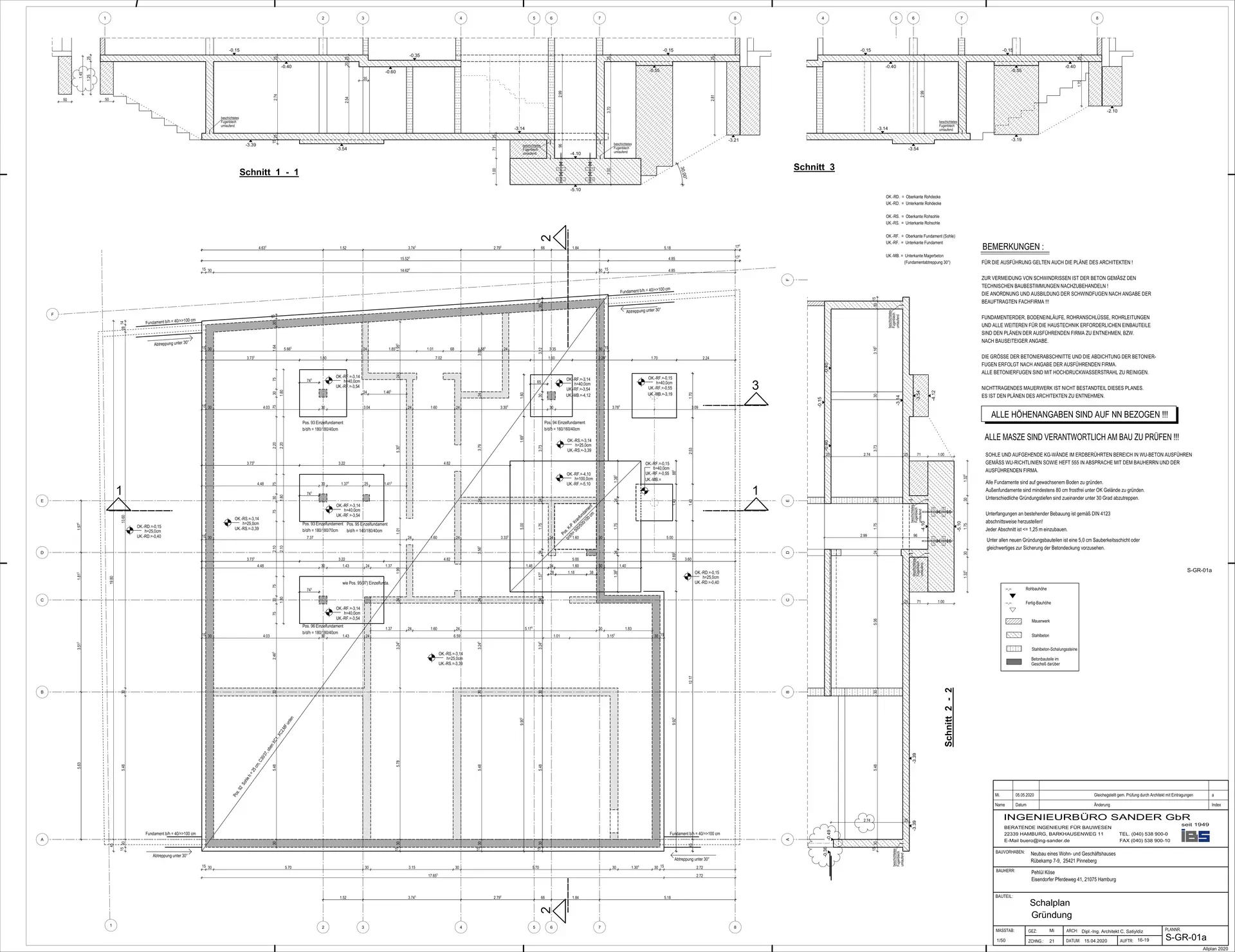
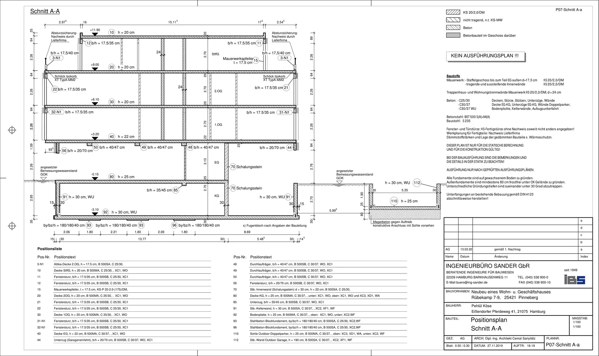
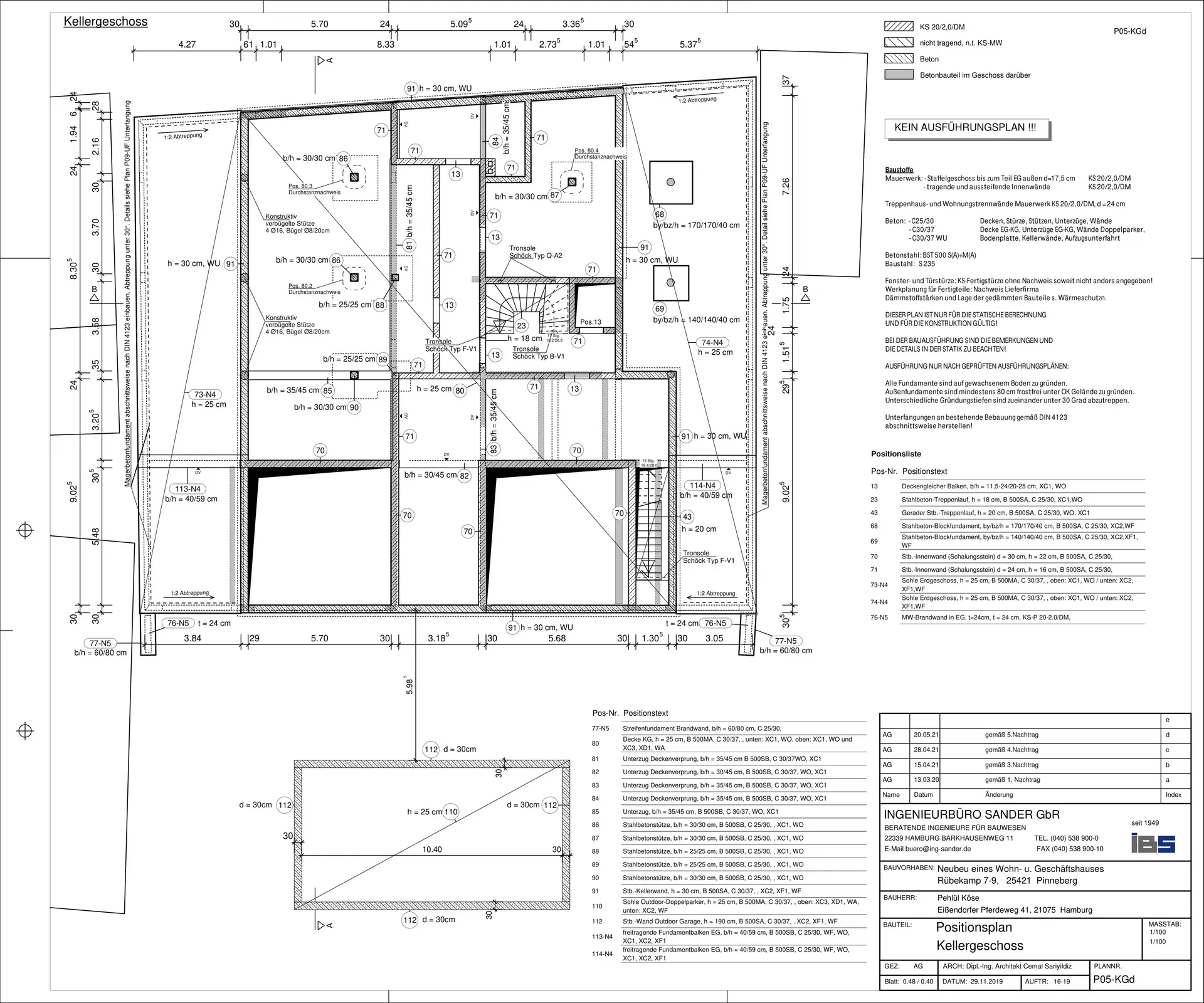
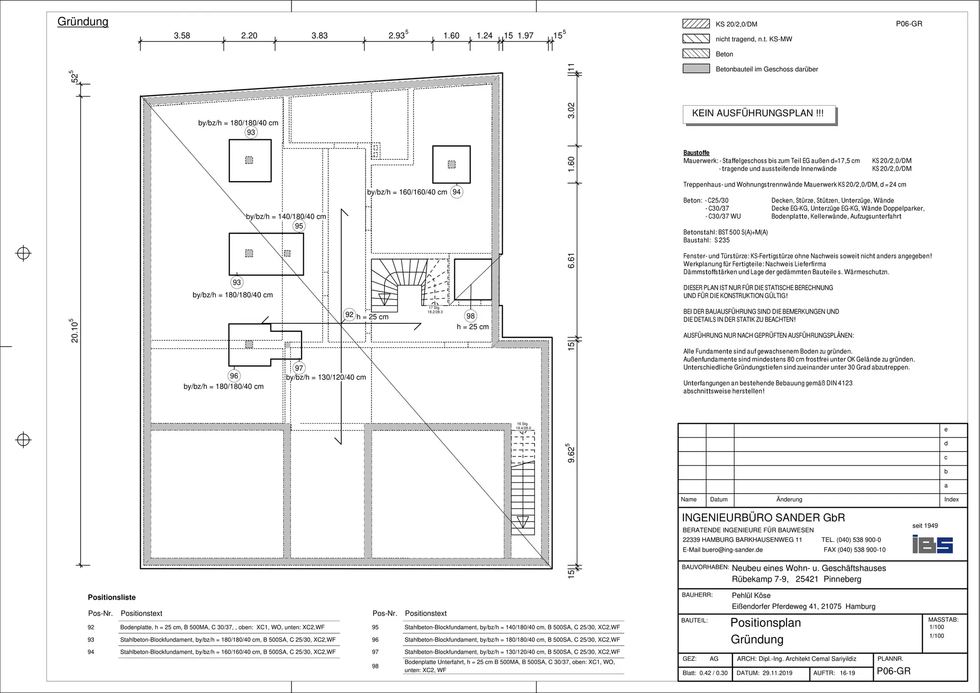
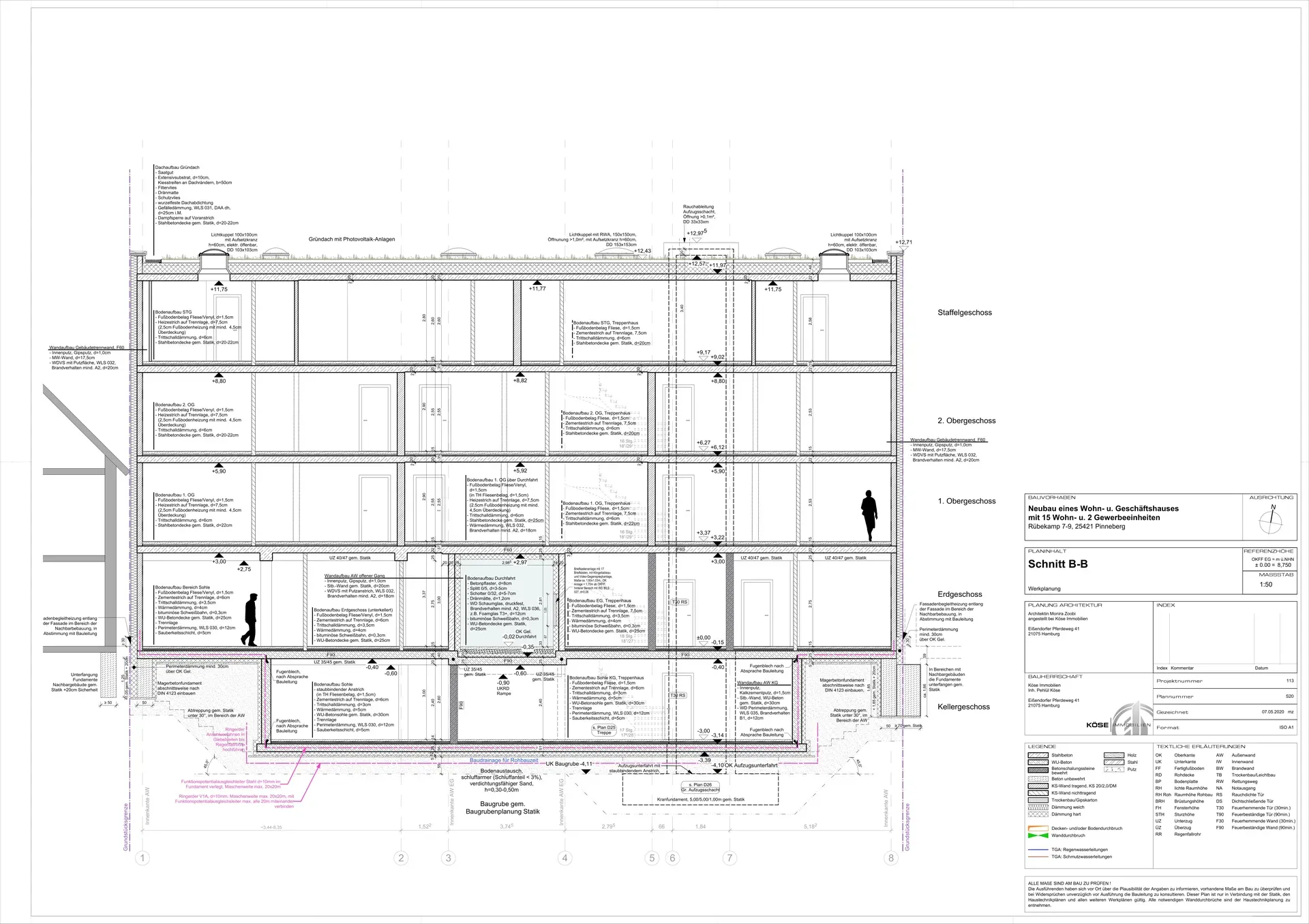
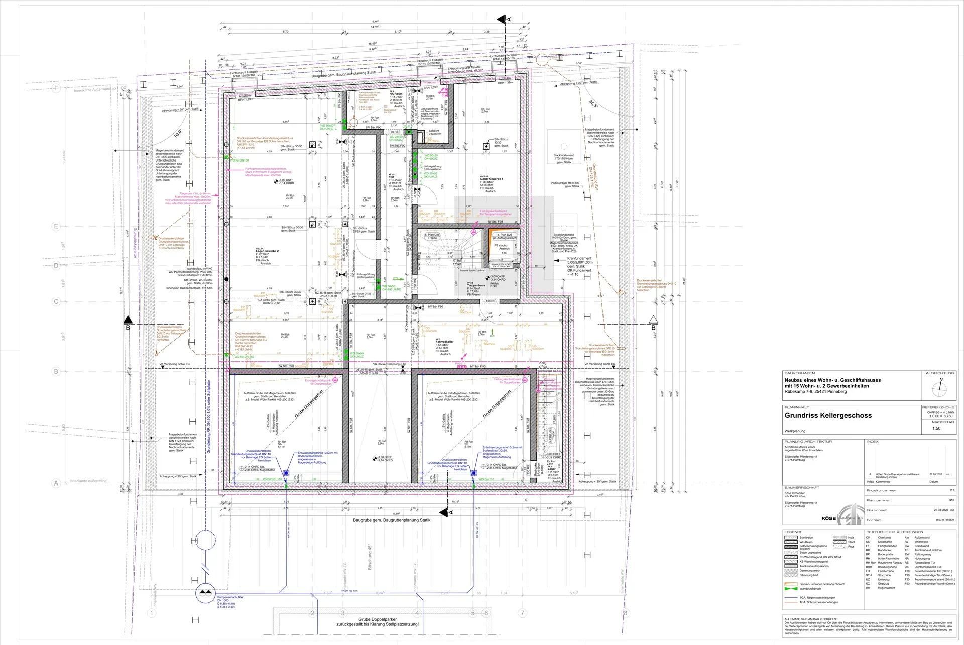
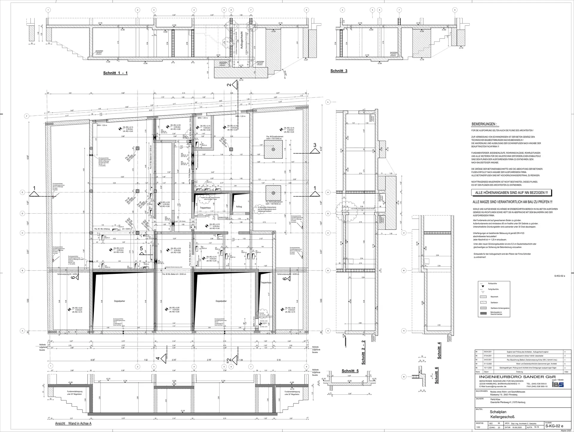
Bauvorhaben:
Neubau eines Mehrfamilienhauses mit 15 WE, Doppelparker und 2 Gewerbeeinheiten
Bauort:
Rübekamp 7-9, Pinneberg
Bauherr:
Köse Immobilien
Architekt:
Architektin Monira Zoobi /
Dipl. Ing. Architekt Cemal Sariyildiz
Baujahr:
2020/2021
Unsere Leistungen: Statische Berechnung, Positions-, Schal- und Bewehrungspläne











