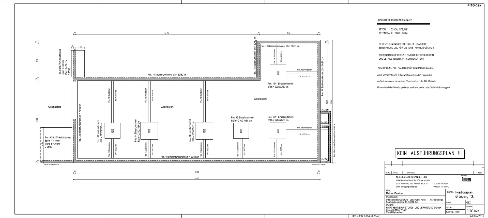
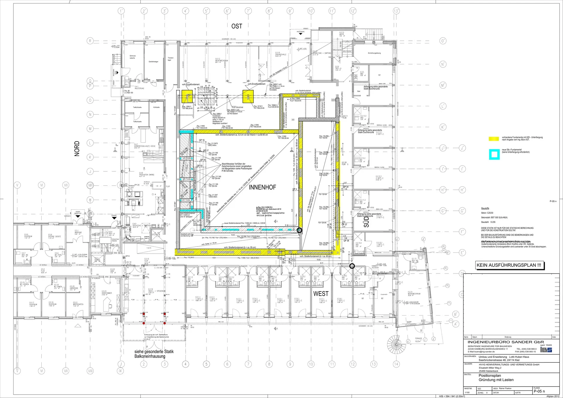
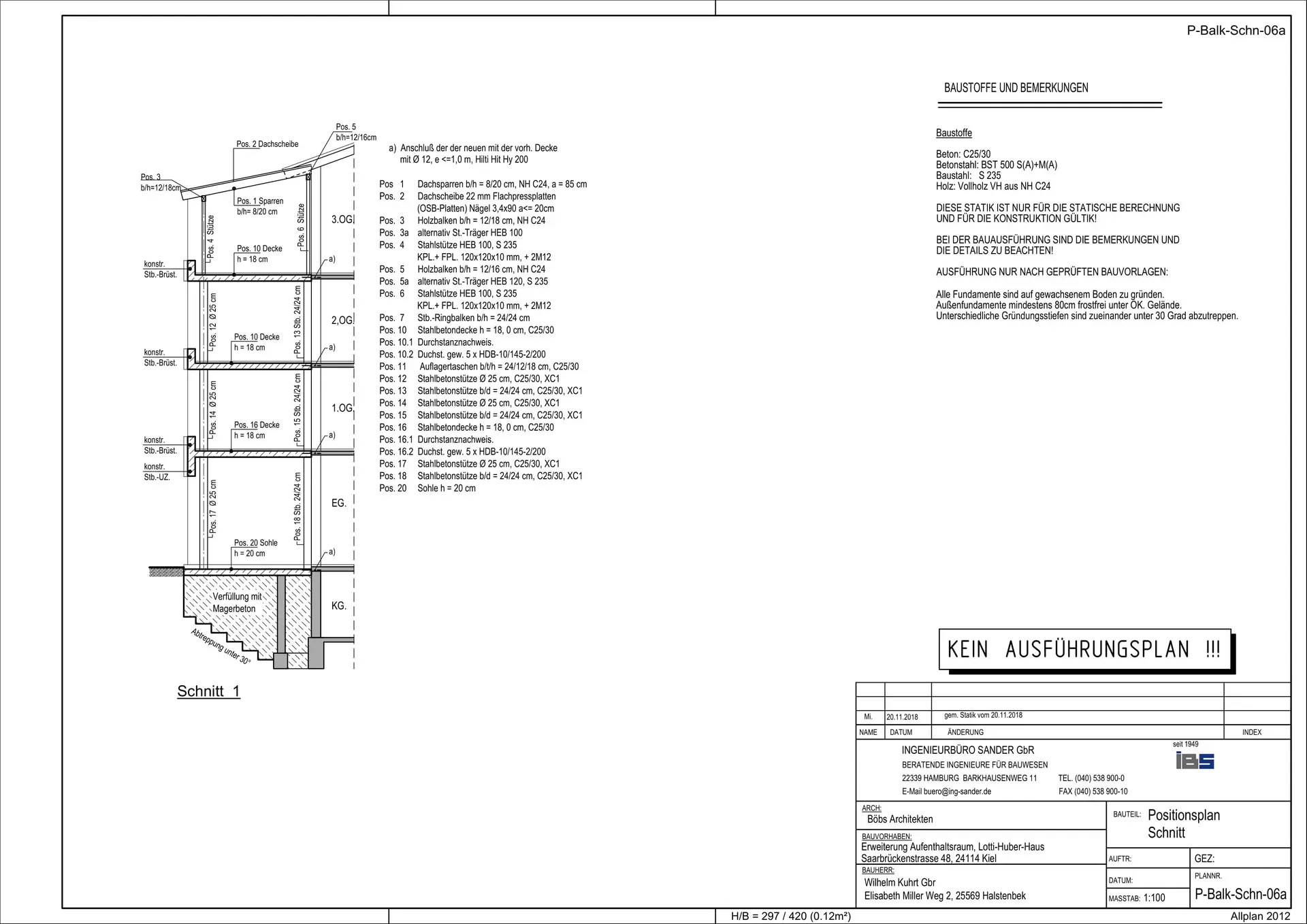
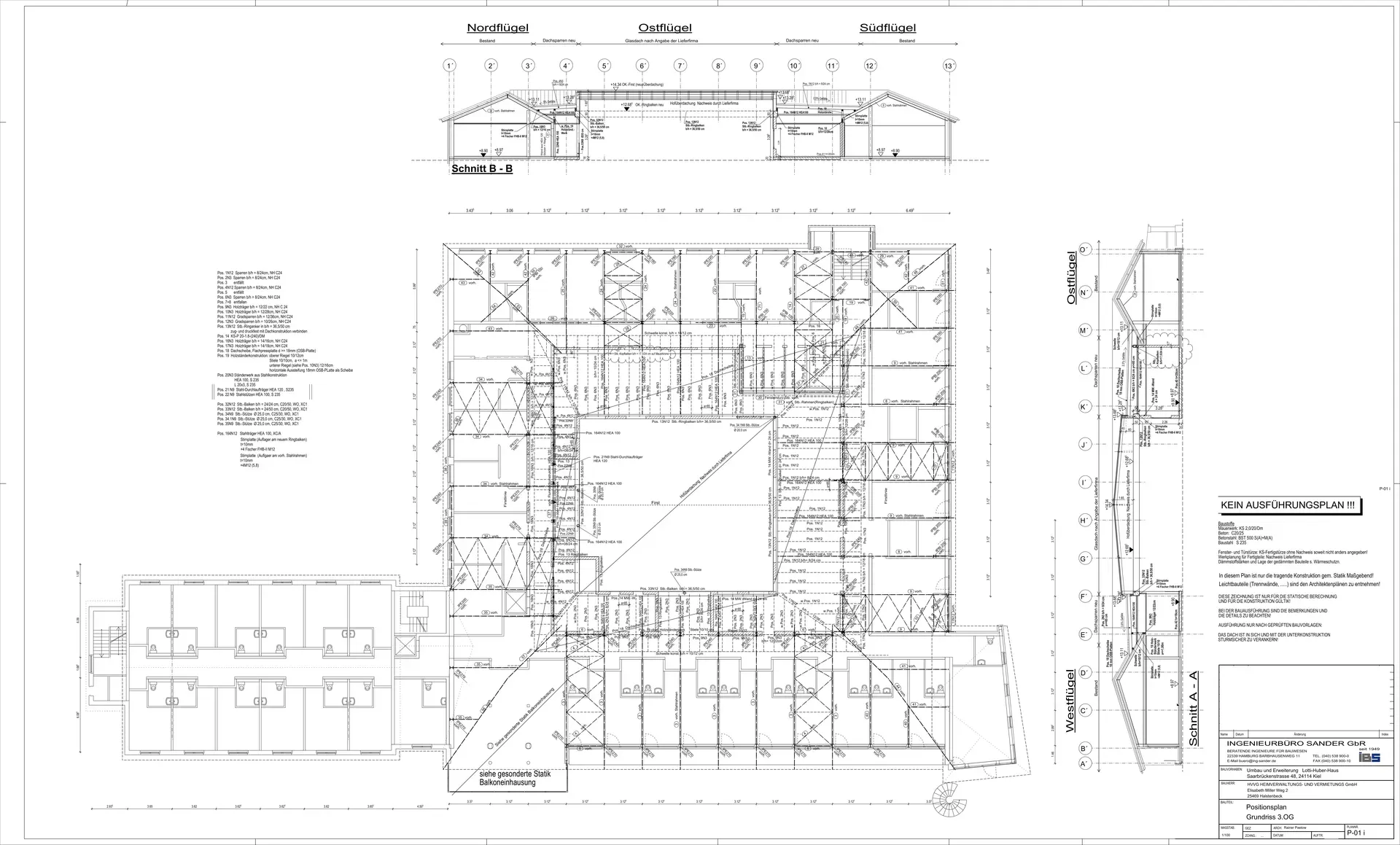
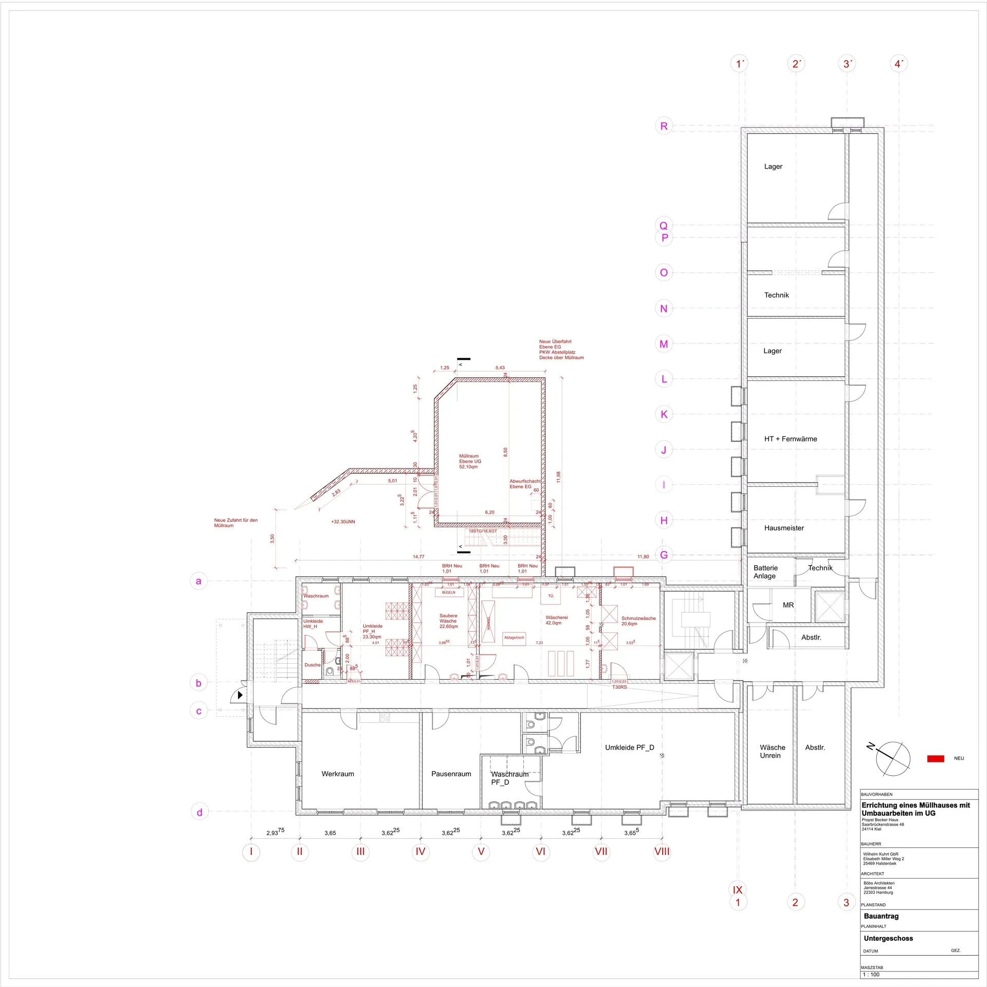
Bauvorhaben: Umbau und Überdachung des Innenhofes, Anbau einer Balkonanlage, Umbau Müllraum,
Neubau einer Garage
Senioren- und Therapiezentrum Lotti-Huber-Haus (ehemals Probst Becker Haus)
Bauort:
Saarbrückenstr. 48, Kiel
Bauherr: Wilhelm Kuhrt GbR
Architekt: Planungsbüro Böbs
Rainer Paetow
Baujahr: 2017/18
Unsere Leistungen: Statische Berechnung, Positionspläne, Schal- und Bewehrungspläne












