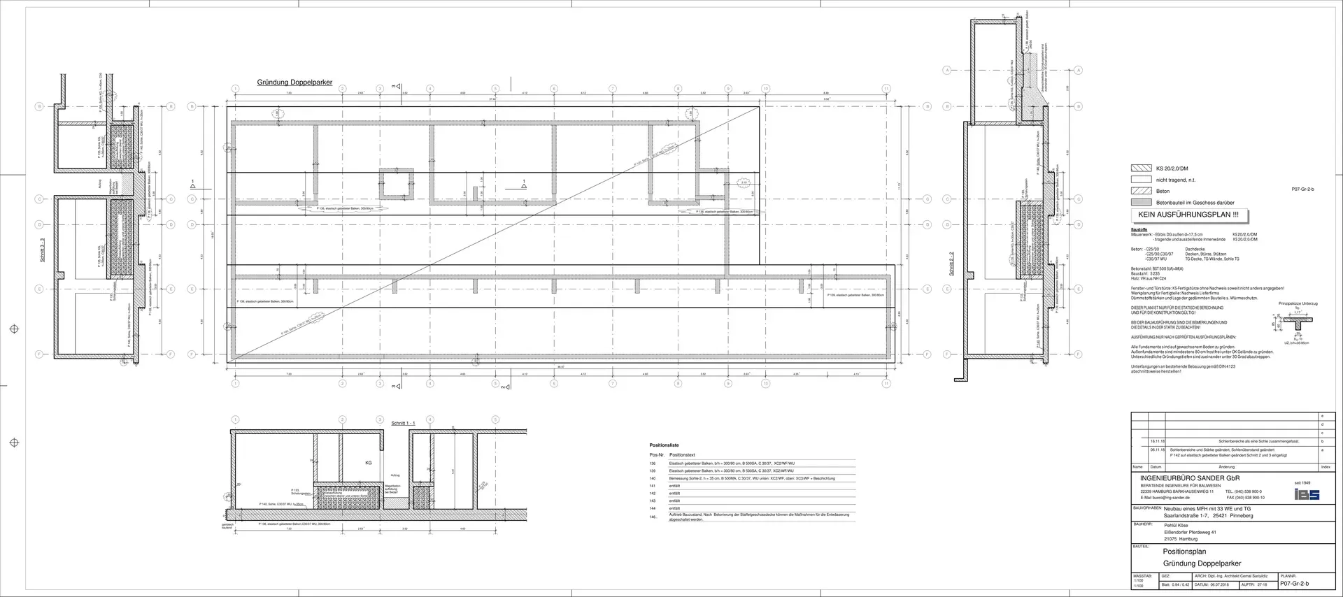
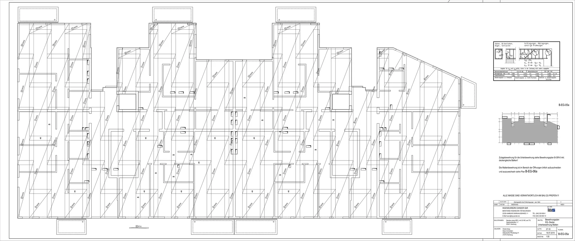
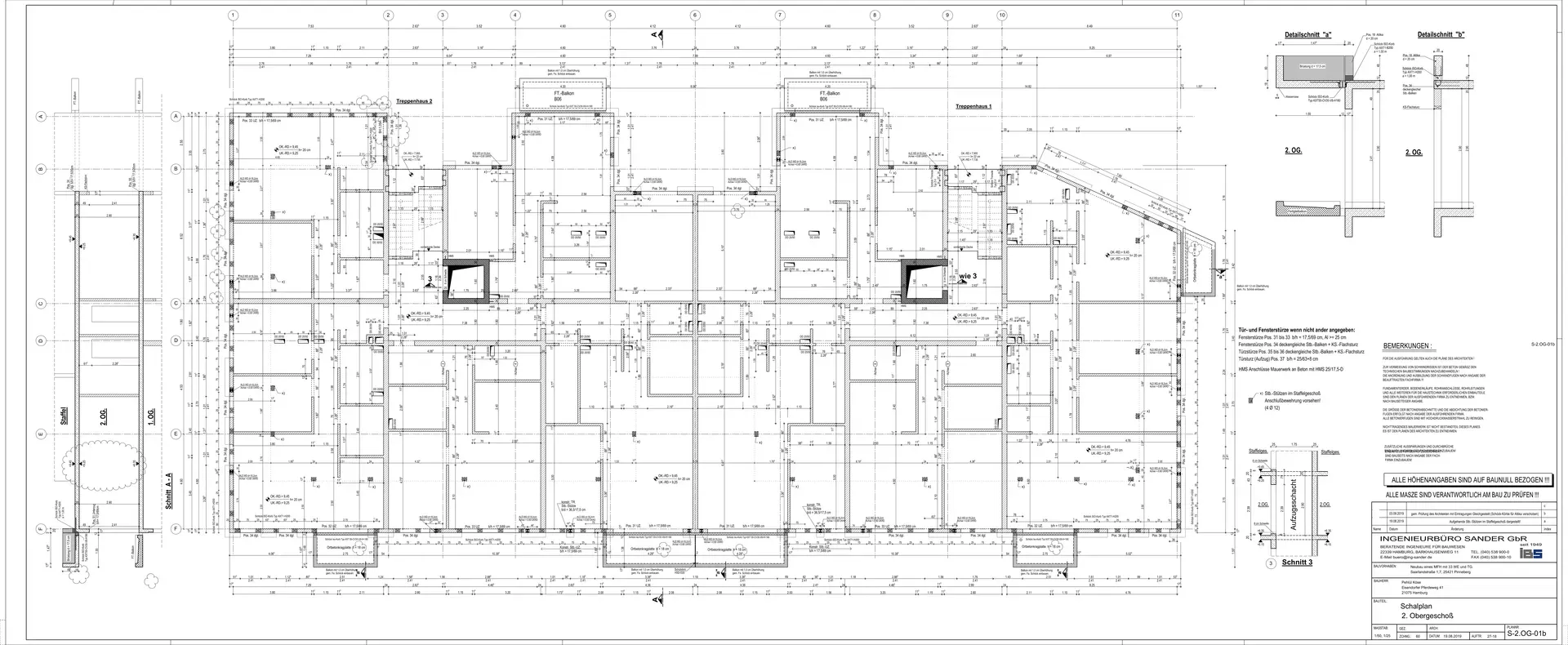
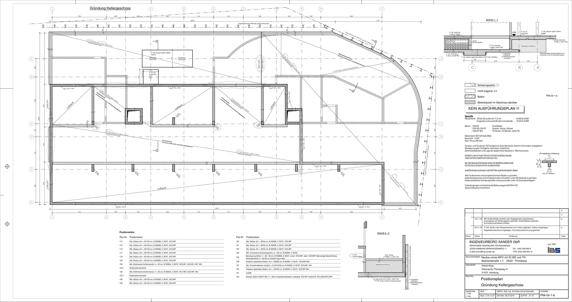
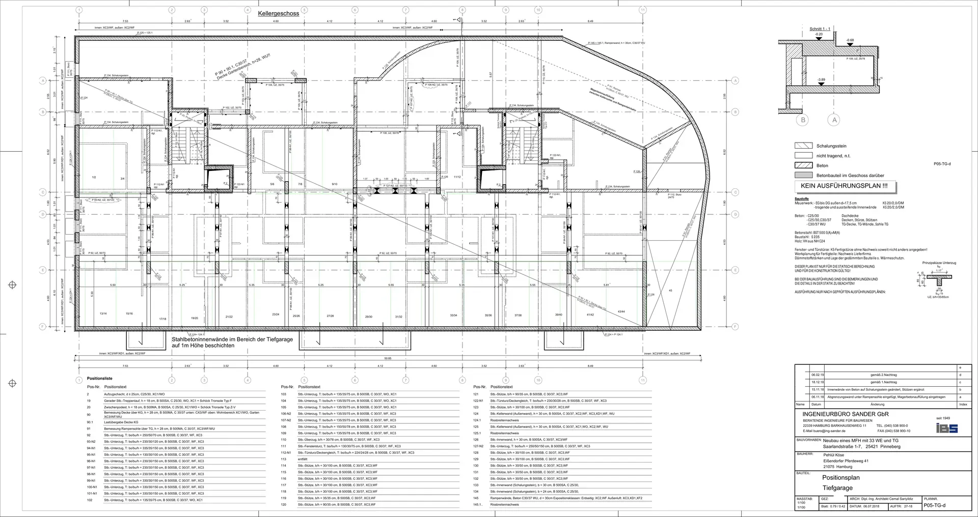
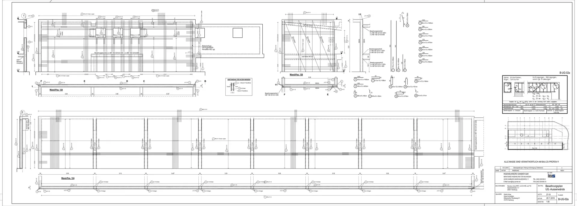
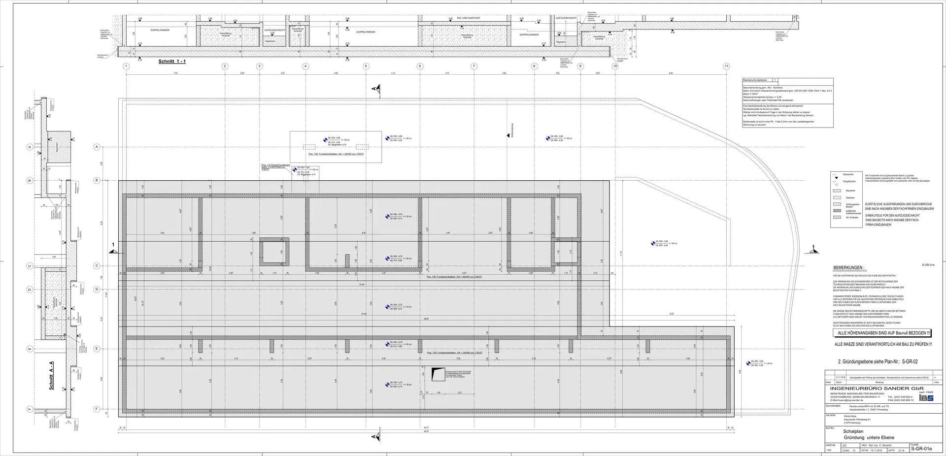
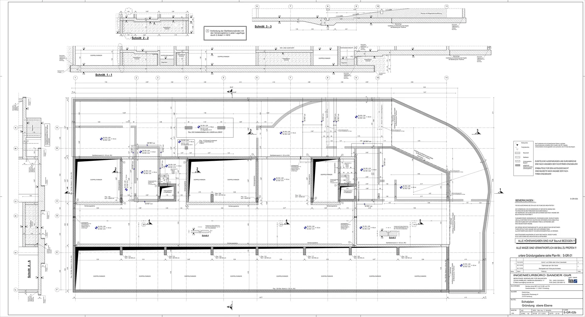
Bauvorhaben: Neubau eines Mehrfamilienhauses mit 33 WE und TG mit Doppelparker

Bauort: Saarlandstraße 1-7, Pinneberg

Bauherr: Köse Immobilien

Architekt: Dipl. Ing. Architekt Cemal Sariyildiz

Baujahr: 2018/2020

Unsere Leistungen: Statische Berechnung, Positions-, Schal- und Bewehrungspläne