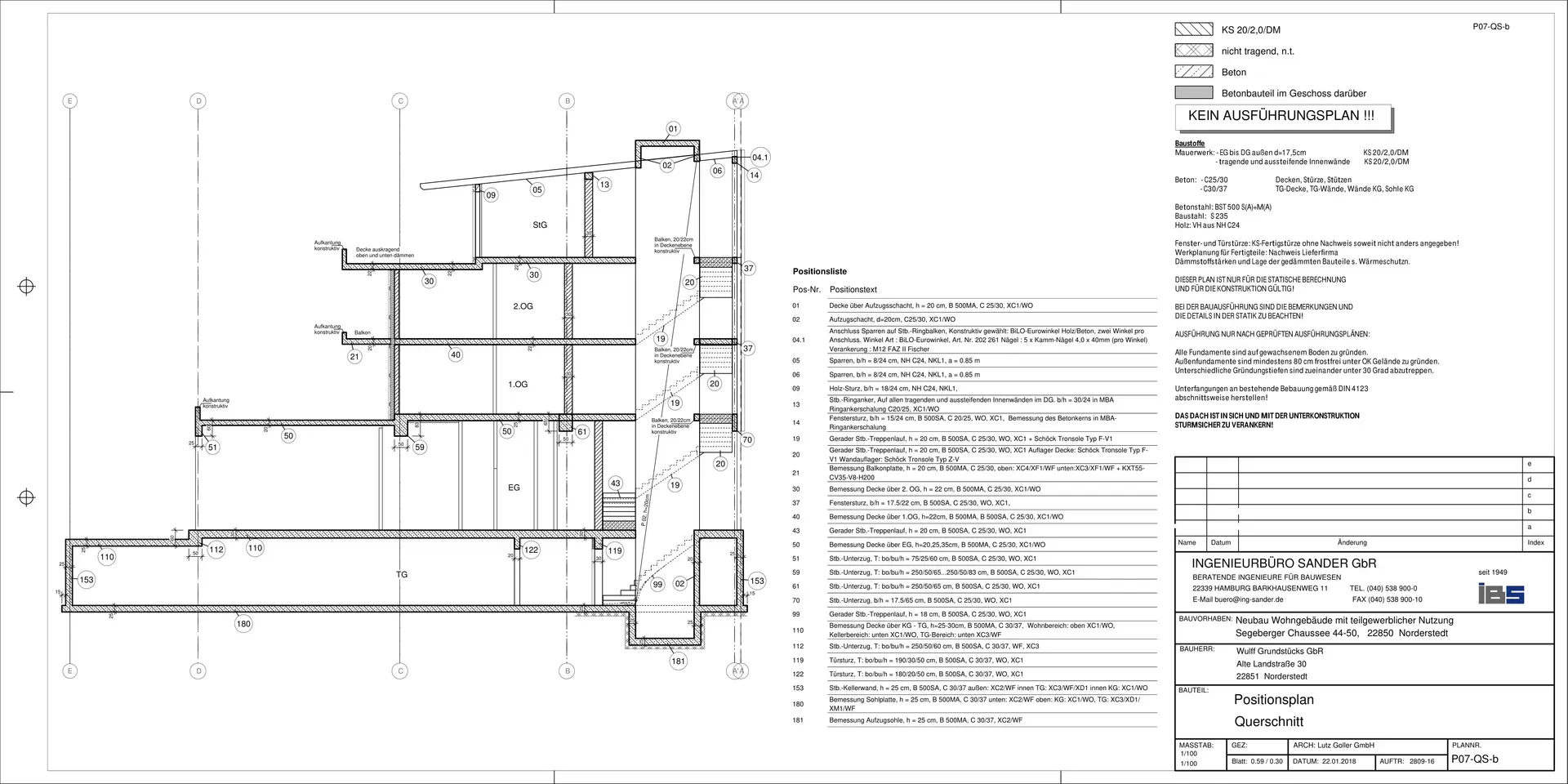
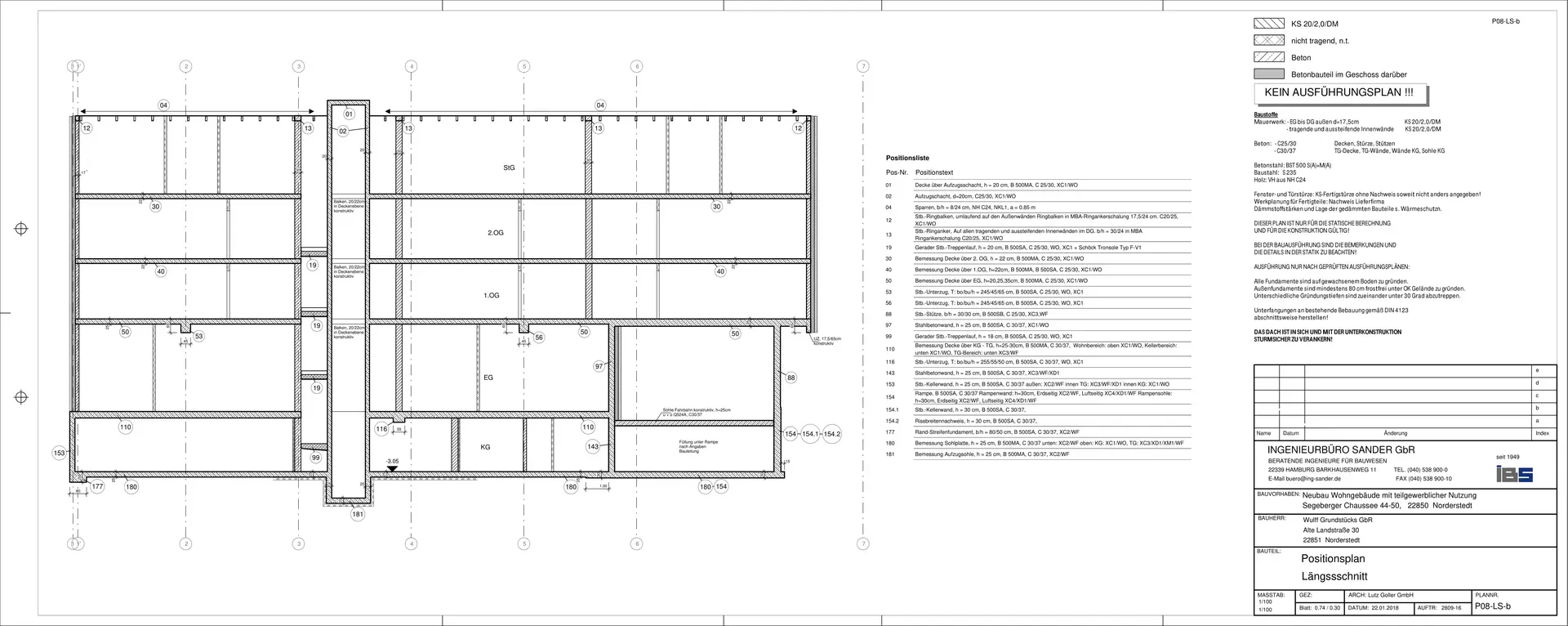
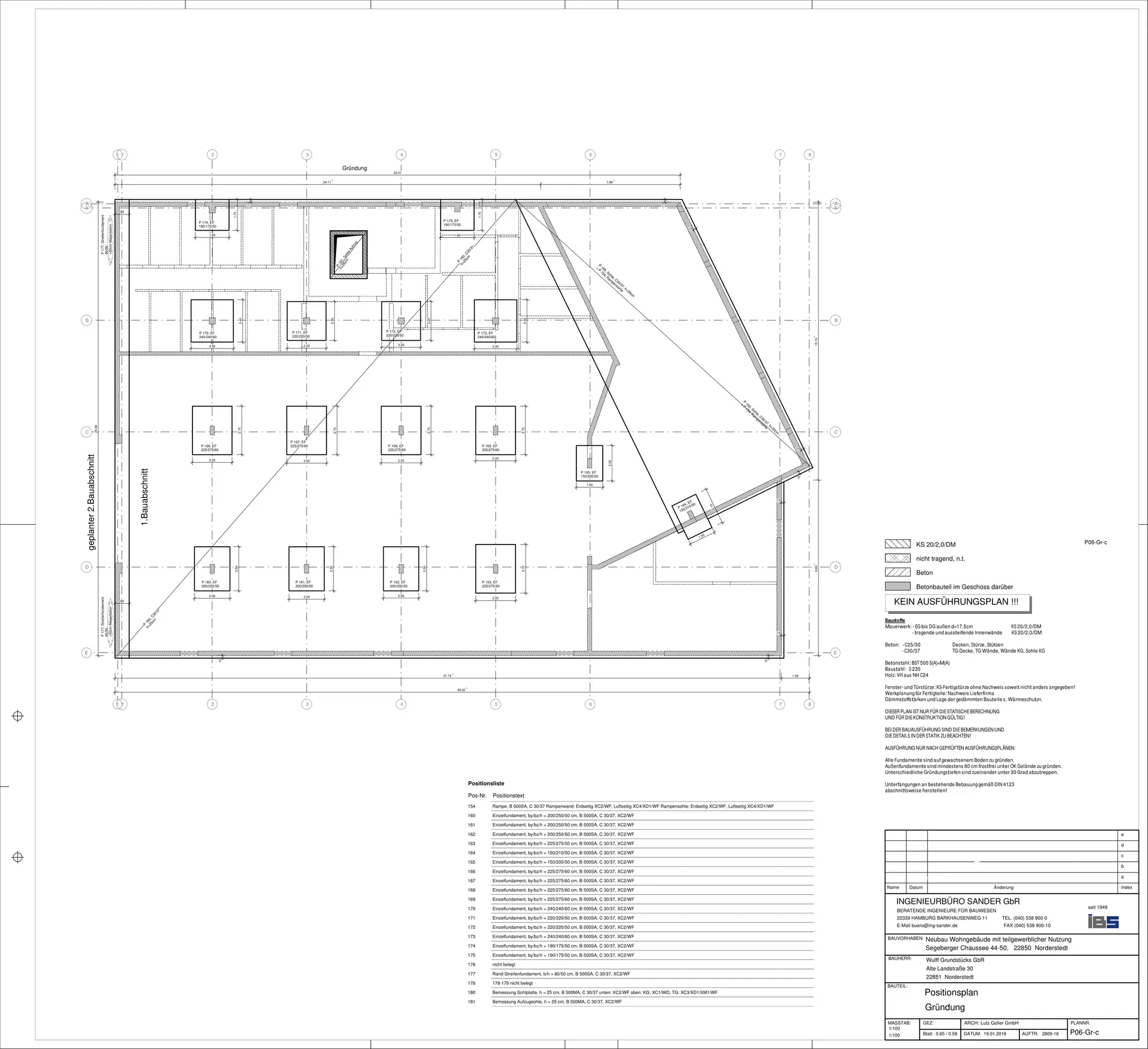
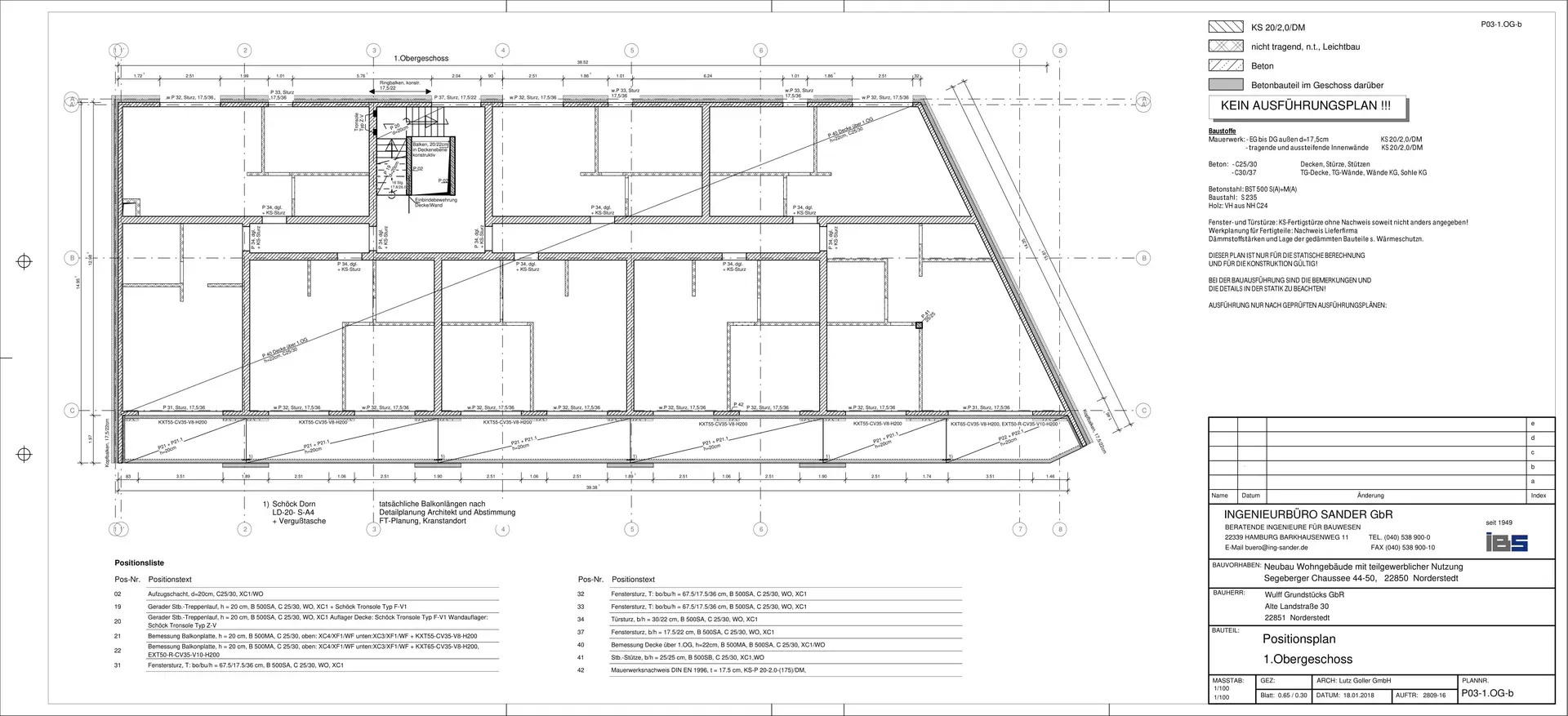
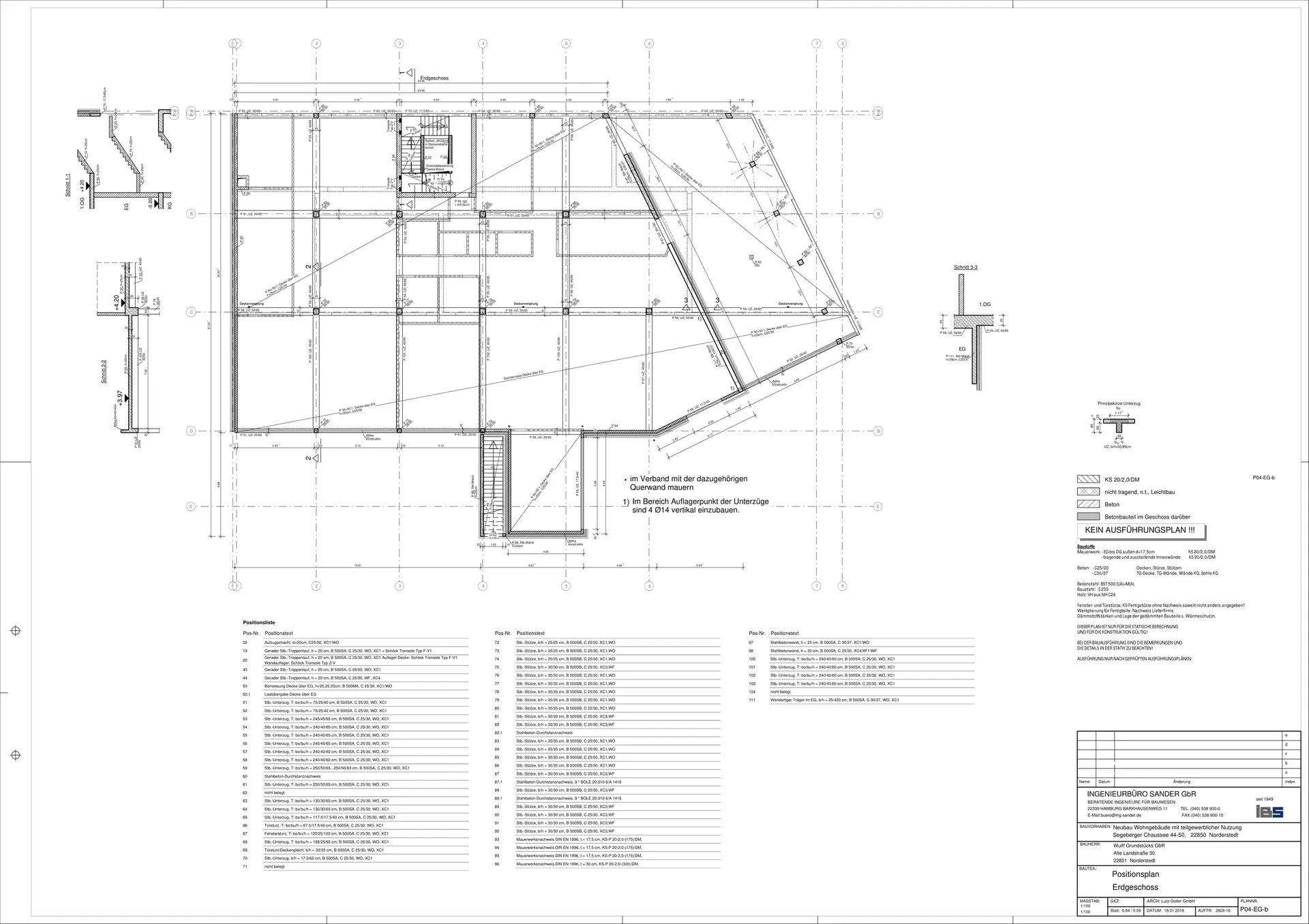
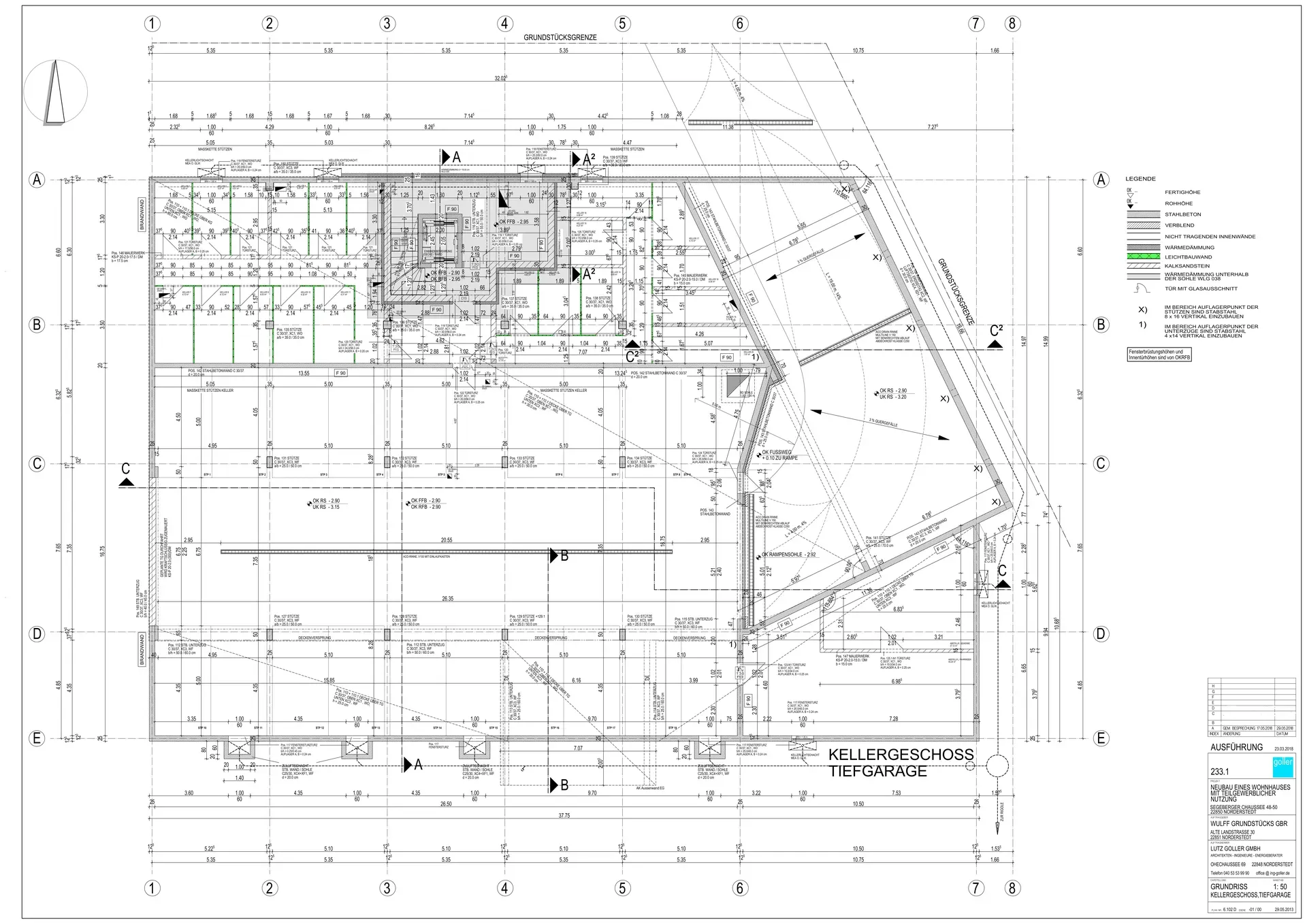
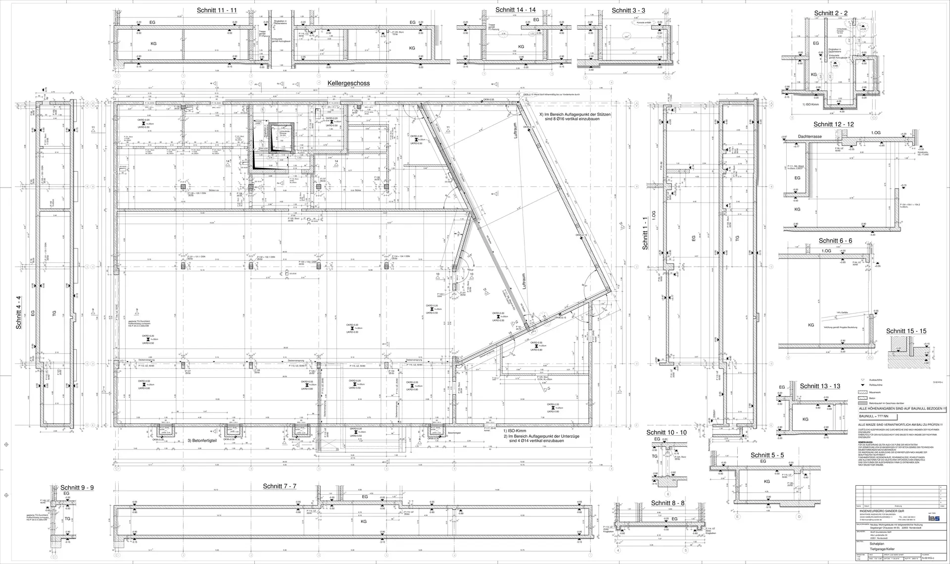
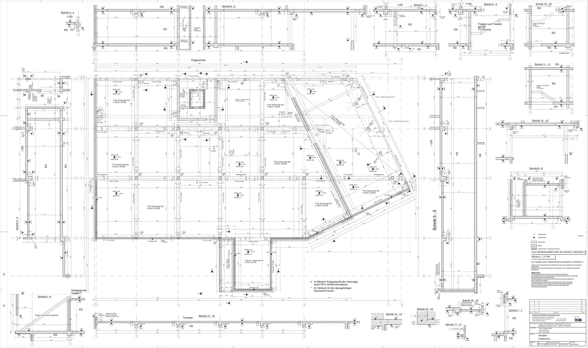
Bauvorhaben:
Neubau eines Wohngebäudes mit 20 WE, teilgewerblicher Nutzung und Tiefgarage
Bauort:
Segeberger Chaussee
44-50
Bauherr:
WULFF GRUNDSTÜCKS GBR
Architekt:
LUTZ GOLLER GMBH
Baujahr:
2018 / 19
Unsere Leistungen:
Statische Berechnung, baulicher Brandschutz, Wärmeschutz- & Schallschutznachweis,
Positions-, Schal- und Bewehrungspläne
Positions-, Schal- und Bewehrungspläne




















