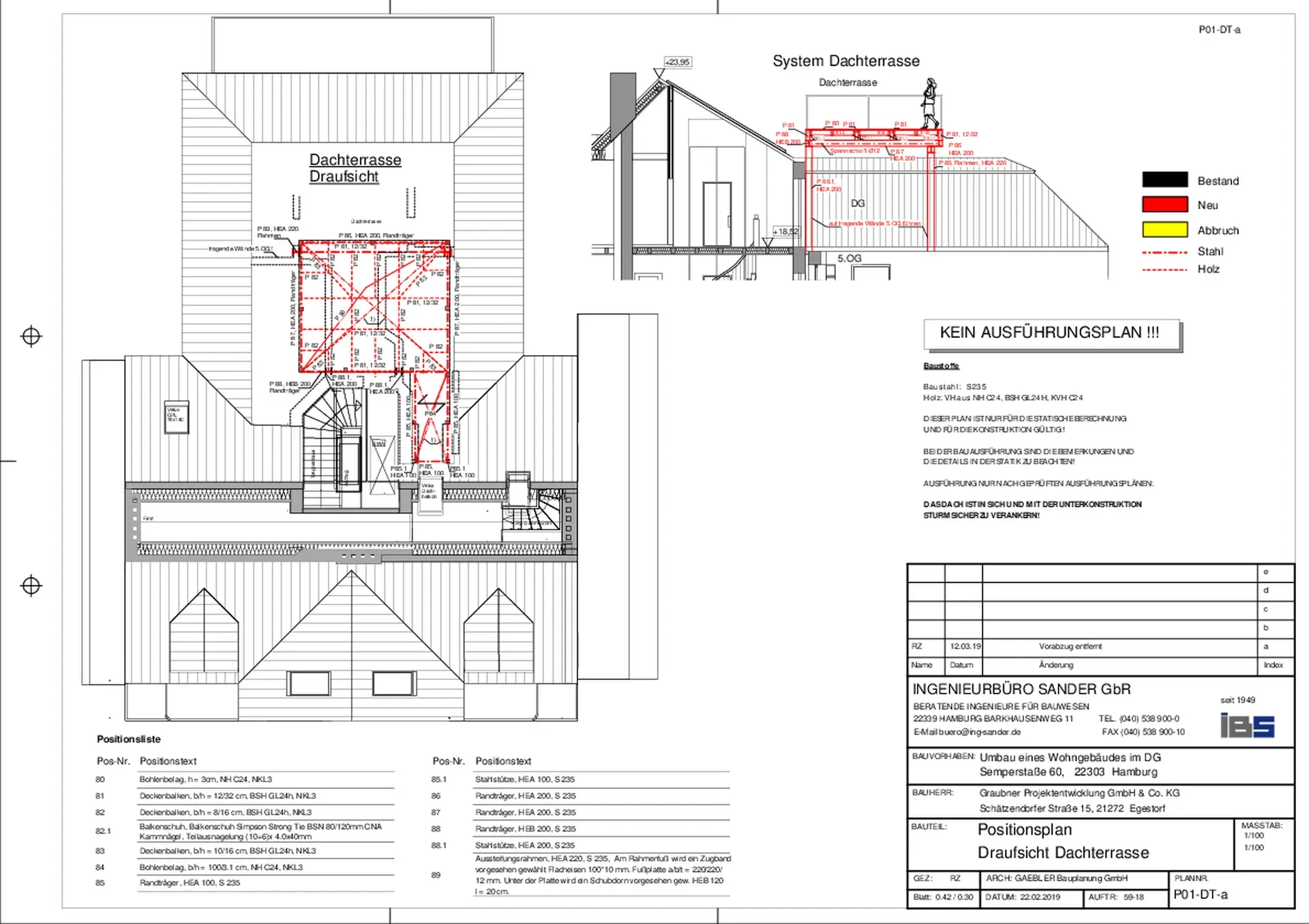
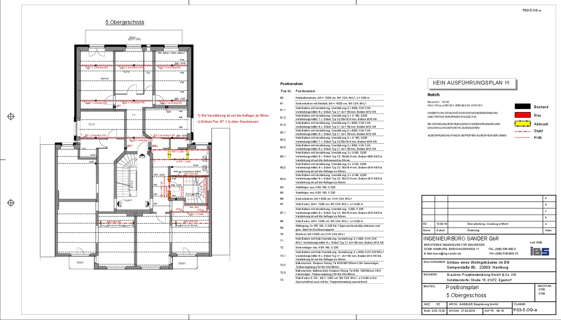
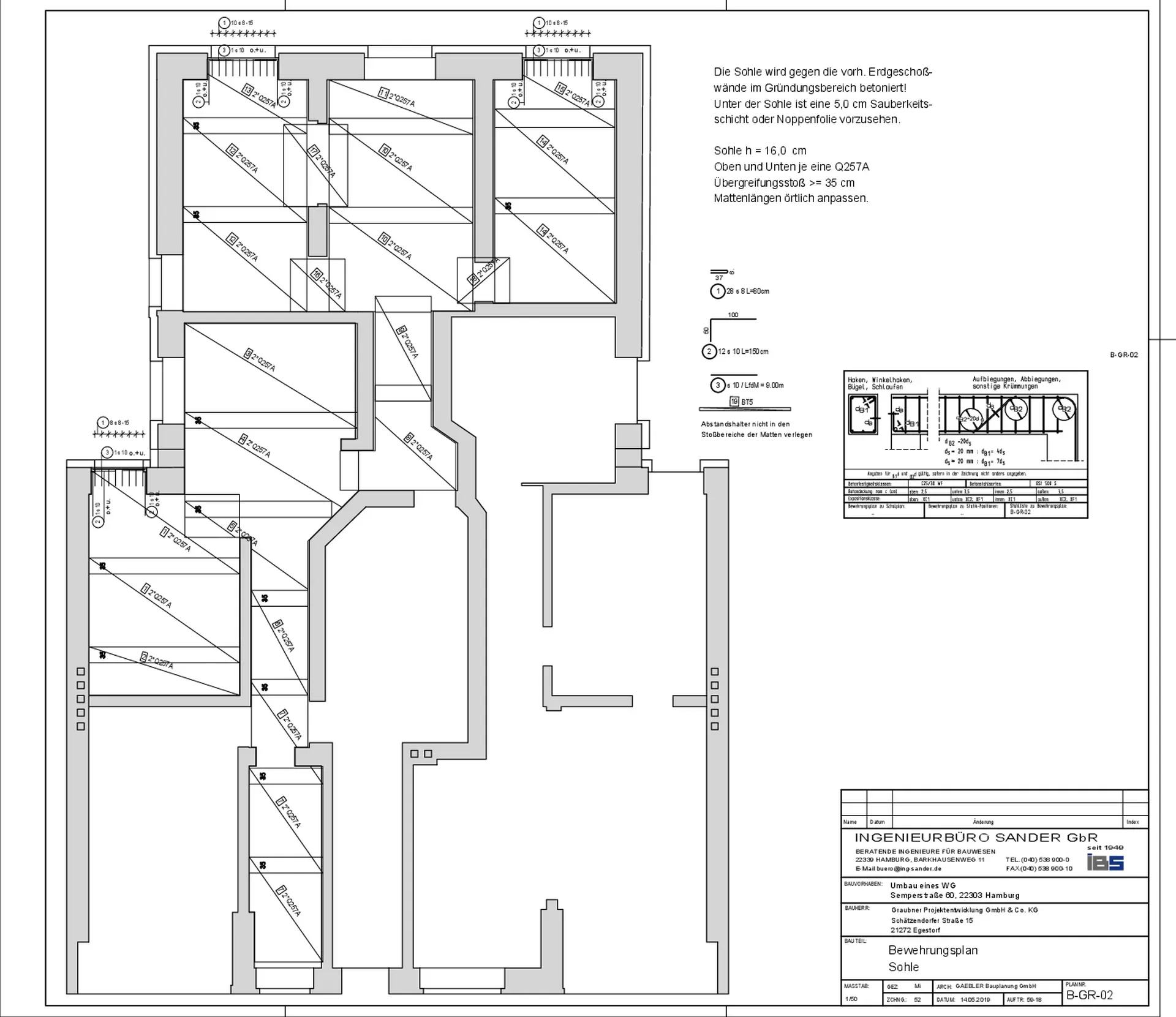
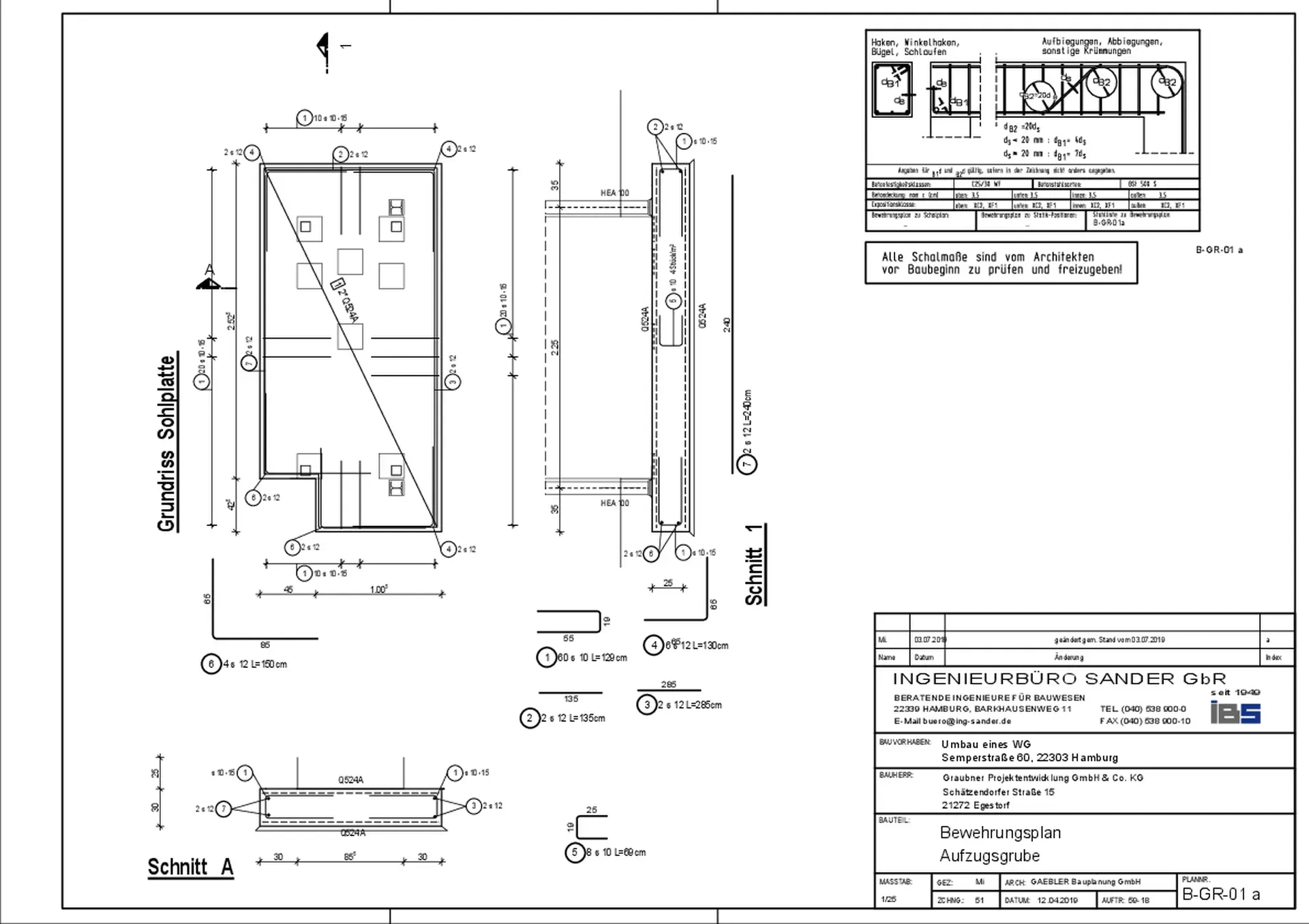
Bauvorhaben:
Umbau eines Wohngebäudes im 5.OG/DG, Einbau eines Aufzuges
Bauort:
Semperstrasse 60,
Hamburg
Bauherr:
Graubner Projektentwicklung GmbH & Co. KG
Architekt:
GAEBLER Bauplanung GmbH
Baujahr:
2019/2020
Unsere Leistungen:
Statische Berechnung, Positionspläne, Schal- und Bewehrungspläne












