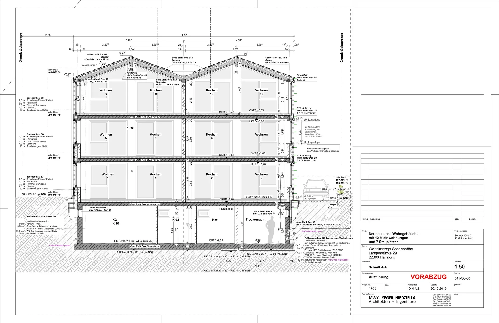
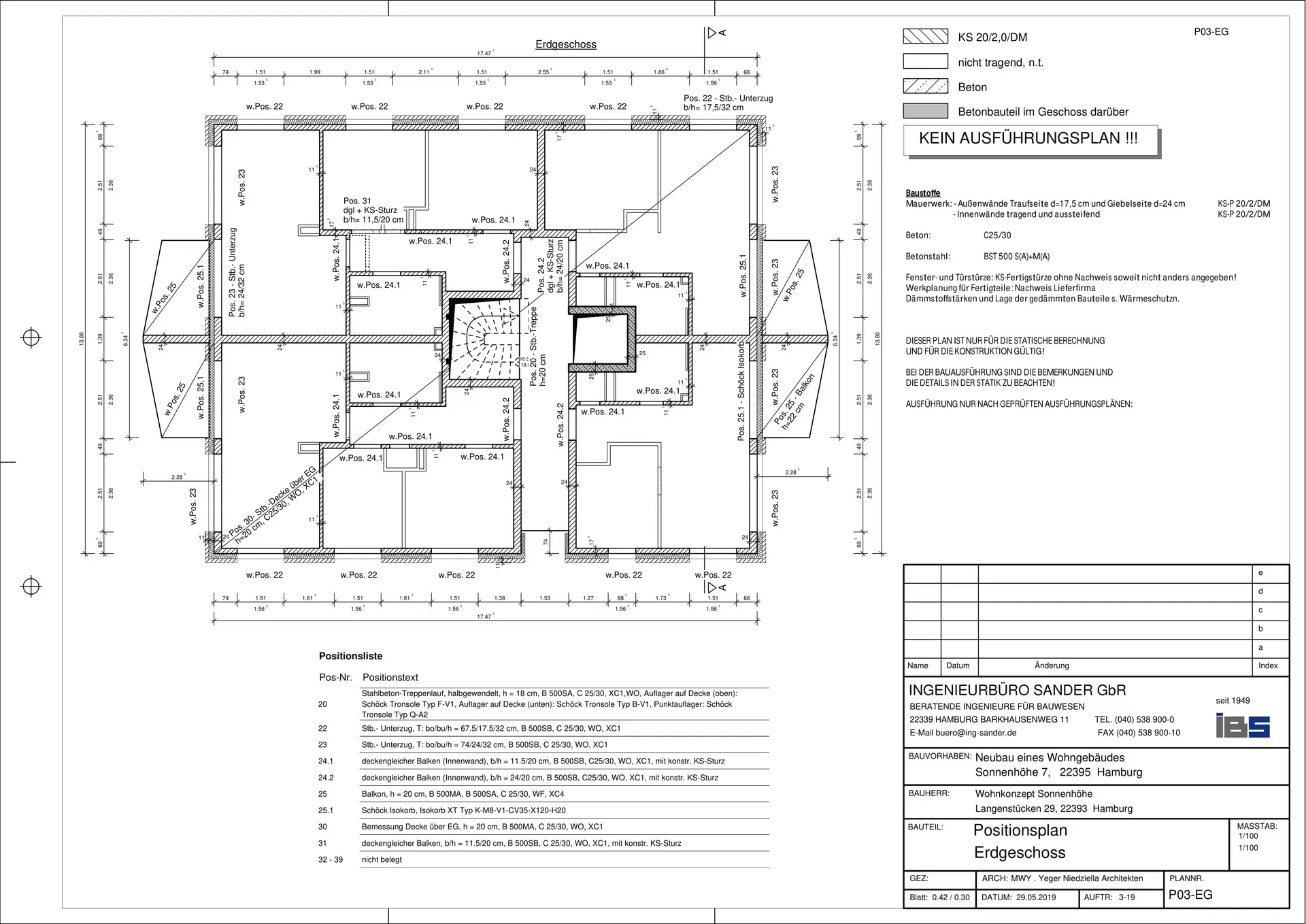
Bauvorhaben:
Neubau eines Wohngebäudes mit 12 Kleinwohnungen
Bauort:
Sonnenhöhe 7, 22395 Hamburg
Bauherr:
Wohnkonzept Sonnenhöhe
Architekt:
MWY · YEGER NIEDZIELLA Architekten + Ingenieure
Baujahr:
2020
Unsere Leistungen:
Statische Berechnung, Schallschutznachweis,
Positions-, und Bewehrungspläne (teilweise)
Positions-, und Bewehrungspläne (teilweise)








