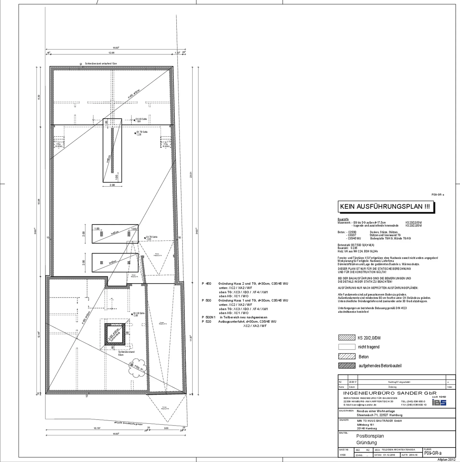
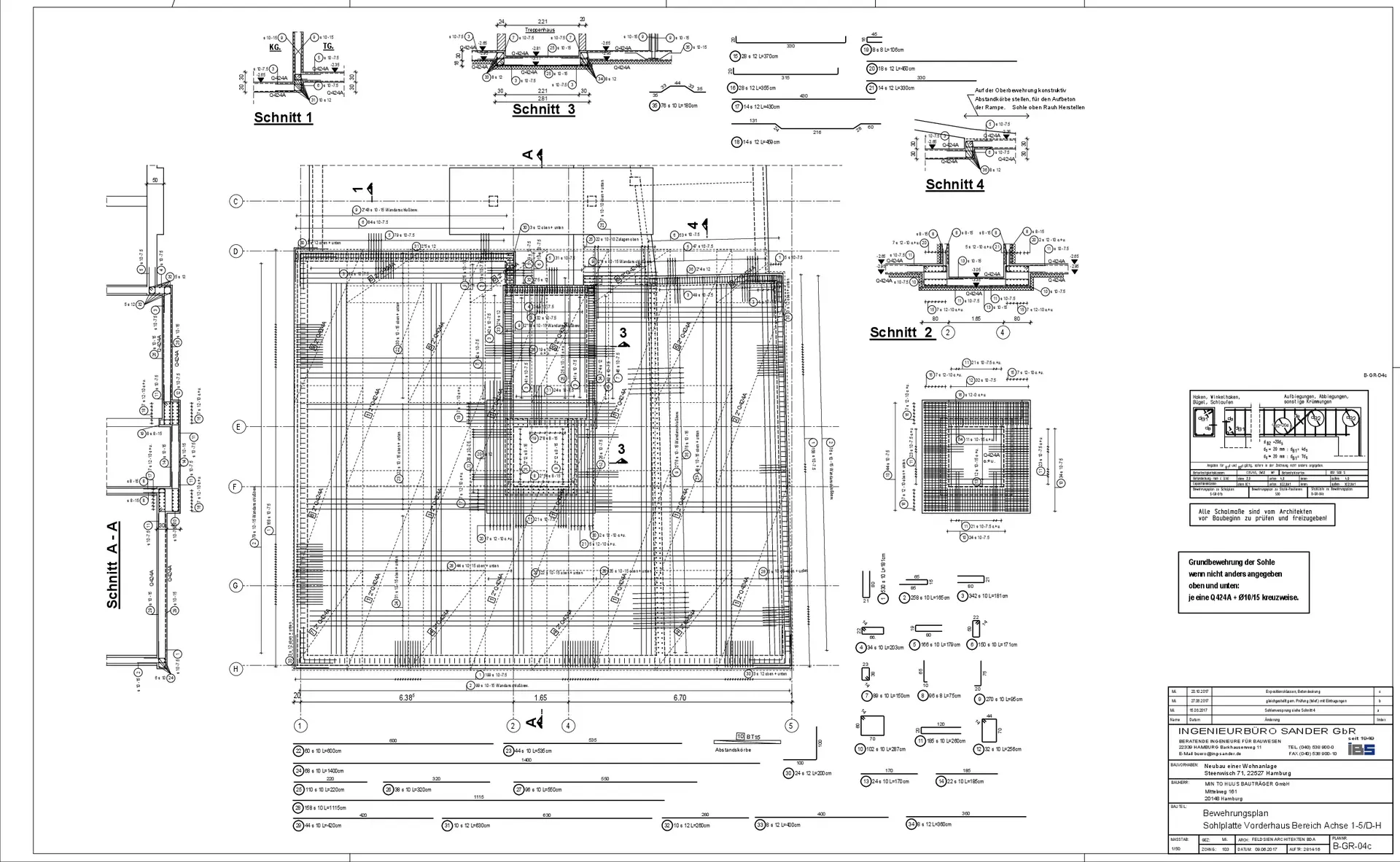
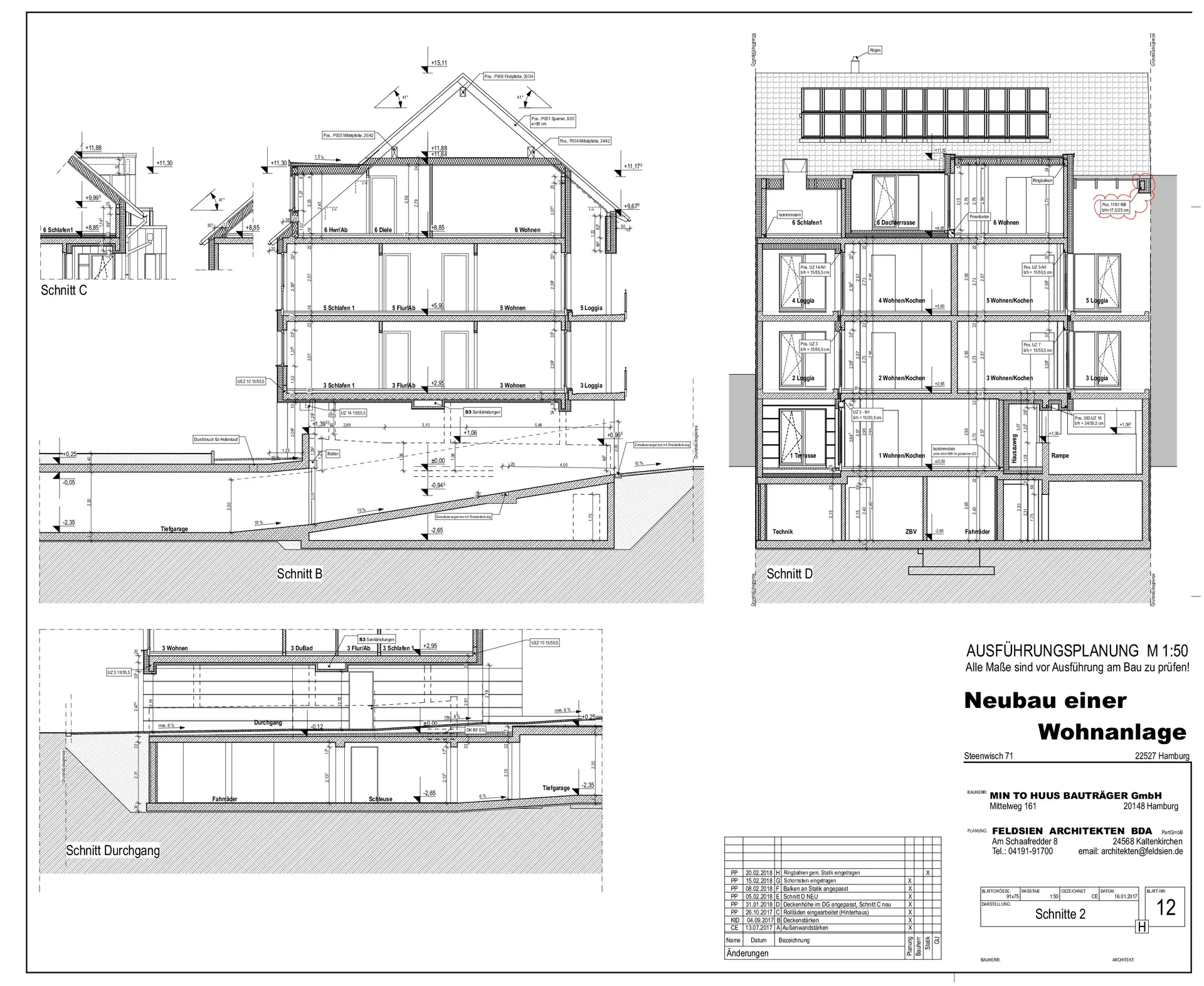
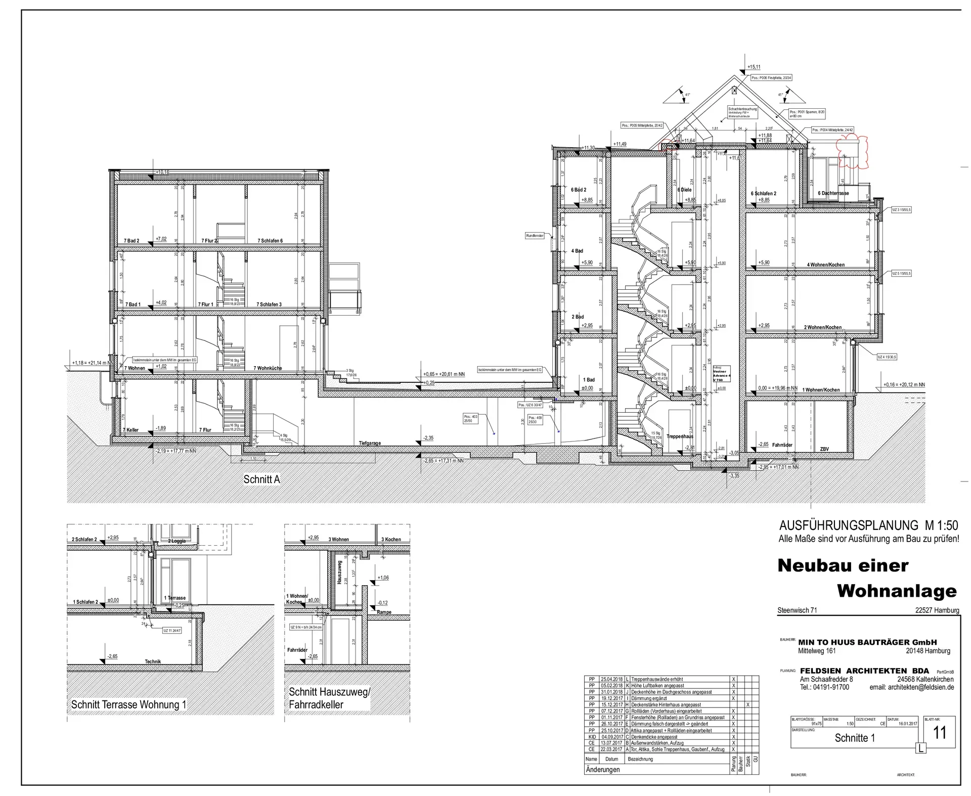
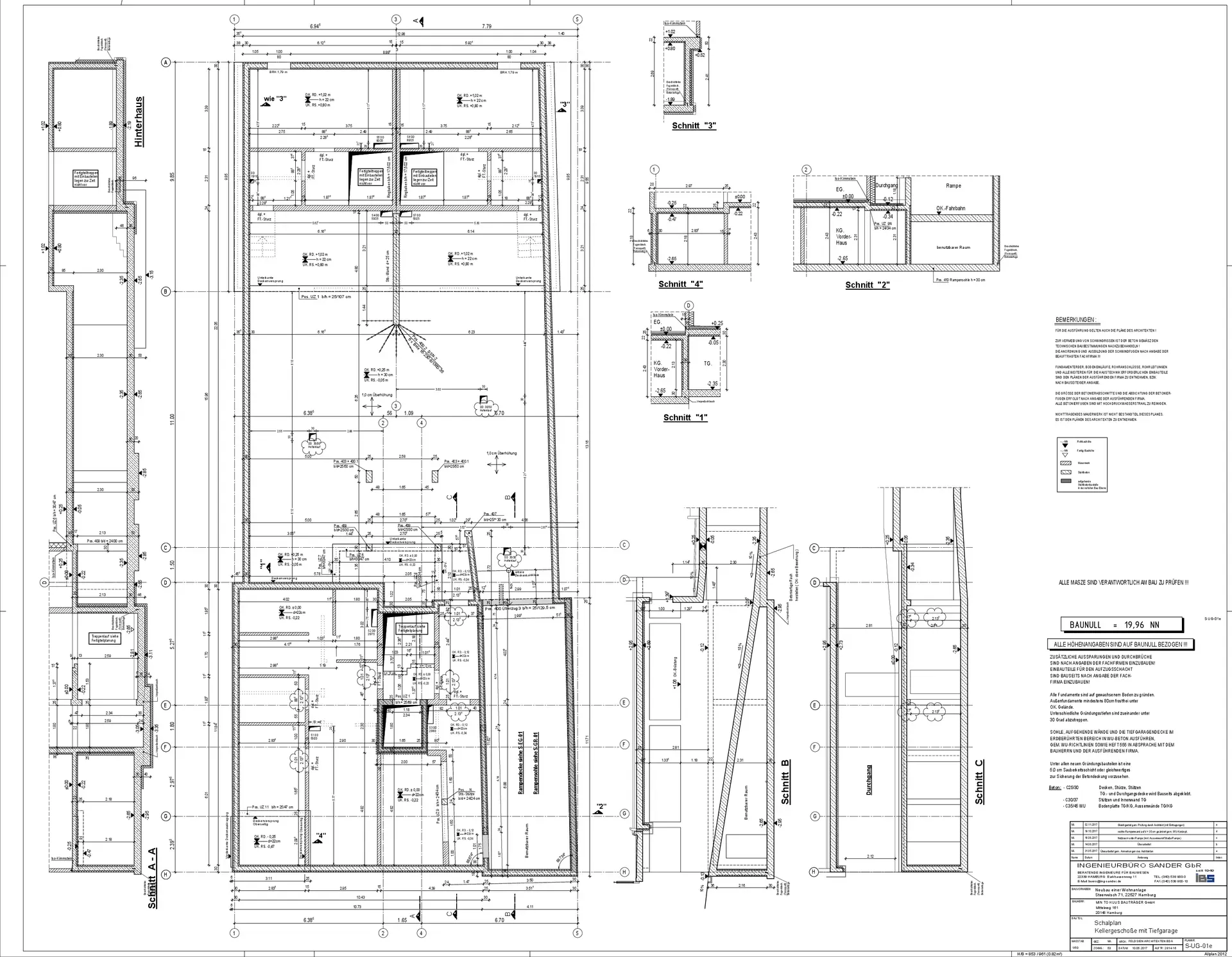
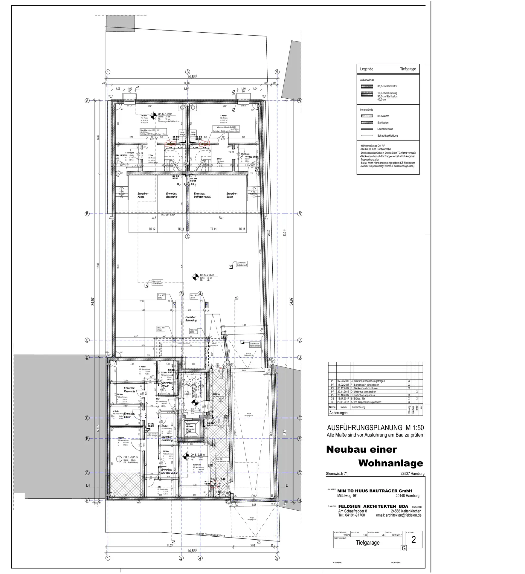
Bauvorhaben: Neubau eines Mehrfamilienhauses mit Tiefgarage
Bauort:
Steenwisch 71, Hamburg
Bauherr: Min to Huus Bauträger GmbH
Architekt:
FELDSIEN ARCHITEKTEN BDA
Baujahr: 2017/18
Unsere Leistungen: Statische Berechnung, baulicher Brandschutz, Wärmeschutz- & Schallschutznachweis, Positions-, Schal- und Bewehrungspläne






