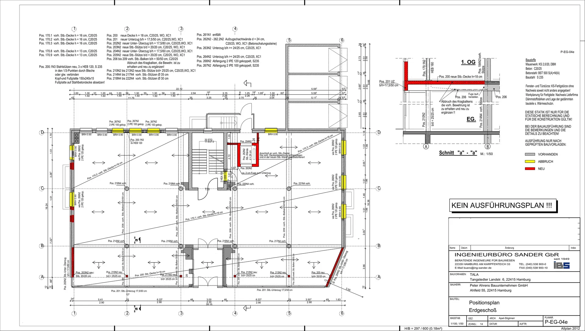
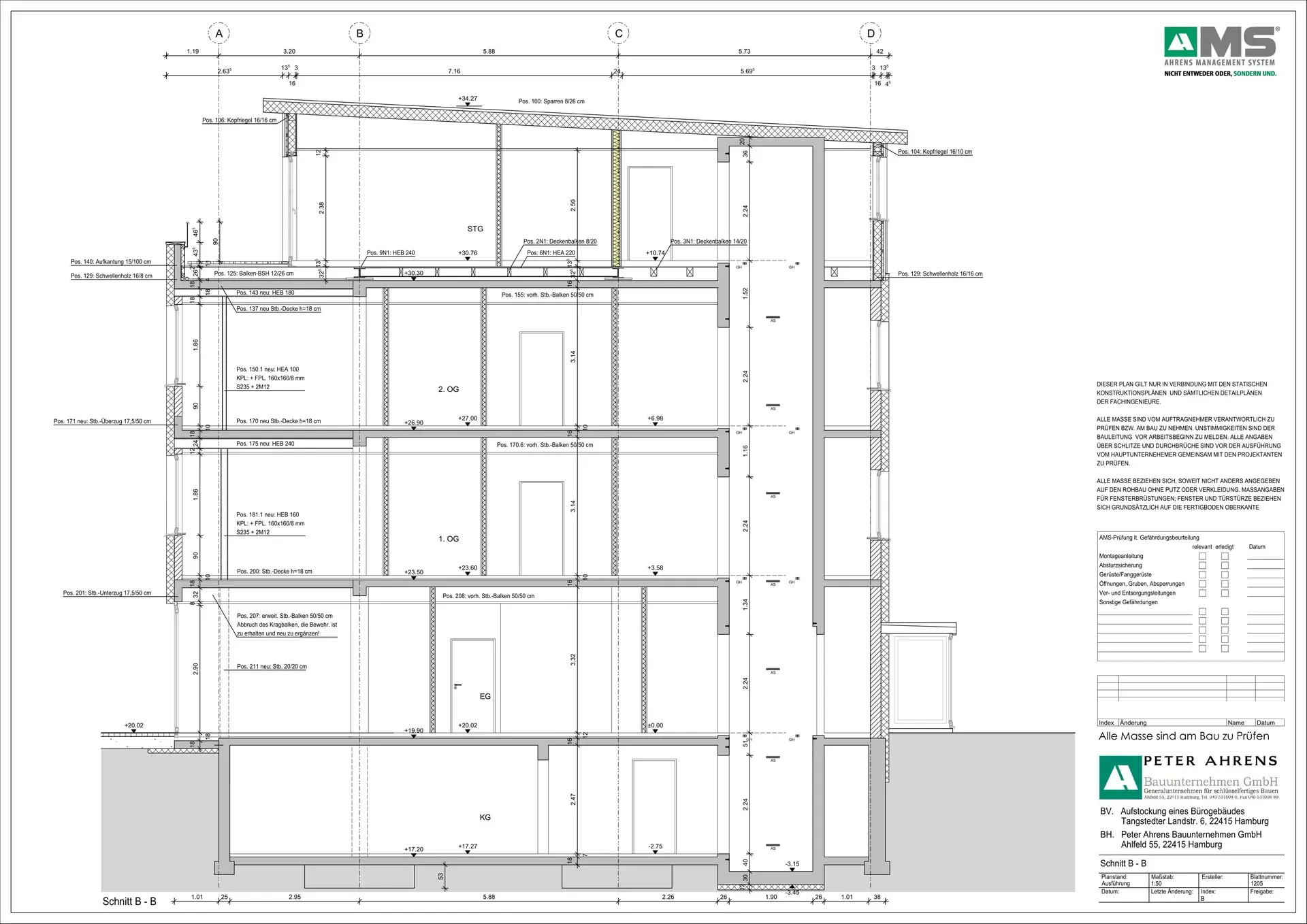
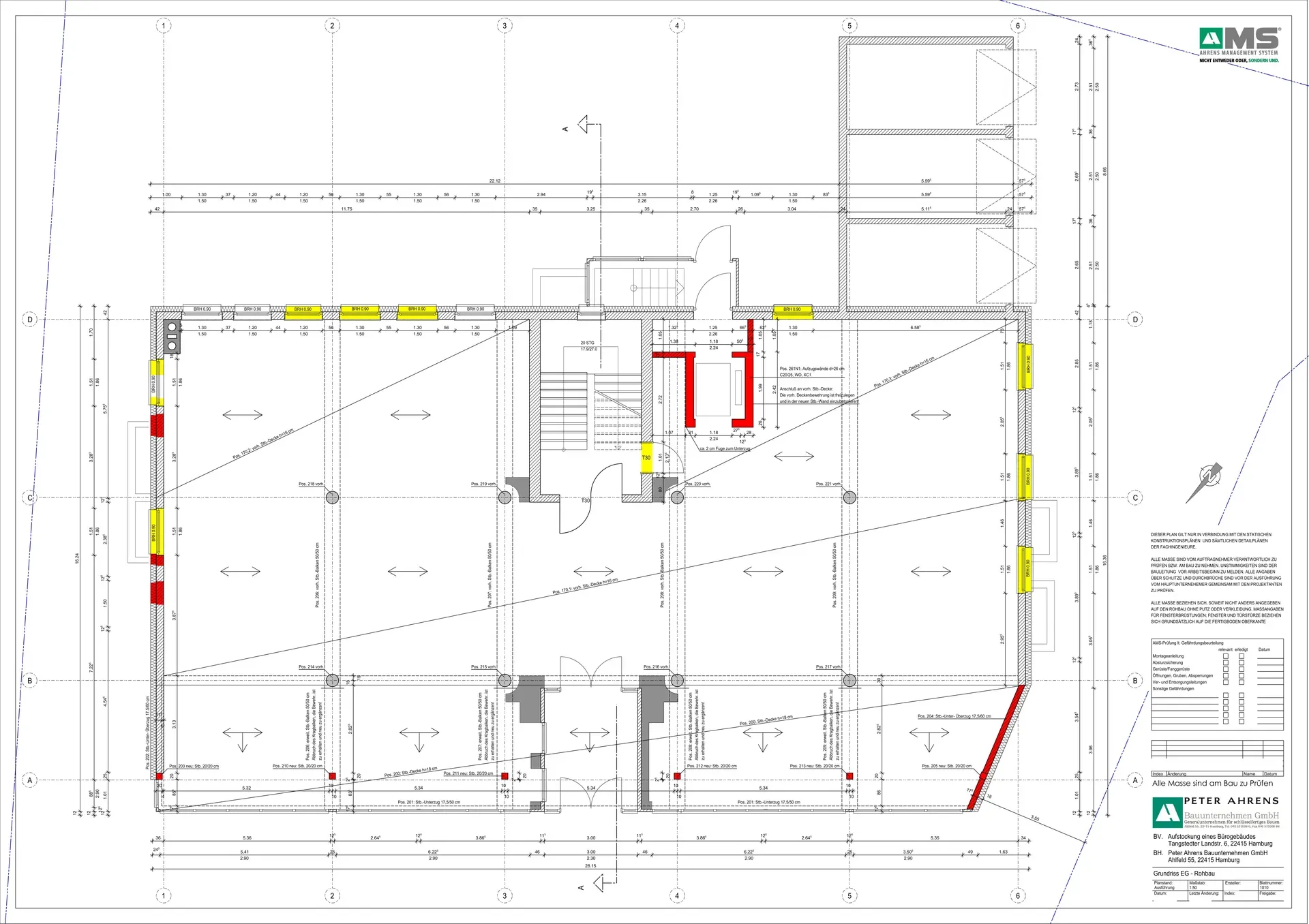
Bauvorhaben:
Umbau und Aufstockung eines Bürogebäudes (Bezirksamt Hamburg-Nord)
Bauort:
Tangstedter Landstr. 6, Hamburg
Bauherr: Peter Ahrens Bauunternehmen GmbH
Architekt:
Apel-Stiglmeir-Architekten
Baujahr: 2016
Unsere Leistungen: Statische Berechnung, baulicher Brandschutz, Wärmeschutz- & Schallschutznachweis, Positionspläne













