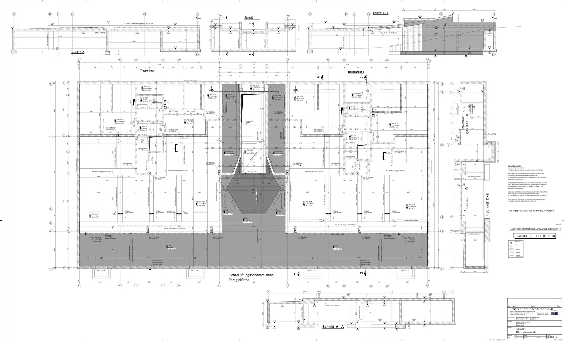
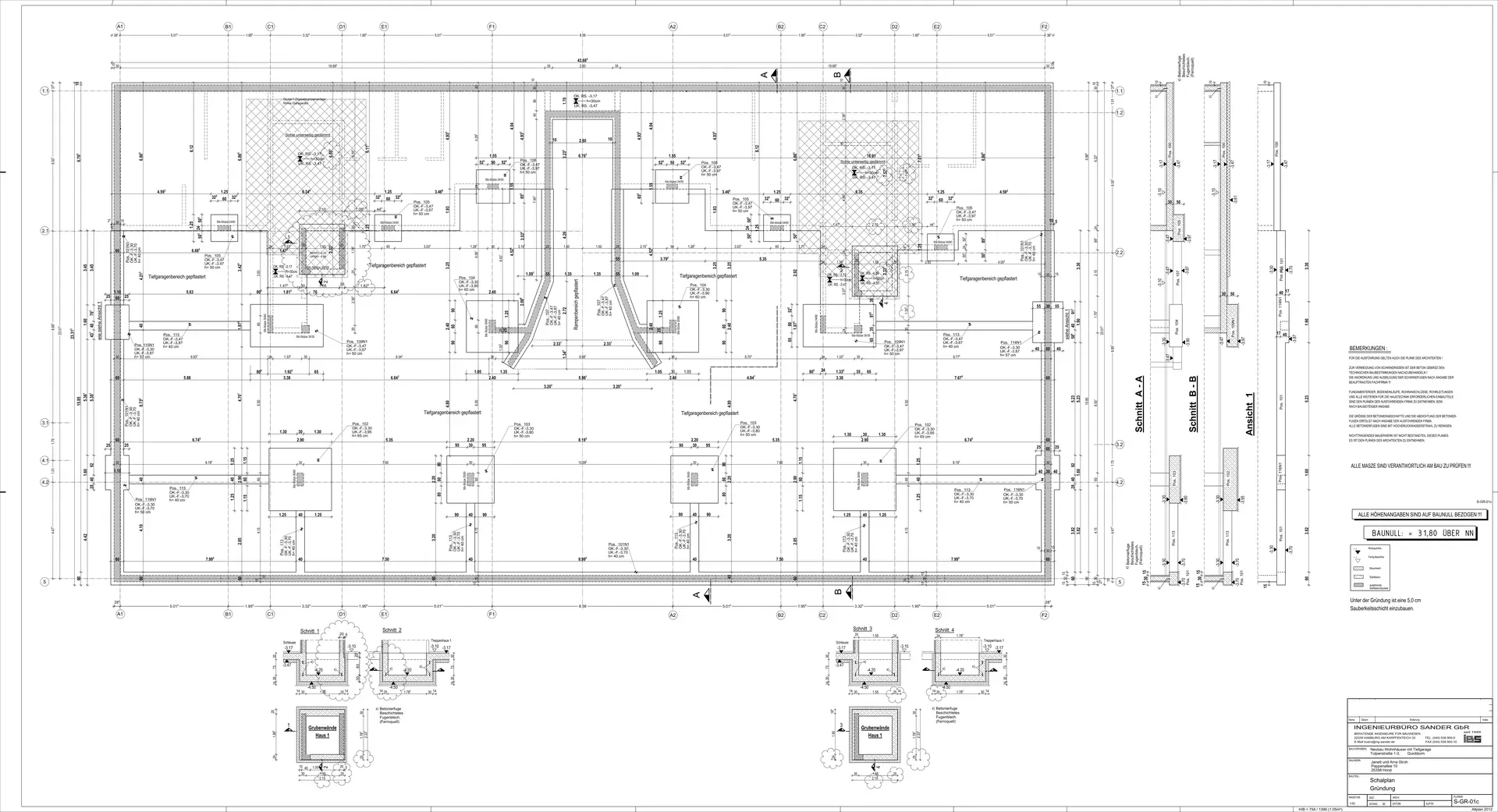
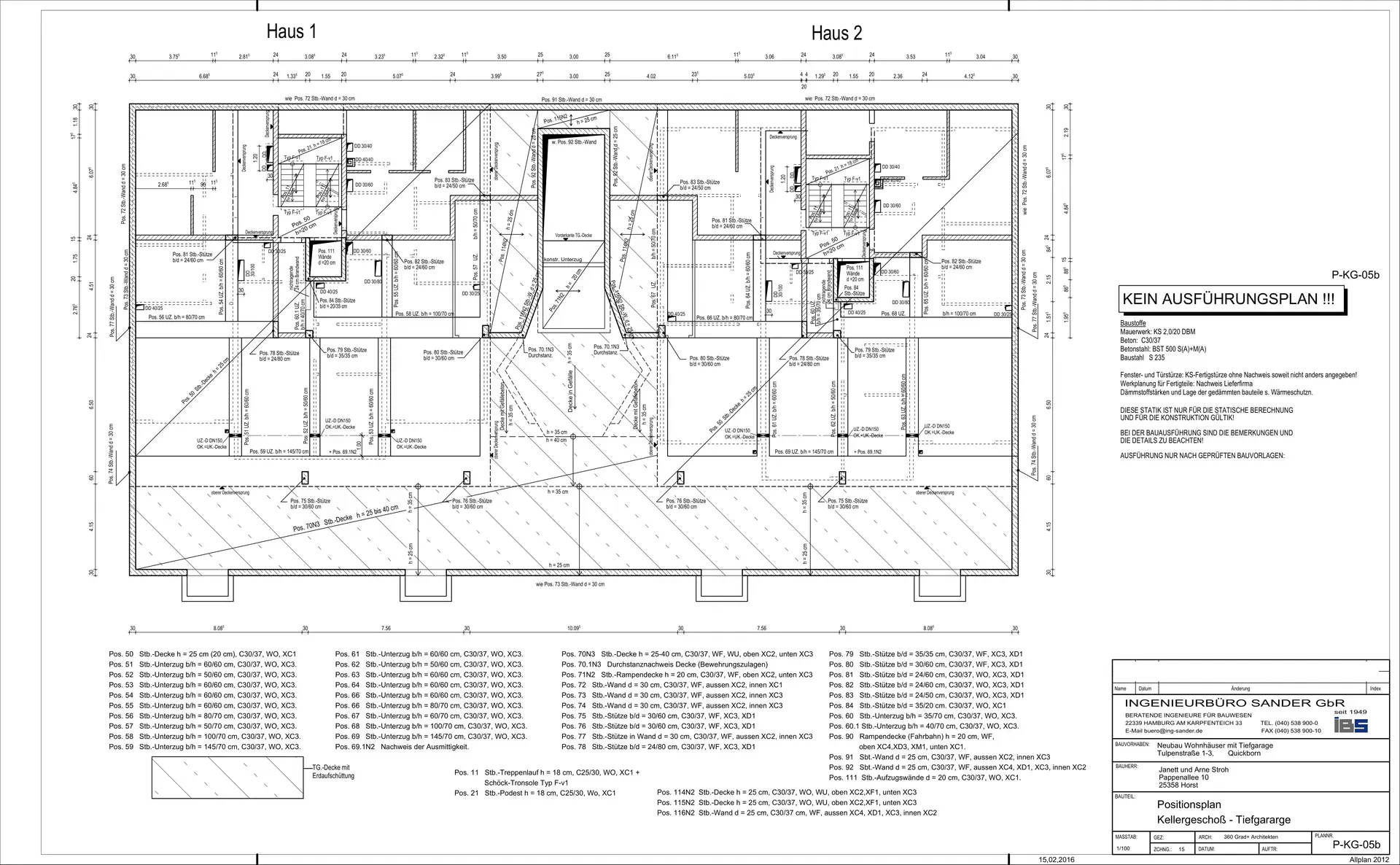
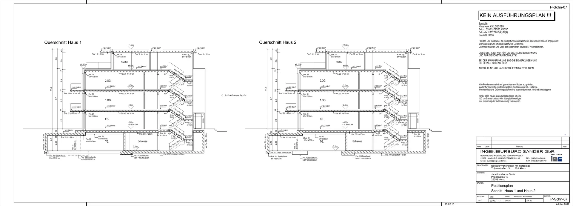
Bauvorhaben: Neubau zweier Mehrfamilienhäuser mit Tiefgarage
Bauort:
Tulpenstraße 1-3, Quickborn
Bauherr: Monika Jorka, Janett und Arne Stroh
Architekt:
360grad+ architekten gmbh
Baujahr: 2017
Unsere Leistungen:
Statische Berechnung, baulicher Brandschutz, Schall- und Wärmeschutznachweis,
Positions-, Schal- und Bewehrungspläne












