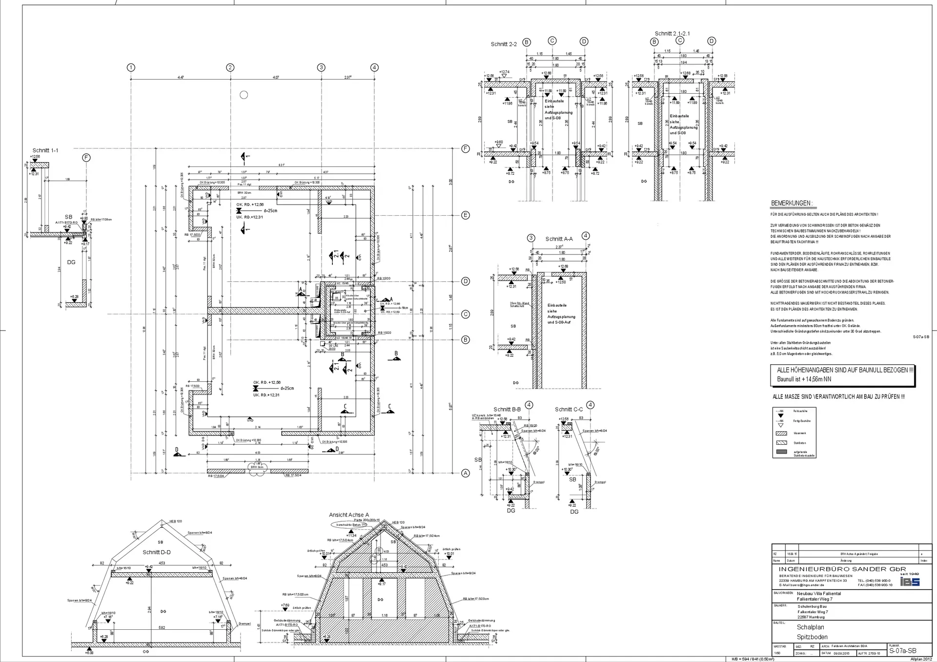
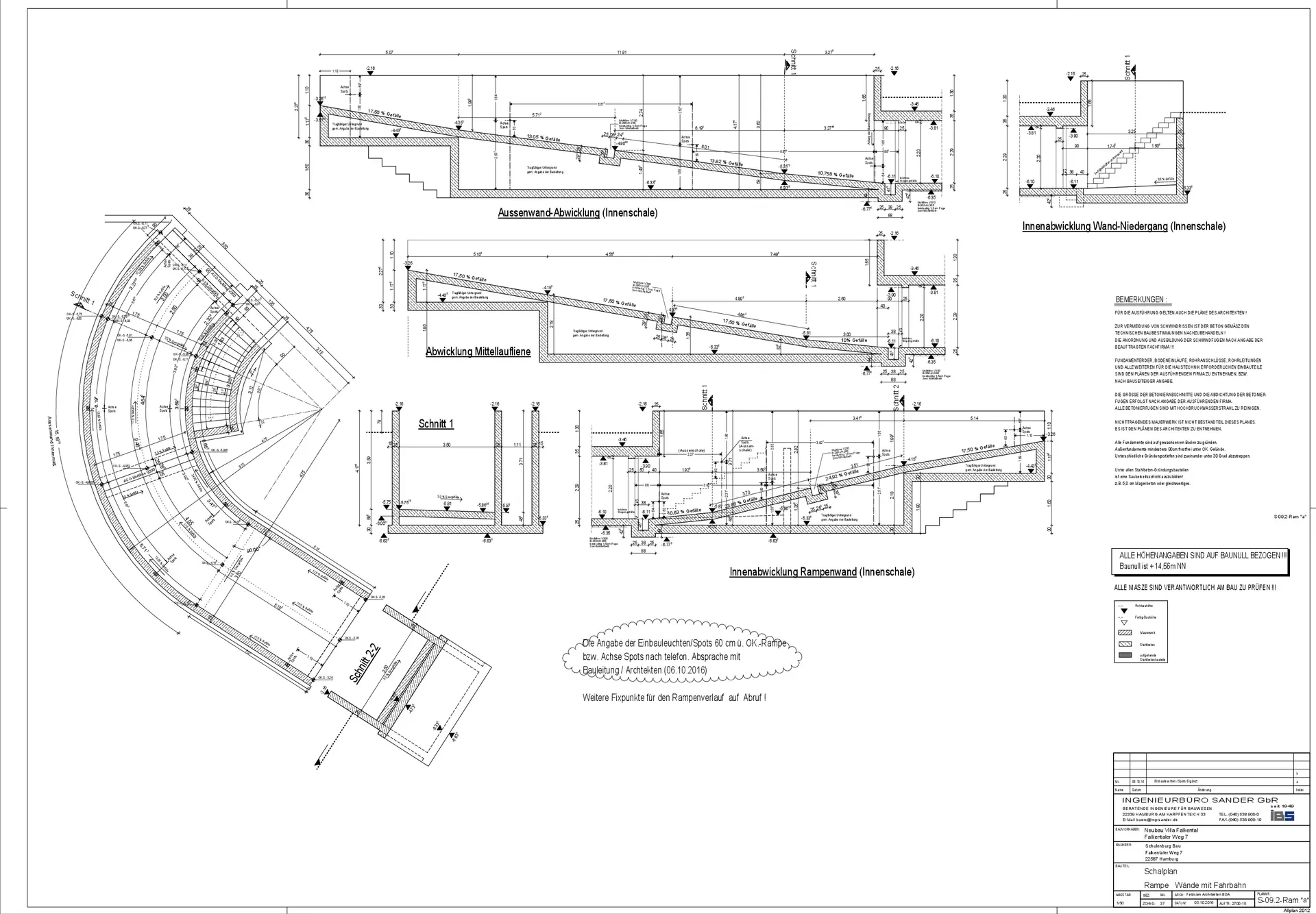
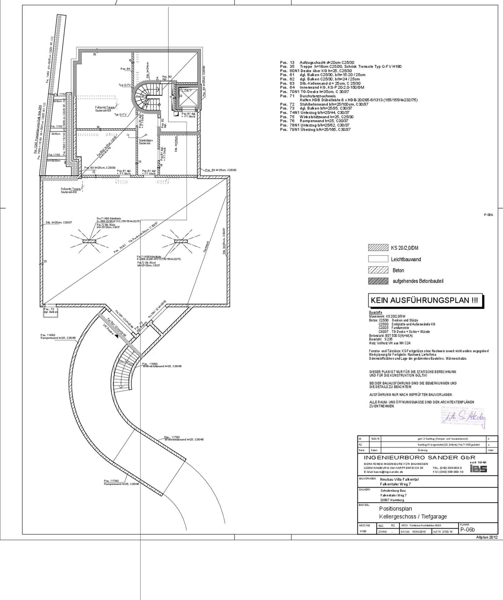
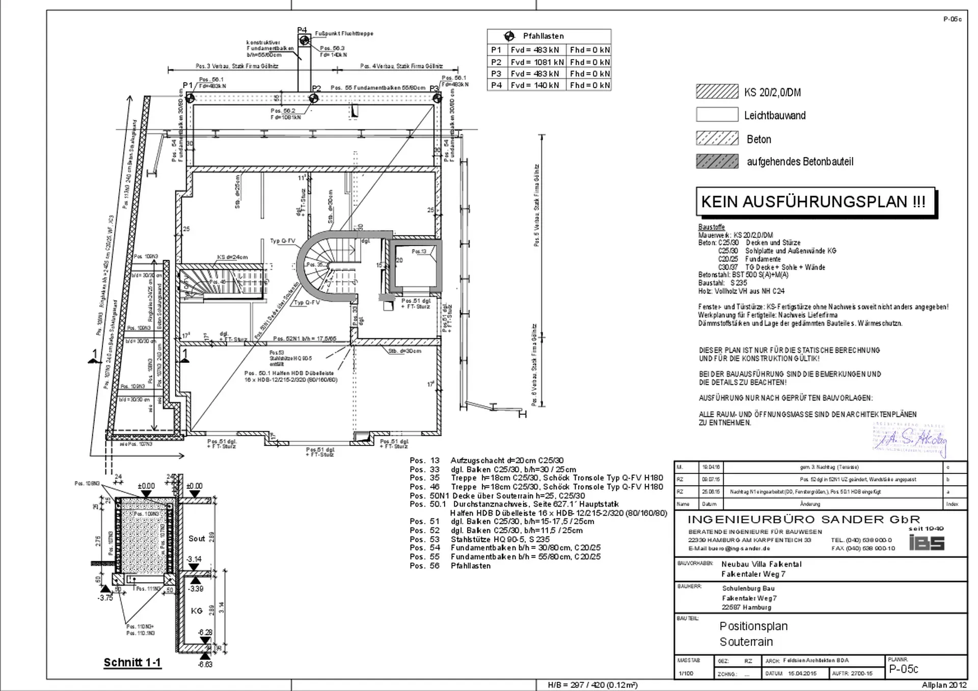
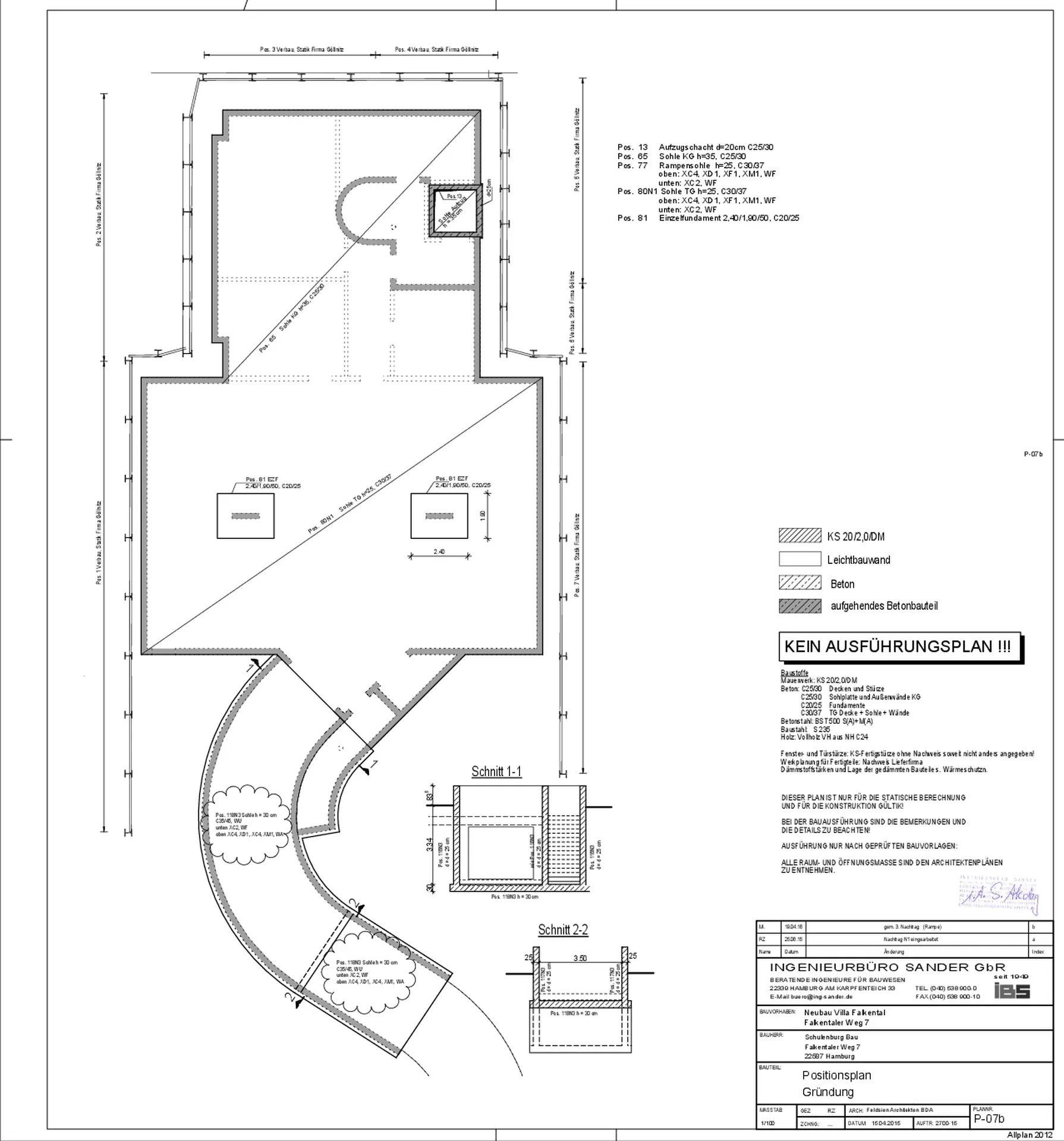
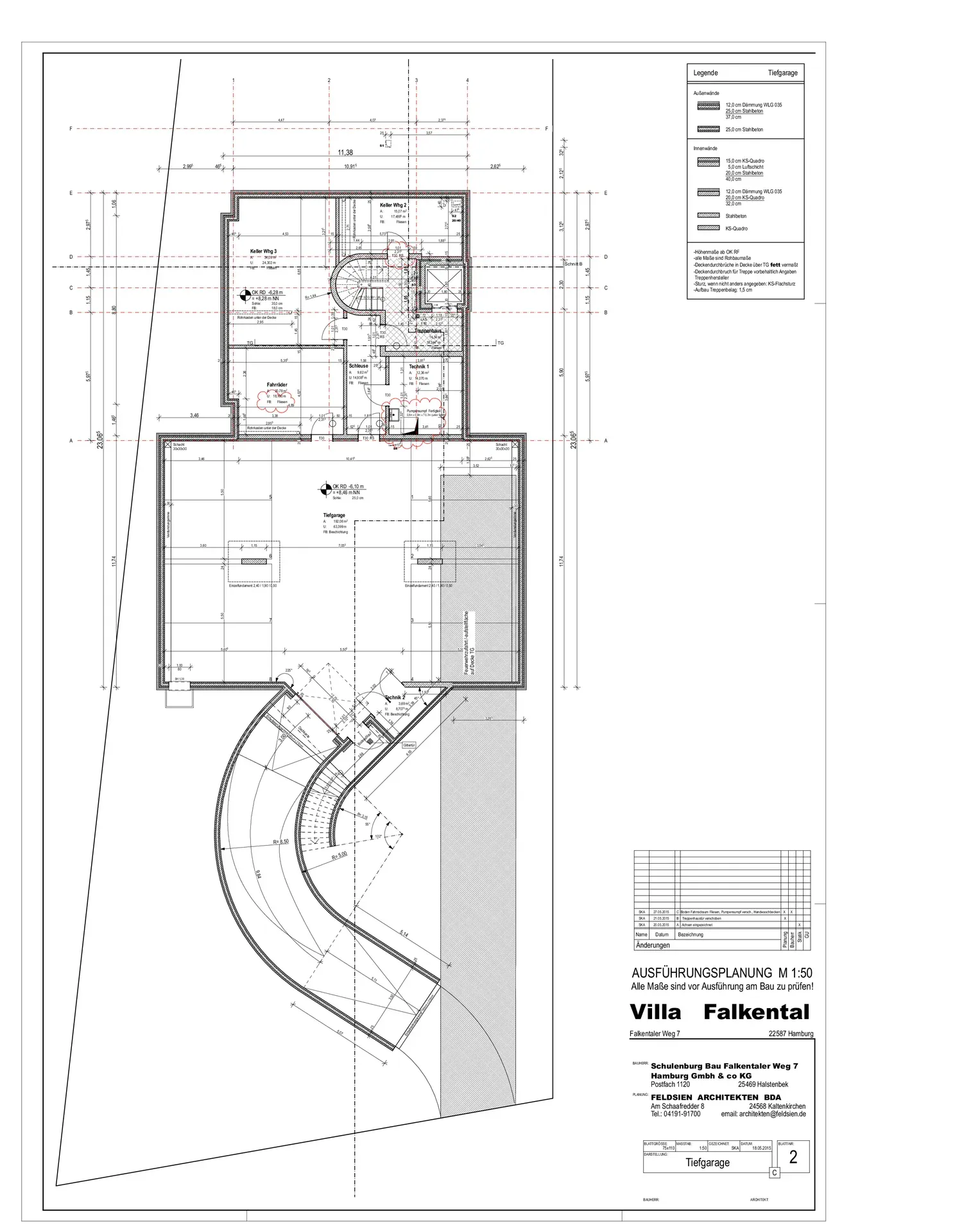
Bauvorhaben: Neubau eines Wohngebäudes mit 5 WE und Tiefgarage
Bauort:
Falkentaler Weg 7, Hamburg
Bauherr: Schulenburg Bau Falkentaler Weg 7 Hamburg Gmbh & co KG
Architekt:
FELDSIEN ARCHITEKTEN BDA
Baujahr: 2016
Unsere Leistungen:
Statische Berechnung, baulicher Brandschutz, Schall- und Wärmeschutznachweis,
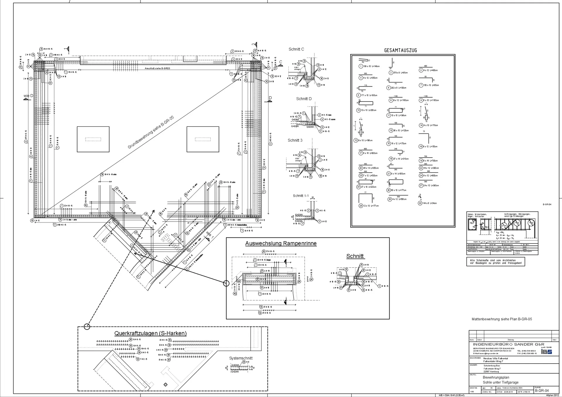
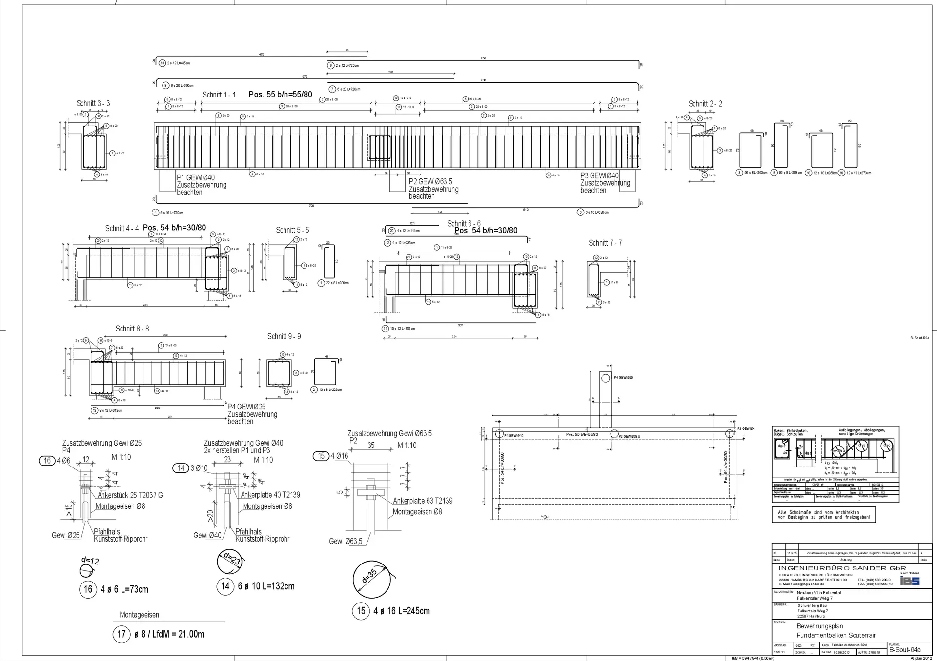
Positions-, Schal- und Bewehrungspläne













