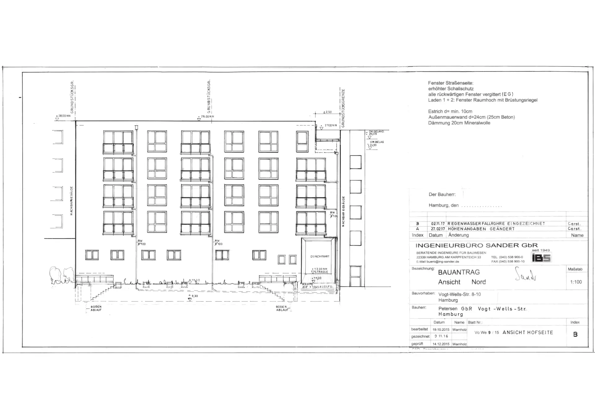
Bauvorhaben:
Neubau eines Mehrfamilienhauses mit Gewerbe
Bauort:
Vogt-Wells-Straße 8-10
Bauherr:
Petersen GbR Vogt-Wells-Straße
Architekt:
Rainer Warnholz
Baujahr:
2018 / 19
Unsere Leistungen:
Statische Berechnung, baulicher Brandschutz, Wärmeschutz- & Schallschutznachweis,
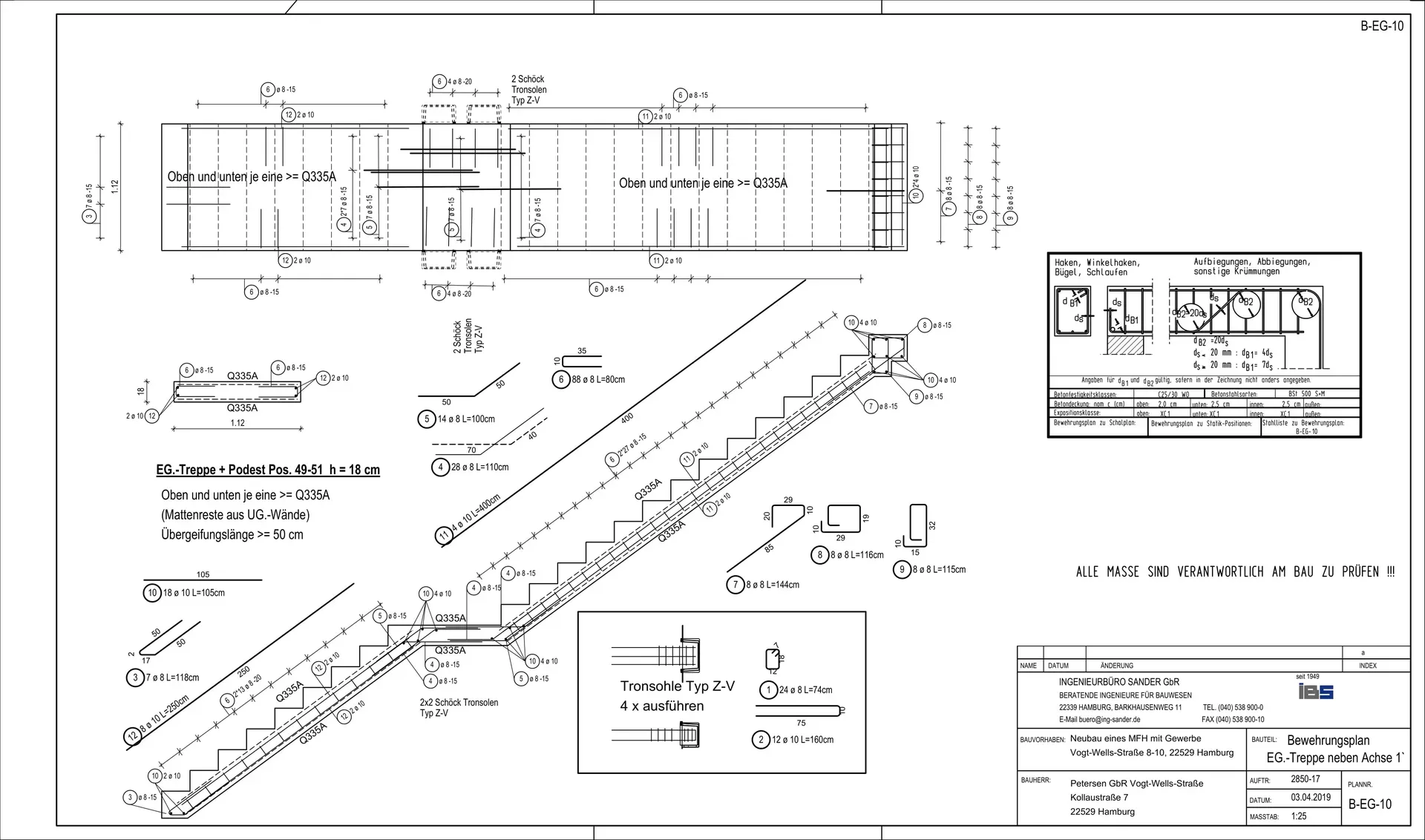
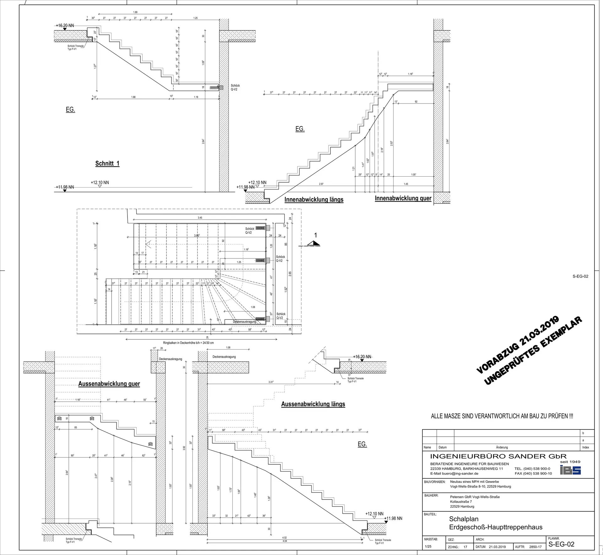
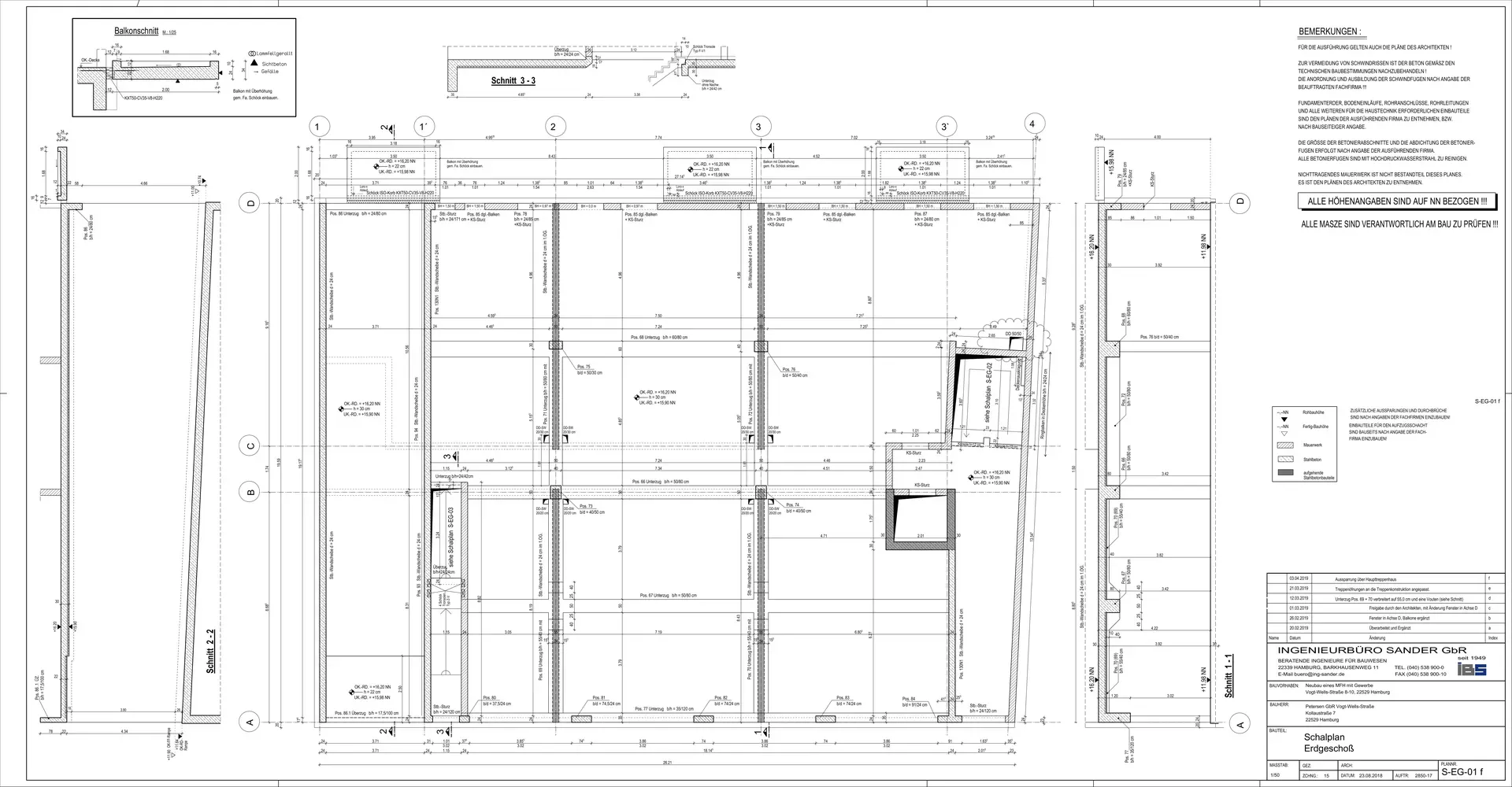
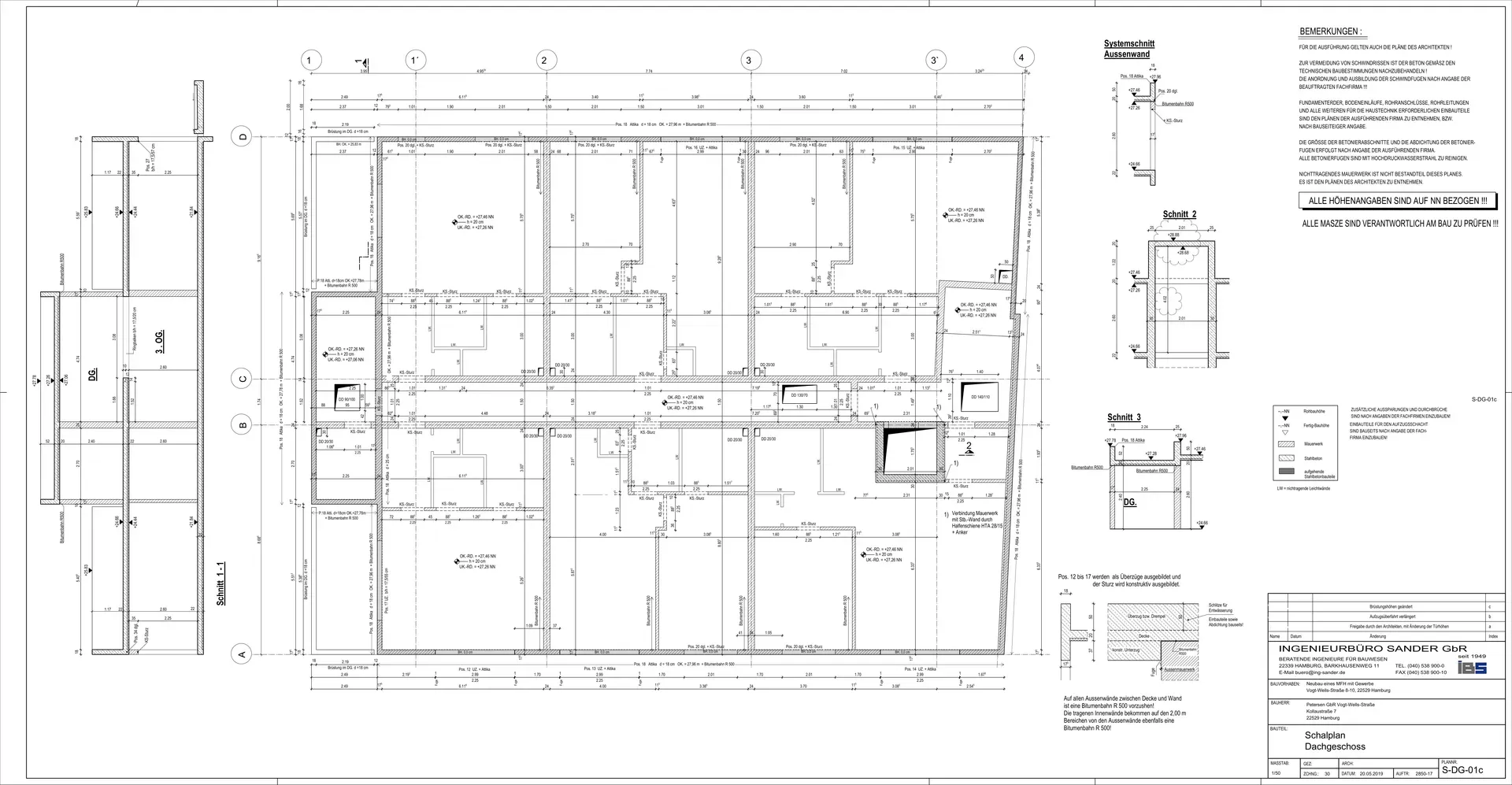
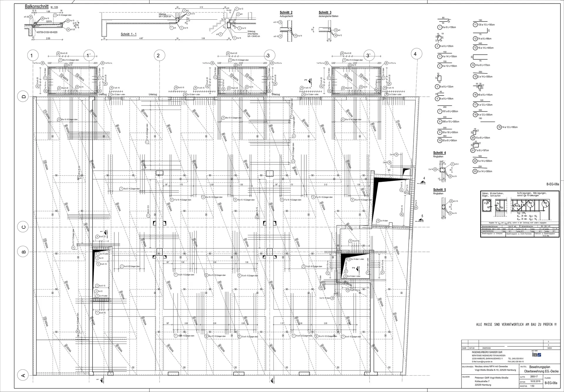
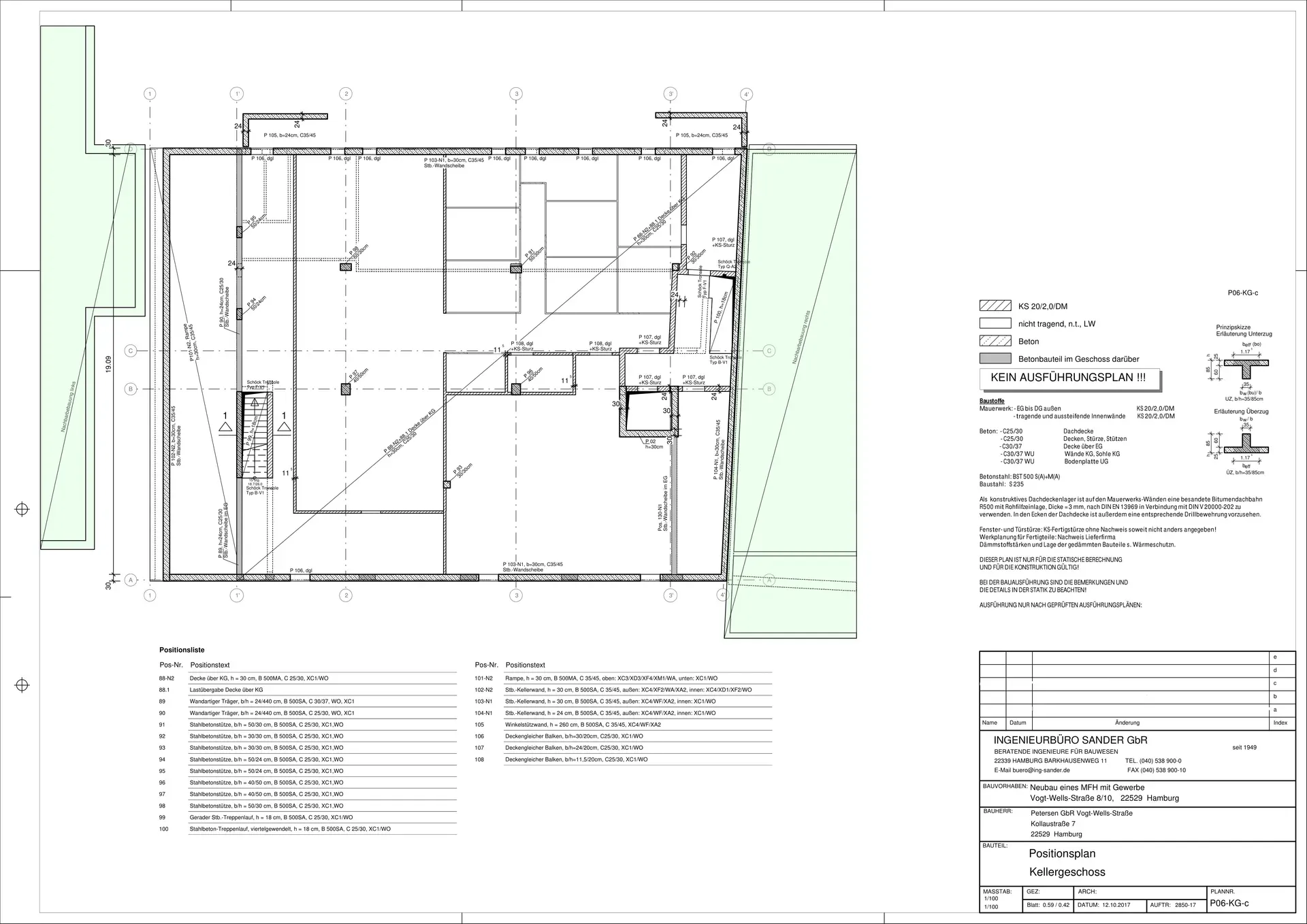
Positions-, Schal- und Bewehrungspläne
Positions-, Schal- und Bewehrungspläne












