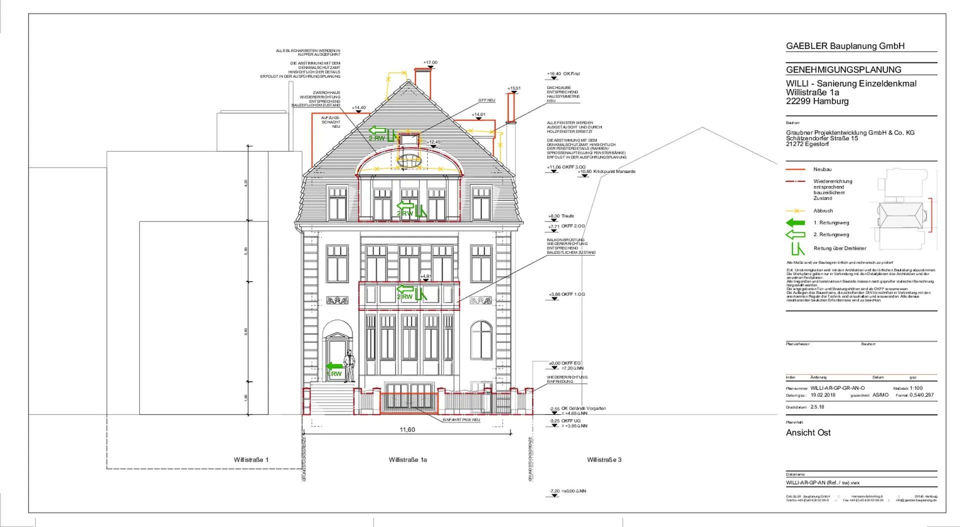
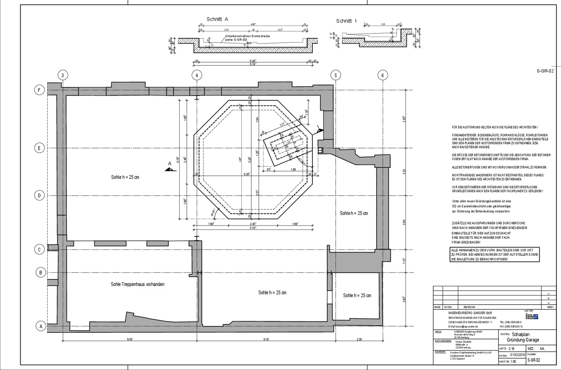
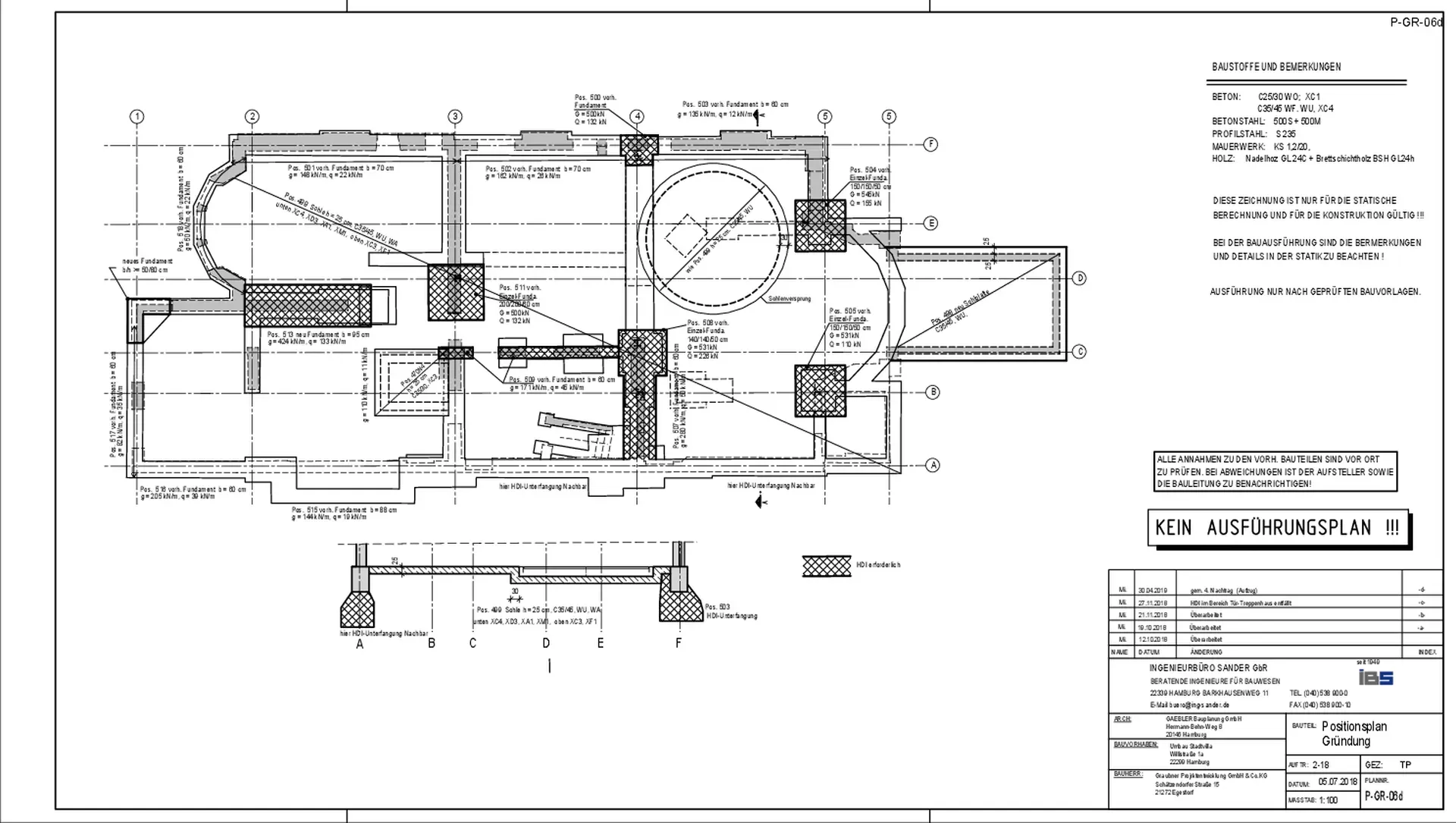
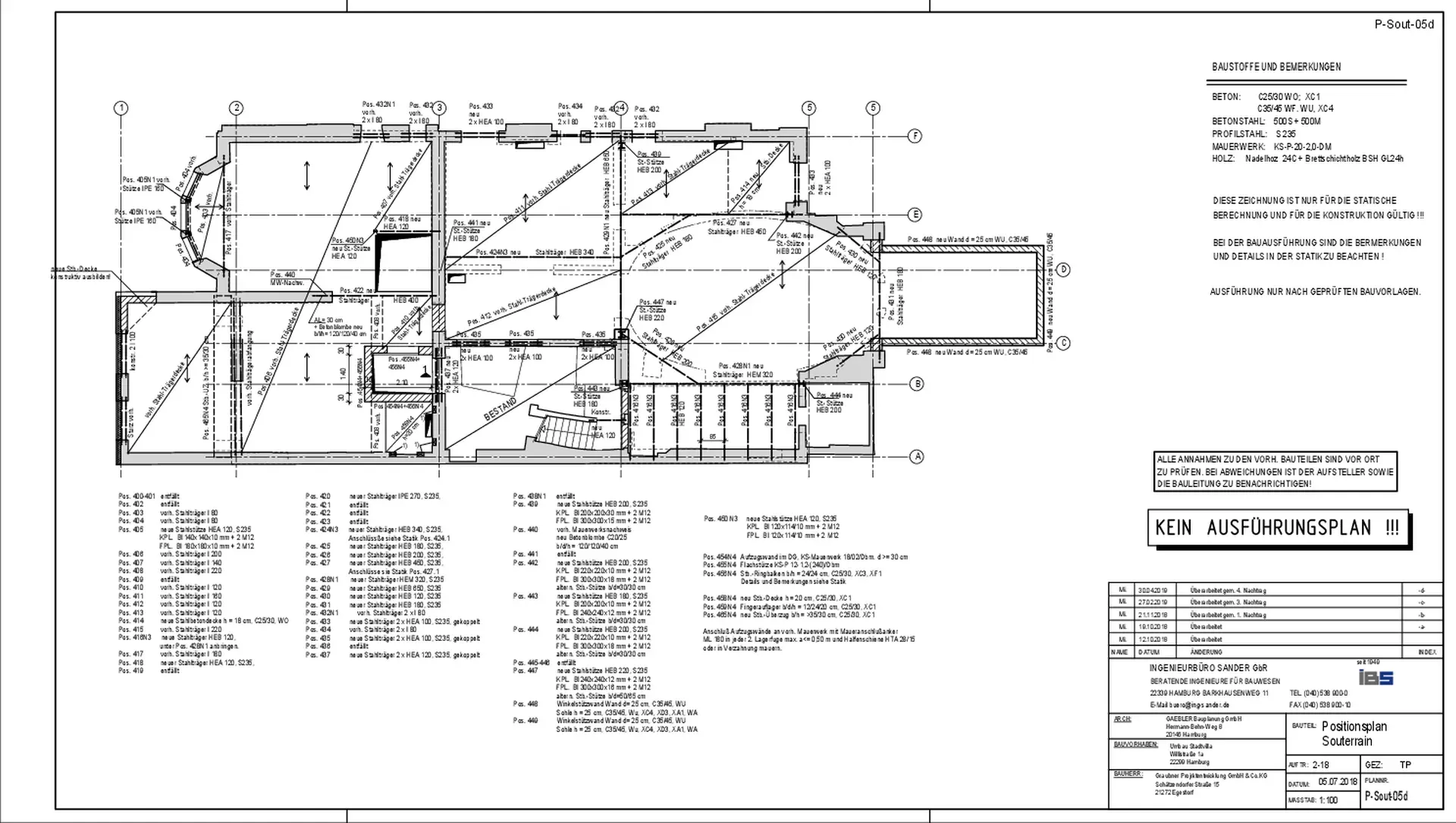
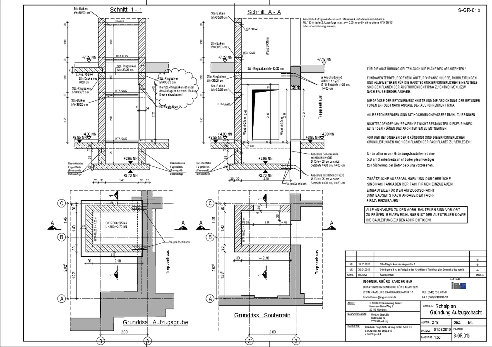
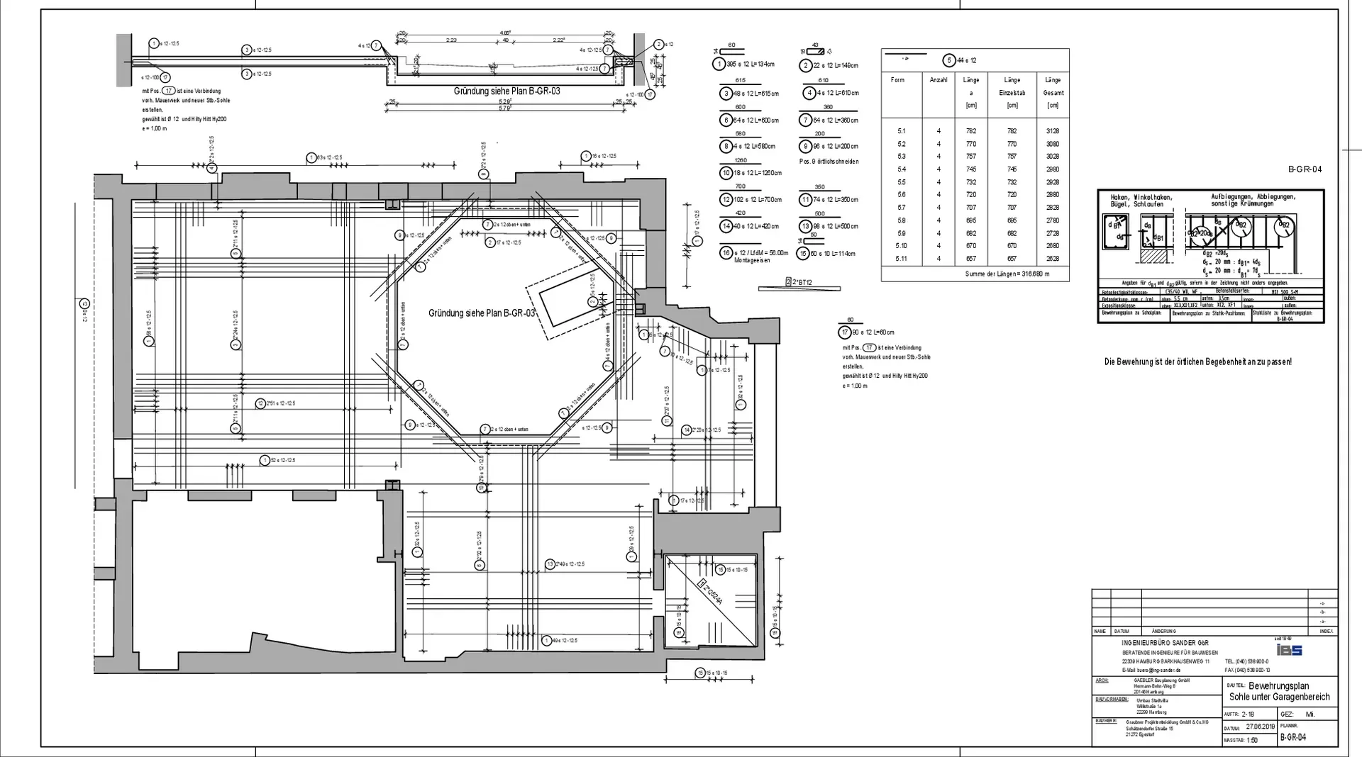
Bauvorhaben: Umbau/Sanierung Stadtvilla

Bauort: Willistrasse 1a, Hamburg

Bauherr: Graubner Projektentwicklung GmbH & Co. KG

Architekt: GAEBLER Bauplanung GmbH                 

Baujahr: 2019

Unsere Leistungen: Statische Berechnung, Positionspläne, Schal- und Bewehrungspläne